Prosimy, odblokuj wyświetlanie reklam w naszym serwisie, są one związane z rynkiem nieruchomości.
To dzięki nim masz darmowy dostęp do naszych treści.

Z pozdrowieniami zespół KRN.pl :)


telefon

wiadomość

mapa

Dom, Bibice

Dom na sprzedaż Bibice (woj. Małopolskie)

Lokalizacja:

Bibice, , ul.

Powierzchnia:

153.30 m2

Cena:

1 699 000 zł

Dane szczegółowe

lokalizacja:
Małopolskie, Bibice
typ obiektu:
dom na sprzedaż
cena:
1 699 000 zł
powierzchnia:
153.30 m2
numer ogłoszenia:
PAC-DS-9405-2
data dodania:
27-03-2026
data modyfikacji:
27-03-2026
jakość wypełnienia oferty:
100%

Szczegóły oferty



!MOŻLIWOŚĆ ZAKUPU BEZ ZGODY MINISTERSTWA!

Do sprzedania
atrakcyjny
dom jednorodzinny w zabudowie szeregowej
(segment skrajny) zlokalizowany w miejscowości
Bibice, gm. Zielonki.
Dom o
pow. 153,3
m2
urządzony w wysokim standardzie z dbałością o szczegół.
Dojazd do nieruchomości drogą powiatową, następnie drogą prywatną (udział). Do budynku przynależą
jednostanowiskowy garaż oraz miejsce postojowe.
Wnętrza estetycznie zaaranżowane, jasne i - dzięki zastosowaniu drewna - przytulne.
Dom nie wymaga wkładu własnego - jest gotowy do zamieszkania .

Media:
prąd, woda, gaz, kanalizacja,
światłowód.

Budynek wybudowany w technologii tradycyjnej, oddany do użytku w 2020 roku, sprzedawany w stanie obejmującym:

podstawowy materiał budowlany: pustak,
okna: PCV,
pokrycie dachu: blacha,
podłoga : parkiet dębowy
ułożony w jodełkę,
schody wew.: dębowe + drewniana balustrada,
drzwi wewnętrzne:
lakierowane,
listwy przypodłogowe: drewniane,
kuchnia: meble + wyposażenie AGD,
sztukateria na ścianach,
ściany: farby firmy Flugger,
ogrzewanie: CO gazowe,
ogrzewanie podłogowe: parter + łazienki,
dwie łazienki
(prysznic + wanna), wykończone w wysokim standardzie;
kafelki, szafki drewniane, blaty marmurowe,
w łazienkach kaloryfery drabinkowe,
grzejniki: firma Zehnder,
ceramiczne włączniki i gniazdka,
rzutnik w salonie,
salon z wyjściem na taras,
taras z antypoślizgowych płyt ceramicznych
firmy Libet,
domofon,
automatyczna brama garażowa,
zagospodarowany ogródek,
podjazd i podejścia: kostka brukowa,
posesja ogrodzona.

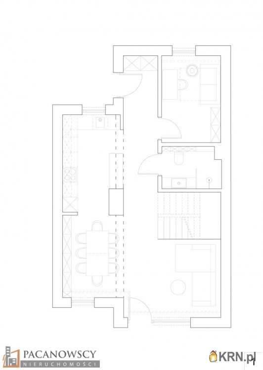
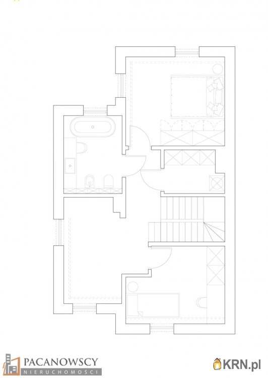
Rozkład pomieszczeń:

parter:
wiatrołap,
hall,
kuchnia, jadalnia, salon, gabinet, łazienka, schowek, schody -
54,4m2
piętro:
schody, hall, sypialnia, łazienka, pokój, pokój, pom. gospodarcze - 50,4m2
poddasze - 29,5m2
garaż - 19m2

LOKALIZACJA
Nieruchomość położona w cichej i spokojnej okolicy
w sąsiedztwie zabudowy jednorodzinnej.
Świetna lokalizacja
gwarantująca dostęp do pełnej infrastruktury.
W najbliższej okolicy:
przedszkola, szkoła podstawowa, sklepy, salon piękności, gabinet weterynaryjny, gabinet stomatologiczny, optyk, restauracja.
Do trasy E7 2km, przystanek MPK 400m.

Cena: 1.699.000 zł.
Serdecznie polecamy i zachęcamy do bezpłatnej prezentacji !!! Więcej podobnych ofert na naszej stronie www.pacanowscy.pl
Kontakt do opiekuna oferty: Zobacz kontakt505-304-807 Łukasz Koczwara

Pośrednik odpowiedzialny zawodowo za wykonanie umowy pośrednictwa: Mieszko Pacanowski (licencja nr: 21215)
Oferta wysłana z systemu Galactica Virgo
Ogrzewanie: Gazowe
Materiał: Pustak

Kontakt do agenta:
Łukasz Koczwara
Zobacz kontaktlukasz@pacanowscy.pl
Zobacz kontakt504-112-605
Zobacz kontakt505-304-807

Oceń ofertę


0


102 wydruk błąd schowek

Ostatnio przeglądane

 

 

 

pobieranie

Pobierz wzór umowy

Umowa przedwstępna sprzedaży

wybierz plik do pobrania
doc pdf

 

 

Deweloperzy

);