Prosimy, odblokuj wyświetlanie reklam w naszym serwisie, są one związane z rynkiem nieruchomości.
To dzięki nim masz darmowy dostęp do naszych treści.

Z pozdrowieniami zespół KRN.pl :)


telefon

wiadomość

mapa

Dom, Kozierów, ul. Graniczna

Dom na sprzedaż Kozierów (woj. Małopolskie), ul. Graniczna

Lokalizacja:

Kozierów, , ul. Graniczna

Powierzchnia:

145.70 m2

Cena:

549 000 zł

Dane szczegółowe

lokalizacja:
Małopolskie, Kozierów, ul. Graniczna
typ obiektu:
dom na sprzedaż
cena:
549 000 zł
powierzchnia:
145.70 m2
numer ogłoszenia:
BS4-DS-309630-12
data dodania:
28-11-2025
data modyfikacji:
28-11-2025
jakość wypełnienia oferty:
100%

Szczegóły oferty

|
Na sprzedaż 4 domy w Gminie Michałowice w miejscowości Kozierów.

W okolicy jest sklep samoobsługowy, przedszkole, żłobek, przystanek MPK 277 lub samochodem do do Górki Narodowej na parking P+R i pętle tramwajową. Wyjątkowe widoki i dużo terenów do spacerowania, idealnych na wycieczki dla rodzin z dziećmi i osób ceniących
tereny do biegania, spacerów z psem i zdrowy tryb życia.
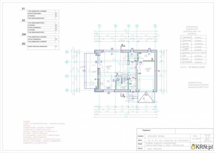
Powierzchnia użytkowa domu 132,32m2, całkowita 145,7m2. Projekt indywidualny.
Działki około 650m2, płaskie. Dojazd drogą szutrową.
Dom składa się z :
1) parter
- garaż 18,15m2 +kotłownia 5m2
- salon 24,03m2
- aneks kuchenny 8,15m2
- WC 2,76m2
- korytarz 5,09m2 i wiatrołap 3,05m2
2) piętro
- 4 sypialnie 15m2, 14,5m2, 10m2, 9m2
- łazienka
4M2
- komunikacja
Domy sprzedawane w stanie surowym otwartym bez możliwości wykończenia przez developera.
Budynek wybudowany z pustaka ceramicznego Porotherm, kryty dachówką ceramiczną.
Na działce woda, prąd. Brak kanalizacji, pozwolenie na szambo. Ogrzewanie pompa ciepła.
Kontakt :
Michał
+ Zobacz kontakt48 518 810 080
::DODATKOWE INFORMACJE |
Prąd: na działce |
Gaz: brak |
Woda: piec gazowy dwufunkcyjny |
Dojazd: droga utwardzona |
Otoczenie: działki zabudowane |
Ogrzewanie: pompa ciepła |
Kanalizacja: brak |
Internet: TAK |
Komunikacja publ.: bus, autobus miejski |
Rolety antywłamaniowe: TAK |
Instalacje: dobre |
Balkon: brak |
Liczba tarasów: 1 |
Powierzchnia ogródka [m2]: 600 |
Wymiary działki [m]: 23x26 |
Zagosp. działki: niezagospodarowana |
Ukształtowanie działki: płaska |
Kształt działki: prostokąt |
Rodzaj domu: wolnostojący |
Stan wybudowania: Stan surowy otwarty |
Typ elewacji: brak |
Podst. materiał budowlany: cegła, pustak ceramiczny poroterm |
Pokrycie dachu: dachówka |
Pozwolenie na użytkowanie: w trakcie uzyskiwania |
Powierzchnia użytkowa [m2]: 132,3200 |
Stan budynku: do wykończenia |
Podpiwniczenie: nie |
Garaż: w bryle |
Ogrodzenie działki: brak |
Rok budowy: 2025 |
Liczba pokoi: 1 |
Wysokość pomieszczeń [m]: 2,8000 |
Powierzchnia pokoi [m2]: 24m2, 15m2, 14,5m2, 10m2, 9m2 |
Podłogi pokoi: wylewka |
Ściany pokoi: zwykłe |
Wystawa okien - pokoje : Zach, Wsch, Pd, Pn |
Typ kuchni: aneks kuchenny - połączony z salonem |
Rodzaj kuchni: aneks kuchenny połączony z jadalnią i salonem |
Powierzchnia kuchni [m2]: 8,15 |
Podłoga kuchni: wylewka |
Wystawa okien - kuchnia: Wsch |
Typ łazienki: razem z wc |
Liczba łazienek: 2 |
Powierzchnia łazienki [m2]: 5m i 2,8m |
Glazura łazienki: bez glazury |
Podłoga łazienki: wylewka |
Ściany łazienki: tynk |
Liczba WC: 1 |
Liczba przedpokoi: 2 |
Podłoga przedpokoi: wylewka |
Ściany przedpokoi: tynk |
::LINK DO STRONY |
sadurscy.pl/offer/BS4-DS-309630
::KONTAKT DO AGENTA |
Michał Dzięcioł |
+ Zobacz kontakt48 518-810-080 |
Zobacz kontaktmichal@sadurscy.pl
::DANE BIURA |
Oddział BS4, Krowodrza |
Kołowa 5/3 |
30-134 Kraków |
Zobacz kontakt12 633-90-20
Pośrednik odpowiedzialny zawodowo za wykonanie umowy pośrednictwa: Dariusz Sadurski (licencja nr: 803)
|
Oferta wysłana z systemu Galactica Virgo
Ogrzewanie: POMPA CIEPLA
Materiał: Cegła

Kontakt do agenta:
Michał Dzięcioł
Zobacz kontaktmichal@sadurscy.pl
+ Zobacz kontakt48 518-810-080

Oceń ofertę


0


25 wydruk błąd schowek

Ostatnio przeglądane

 

 

 

pobieranie

Pobierz wzór umowy

Umowa przedwstępna sprzedaży

wybierz plik do pobrania
doc pdf

 

 

Deweloperzy

);