Prosimy, odblokuj wyświetlanie reklam w naszym serwisie, są one związane z rynkiem nieruchomości.
To dzięki nim masz darmowy dostęp do naszych treści.

Z pozdrowieniami zespół KRN.pl :)


telefon

wiadomość

mapa

Dom, Kraków, Dębniki/Skotniki, ul. Kozienicka

Dom na sprzedaż Kraków (woj. Małopolskie), Dębniki/Skotniki, ul. Kozienicka

Lokalizacja:

Kraków, Dębniki/Skotniki, ul. Kozienicka

Powierzchnia:

144.33 m2

Cena:

1 560 000 zł

Dane szczegółowe

lokalizacja:
Małopolskie, Kraków, Dębniki/Skotniki, ul. Kozienicka
typ obiektu:
dom na sprzedaż
cena:
1 560 000 zł
powierzchnia:
144.33 m2
numer ogłoszenia:
BS2-DS-310795-8
data dodania:
19-12-2025
data modyfikacji:
19-12-2025
jakość wypełnienia oferty:
100%

Szczegóły oferty


KUPUJĄCY NIE PŁACI PROWIZJI I PCC
Biuro nieruchomości Bracia Sadurscy ma przyjemność zaoferować Państwu na sprzedaż 8 nowoczesnych domów w zabudowie bliźniaczej w inwestycji położonej w cichej i zielonej okolicy Krakowa.
To niewątpliwie miejsce o wysokich walorach widokowych i przyrodniczych
Lokalizacja w bezpośrednim sąsiedztwie terenów ,,Natura 2000''
łączy bliskość przyrody z wygodą życia w mieście.
Szybki dostęp w zaledwie kilka minut do pętli tramwajowej Czerwone Maki , Kampusu UJ na Ruczaju oraz sieci sklepów.
Doskonała lokalizacja dla rodzin z dziećmi : szkoła podstawowa , przedszkole i żłobek oddalone zaledwie o 1km.
Każdy z domów charakteryzuje się minimalistyczną, nowoczesną architekturą.
Kameralne ogródki z widokiem na otaczającą zieleń, duże panoramiczne okna łączące przestrzeń wewnętrzną z zielonym otoczeniem
to niewątpliwie atut inwestycji.
Wszystkie budynki posiadają na kondygnacji piwnicy dwustanowiskowe garaże, kotłownie oraz bardzo praktyczne pomieszczenie ,które można wykorzystać na siłownię , pralnię lub schowek na rowery czy narty.
Każdy dom wyposażony jest w ogrzewanie podłogowe ,instalację gazową wraz z piecem dwufunkcyjnym i rekuperację.
Na zdjęciu pokazana jest przykładowa konstrukcja schodów , deweloper daje w tej sprawie możliwość wyboru według własnych upodobań.
Poczucie bezpieczeństwa mieszkańców
będzie zapewniać ogrodzony teren wraz z zamykaną bramą z dostępem tylko dla mieszkańców i ich gości.

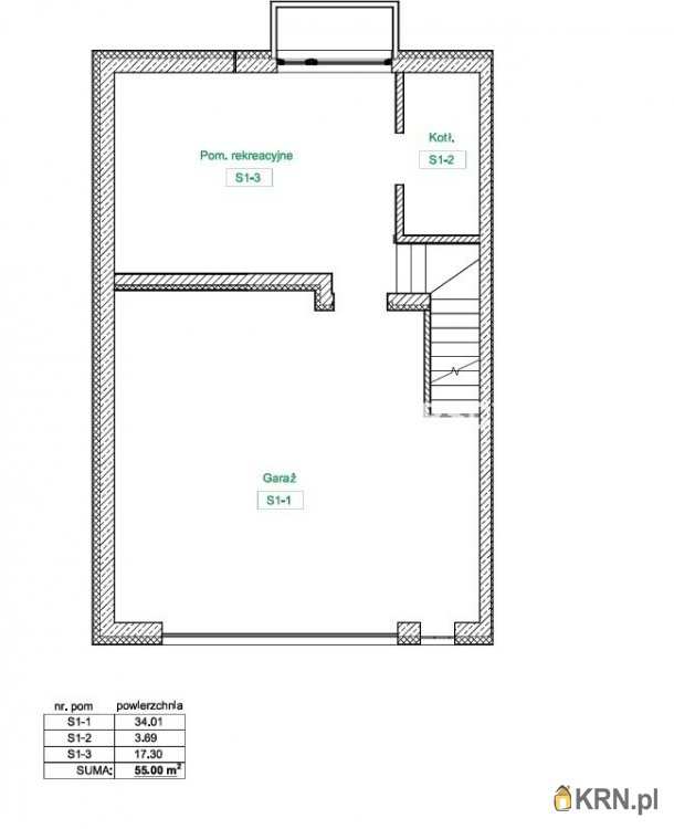
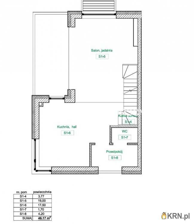
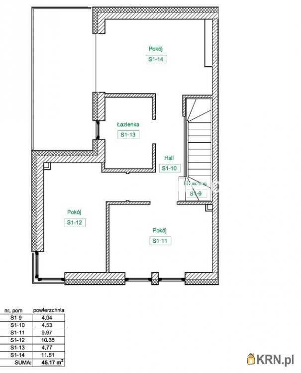
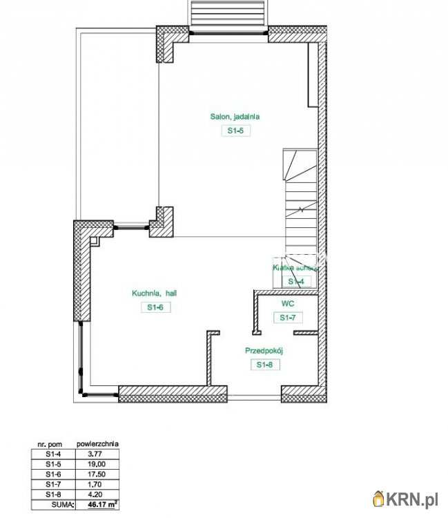
Na powierzchnię 144,33 m2 składa się :

PIWNICA :
1. Garaż
34.87 m 2
2. Kotłownia
2,13 m 2
3. Pomieszczenie gospodarcze lub
rekreacyjne 17.15 m 2
4. Klatka schodowa 2,86 m 2

PARTER :

5. Klatka schodowa 4.27 m 2
6. Salon z kuchnią i jadalnią 35,22 m2
7. WC 1.35 m 2
9. Przedpokój 4.23 m 2
10.Taras
10,79 m 2

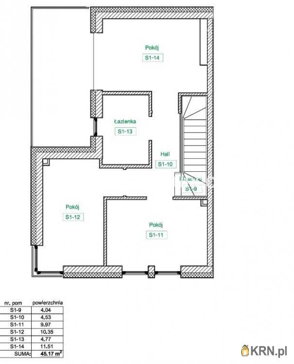
PIĘTRO :
11. Klatka schodowa 4.16 m 2
12.Hall
4.38 m 2
13. Pokój

9.91 m 2
14. Pokój
10.69 m 2
15. Łazienka 4.46 m 2
15. Pokój
10,37 m 2

DZIAŁKA :

283 m2
Edukacja:
Żłobek -> 1 km
Publiczne przedszkole -> 3 km
Szkoła podstawowa nr 66 -> 1,3 km
Sklepy
Biedronka -> 4,1 km
Netto -> 1,5 km
Żabka -> 400 m
Stacja Orlen
2 km
Usługi
Cukiernia 500 m
Restauracja 1,3 km
Fizjoterapia 100 m
Serwis rowerowy 300 m
Komunikacja
Przystanek autobusowy 250 m
Przystanek tramwajowy 3 km
Parking P+R 3 km
Aktywności
Boisko sportowe 2 km
Siłownia 2 km
Basen 1,2 km
Serdecznie zapraszam do kontaktu oraz na prezentacje!
Urszula Grecka
tel: Zobacz kontakt790-804-186
email: Zobacz kontaktula@sadurscy.pl
::DODATKOWE INFORMACJE
Kategoria oferty: Mieszkania dla rodzin z dziećmi Prąd: jest Gaz: jest Woda: ciepła - piecyk gazowy Dojazd: UTWARDZONA Otoczenie: zabudowa jednorodzinna Ogrzewanie: piec dwufunkcyjny Kanalizacja: miejska Komunikacja publ.: MPK, tramwaj Odl. do sklepu [m]: 400 Odl. do szkoły [m]: 1300 Drzwi antywłamaniowe: TAK Rolety antywłamaniowe: TAK Teren ogrodzony: TAK Okna: aluminiowe 3 szybowe, ciepły montaż Instalacje: ELEKTRYCZNA, WODNA, GAZOWA Balkon: duży Liczba balkonów: 2 Tarasy: taras Liczba tarasów: 1 Rodzaj domu: bliźniak Stan wybudowania: Stan deweloperski Stan budynku: BARDZO WYSOKI STANDARD Podpiwniczenie: tak Garaż: dwustanowiskowy Rok budowy: 2025 Liczba pokoi: 4 Liczba sypialni: 3 Podłogi pokoi: wylewka Ściany pokoi: tynk Liczba WC: 1 Glazura WC: bez glazury Podłoga WC: wylewka Ściany WC: tynk
::LINK DO STRONY
https://sadurscy.pl/offer/BS2-DS-310795
::KONTAKT DO AGENTA
Urszula Grecka + Zobacz kontakt48 790-804-186 Zobacz kontaktula@sadurscy.pl
::DANE BIURA
Oddział BS2, Rynek Pierwotny Przewóz
47 30-081 Kraków Zobacz kontakt12 630-90-45
--------------------------
::GRATIS | Nasza prowizja zawiera: koszt przedwstępnej notarialnej umowy sprzedaży nieruchomości z rynku wtórnego. ::GWARANCJA | Gwarancja zwrotu zadatku. Więcej informacji na sadurscy.pl/zwrot-zadatku/

Ogrzewanie: PIEC DWUFUNKCYJNY

Kontakt do agenta:
Urszula Grecka
Zobacz kontaktula@sadurscy.pl
+ Zobacz kontakt48 790-804-186

Oceń ofertę


0


13 wydruk błąd schowek

Ostatnio przeglądane

 

 

 

pobieranie

Pobierz wzór umowy

Umowa przedwstępna sprzedaży

wybierz plik do pobrania
doc pdf

 

 

Deweloperzy

);