Prosimy, odblokuj wyświetlanie reklam w naszym serwisie, są one związane z rynkiem nieruchomości.
To dzięki nim masz darmowy dostęp do naszych treści.

Z pozdrowieniami zespół KRN.pl :)


telefon

wiadomość

mapa

Dom, Koleczkowo

Dom na sprzedaż Koleczkowo (woj. Pomorskie)

Lokalizacja:

Koleczkowo, , ul.

Powierzchnia:

138.00 m2

Cena:

820 000 zł

Dane szczegółowe

lokalizacja:
Pomorskie, Koleczkowo
typ obiektu:
dom na sprzedaż
cena:
820 000 zł
pokoi:
5
ilość pięter w budynku:
1
powierzchnia:
138.00 m2
numer ogłoszenia:
DJ416827
data dodania:
04-10-2024
data modyfikacji:
17-11-2025
jakość wypełnienia oferty:
100%

Szczegóły oferty

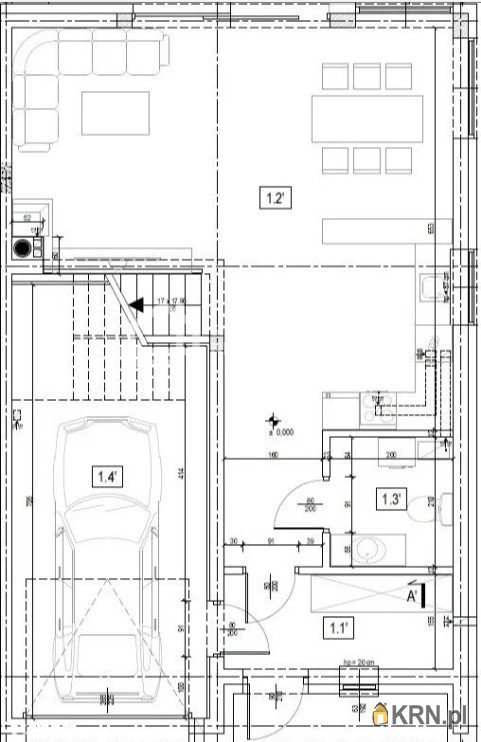
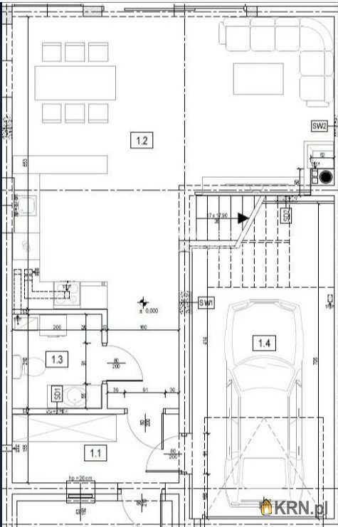
Na sprzedaż nowoczesny bliźniak o pow. 138m2 z działką 500m2 w Koleczkowie k/Gdyni.Inwestycja obejmuje budynek bliźniaczy, w którym mieszczą się dwa lokale.Na parterze znajduje się salon z aneksem kuchennym, łazienka, wiatrołap, garaż oraz schowek pod schodami.Na piętrze: cztery sypialnie, garderoba oraz łazienka.Na poddaszu strych, który można zaaranżować na kolejną sypialnię, pokój rekreacyjny, etc.Duże przeszkolenia zapewniają dopływ światła dziennego oraz widok na ogród.Dogodna lokalizacja!W pobliżu sklep, przystanek autobusowy. Nieopodal szkoła podstawowa oraz przedszkola. 5min do Trasy Kaszubskiej.20 min do Gdyni.Prace budowlane ku końcowi.Przewidywane zakończenie budowy niebawem.STANDARD WYKOŃCZENIA:-Fundamenty: ławy fundamentowe, ściany z bloczka betonowego-Ściany zewnętrzne: ściany z gazobetonu-Izolacja termiczna ścian zewnętrznych: styropian-Strop nad parterem: żelbetowy monolityczny-Ścianki działowe wewnętrzne: murowane-Schody wewnętrzne: monolityczne, żelbetowe-Izolacje termiczne wewnętrzne: ściany, strop, podłogi - wełna mineralna lub styropian-Konstrukcja dachu: dwuspadowy, wiązary dachowe, kryte blachodachówką/dachówką, obróbki kominów i okapów wykonane z blachy-Elewacje: tynk cienkowarstwowy w kolorze zgodnym z koncepcją urbanistyczną osiedla-Stolarka okienna: profile PCV w kolorze, wewnątrz białe-Stolarka drzwiowa: drzwi wejściowe ocieplane,-Posadzki i podłogi: na parterze i piętrze wylewka betonowa na izolacji termicznej.-Wyposażenie łazienki: przyłącze wodno-kanalizacyjne do wanny/kabiny; umywalki ;muszli klozetowej, zawór czerpalny i spust do pralki automatycznej.-Wyposażenie aneksu kuchennego: przyłącze wodno-kanalizacyjne do zlewozmywaka i zmywarkiInstalacja grzewcza: Pompa ciepła ,ogrzewanie podłogowe, możliwość montażu kominka.Media: prąd, kanalizacja i woda.Prace budowlane zostały rozpoczęte.Pompa ciepła jest wliczona w cenę.Zamontowany komin systemowy ceramiczny do podłączenia kominka.Oferujemy pomoc w otrzymaniu dotacji na panele fotowoltaiczne oraz pompę ciepła.Możliwość otwarcia dla klienta rachunku powierniczego.**Niniejsze ogłoszenie nie stanowi oferty handlowej w rozumieniuart. 66 Kodeksu Cywilnego, a dane w nim zawarte mają charakter informacyjny, mogą podlegać aktualizacji i zostały pozyskane od właściciela. Koszty obsługi biura pokrywa nabywca.**

Oceń ofertę


3


337 wydruk błąd schowek

Ostatnio przeglądane

 

 

 

pobieranie

Pobierz wzór umowy

Umowa przedwstępna sprzedaży

wybierz plik do pobrania
doc pdf

 

 

Deweloperzy

);