Prosimy, odblokuj wyświetlanie reklam w naszym serwisie, są one związane z rynkiem nieruchomości.
To dzięki nim masz darmowy dostęp do naszych treści.

Z pozdrowieniami zespół KRN.pl :)


telefon

wiadomość

mapa

Dom, Polkowice

Dom na sprzedaż Polkowice (woj. Dolnośląskie)

Lokalizacja:

Polkowice, , ul.

Powierzchnia:

136.11 m2

Cena:

449 000 zł

Dane szczegółowe

lokalizacja:
Dolnośląskie, Polkowice
typ obiektu:
dom na sprzedaż
cena:
449 000 zł
pokoi:
4
ilość pięter w budynku:
2
powierzchnia:
136.11 m2
media:
prąd, gaz, woda
numer ogłoszenia:
201-3961
data dodania:
15-07-2022
data modyfikacji:
21-02-2023
jakość wypełnienia oferty:
100%

Szczegóły oferty

Polkowice, dom bliźniak 136,11 m2, działka 246 m2, 449 000 zł, sprzedam.


KUPUJĄCY 0 % PROWIZJI.



Nowoczesny dom w zabudowie bliźniaczej w Polkowicach przy ul. Słonecznikowej. Świetna lokalizacja oraz przemyślany układ pomieszczeń czynią z inwestycji wymarzone miejsce dla osób ceniących wygodę i komfort życia.



W sprzedaży dom nr 1 i 2 (od drogi). Kolejne będą sukcesywnie budowane.



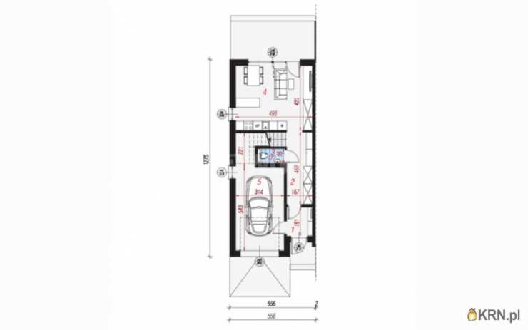
Oferowany dom wg projektu firmy Archon \"Dom w ribesach (GB)\" to nowy 4-pokojowy segment (lewy lub prawy) o powierzchni całkowitej 136,11 m2, użytkowej 101,59 m2.



POWIERZCHNIA DOMU:



PARTER 50,68 m2:


- Wiatrołap 3,05 m2


- Hol 7,80 m2


- Kuchnia + Salon 20,60 m2


- Toaleta 1,45 m2


- Garaż 17,78 m2





PODDASZE 50,91 m2:


- Hol 10,05 m2


- Łazienka 5,52 m2


- Pokój 7,29 m2


- Pokój 9,97 m2


- Pokój 12,75 m2


- schody 5,33 m2



STAN WYKOŃCZENIA: surowy zamknięty plus.


MEDIA: woda i kanalizacja w budynku, prąd na działce, gaz w drodze.





Standard wykończenia:


- konstrukcja murowana o stopach żelbetowych,


- ściany zewnętrzne i nośne: pustak ceramiczny Termoton 18,8 cm,


- schody żelbetowe dwubiegowe,


- wylewka betonowa parter i piętro,


- ogrzewanie: są przyłącza (we własnym zakresie: podstawowe - pompa ciepła lub alternatywne - kocioł gazowy kondensacyjny),


- instalacja wewnętrzna wod-kan,


- strop: betonowy,


- dach: dwuspadowy, dachówka betonowa BRAAS antracyt,


- okna DRUTEX : plastikowe trzyszybowe wewn. białe, zewn. antracyt,


- rolety natynkowe elektryczne, montowane w warstwie docieplenia,


- brama garażowa KRISPOL: elektryczna, antracyt,


- drzwi Wikęd Premium: zewnętrzne antywłamaniowe z ościeżnicą stalową, przeszklone.


Możliwość wykonania za dopłatą:


drogi zewnętrznej z kostki, podjazdu z kostki, ogrodzenia panelowego bocznego i tylnego, tynku zewnętrznego cienkowarstwowego cement.-wapienny, ocieplenia ścian zewnętrznych: styropian 20 cm EPS Termo Organika, ścian działowych.



Przewidziano zabezpieczenie w postaci trzpieni żelbetowych w ścianach konstrukcyjnych na wpływy dynamiczne eksploatacji górniczej.



Opłata rezerwacyjna 10 000 zł



POLECAM.



Agent odpowiedzialny za ofertę:


Monika Franieczek


Zobacz kontakt508121235


Zobacz kontaktm.franieczek@wgn.pl



Prezentacja i zakup nieruchomości:


- prezentacja nieruchomości przeprowadzana jest zawsze w obecności Agenta WGN,


- ze względów bezpieczeństwa osoby biorące udział w prezentacji zobowiązane są do podania imienia, nazwiska i nr telefonu oraz złożenia podpisu na potwierdzeniu prezentacji i wskazaniu adresu,


Koszty kupującego:


- 0 % podatku PCC,


- 0 % prowizji biura,


- taksa notarialna,


- wpisy do księgi wieczystej,


- opłaty sądowe.





W razie wszelkich pytań (nieruchomość, kredyt na zakup) zadzwoń, zapytaj i umów się ze mną na wizytę.


Pomagamy bezpłatnie w uzyskaniu kredytu hipotecznego a przy transakcji sprzedaży zapewniamy obsługę notarialną.





WGN POLKOWICE


www.polkowice.wgn.pl


WGN SZPROTAWA


www.szprotawa.wgn.pl


WGN NOWA SÓL


www.nowasol.wgn.pl





Informacje dotyczące nieruchomości zostały sporządzone na podstawie oświadczeń i nie są ofertą w rozumieniu przepisów prawa, mają charakter wyłącznie informacyjny i mogą podlegać aktualizacji, zalecamy ich osobistą weryfikację. Wszystkie teksty, rysunki, zdjęcia oraz wszystkie inne informacje opublikowane na niniejszych stronach podlegają prawom autorskim WGN POLKOWICE ul. SŁUBICKA 5C. Wszelkie kopiowanie, dystrybucja, elektroniczne przetwarzanie oraz przesyłanie zawartości bez zezwolenia zabronione. Wszelkie prawa zastrzeżone.

Kontakt do agenta:
Monika Franieczek
Telefon: Zobacz kontakt508 121 235
Telefon: Zobacz kontakt508 121 235
Email: Zobacz kontaktm.franieczek@wgn.pl

Oceń ofertę


9.99


1226 wydruk błąd schowek

Ostatnio przeglądane

 

 

 

pobieranie

Pobierz wzór umowy

Umowa przedwstępna sprzedaży

wybierz plik do pobrania
doc pdf

 

 

Deweloperzy

);