Prosimy, odblokuj wyświetlanie reklam w naszym serwisie, są one związane z rynkiem nieruchomości.
To dzięki nim masz darmowy dostęp do naszych treści.

Z pozdrowieniami zespół KRN.pl :)


telefon

wiadomość

mapa

Dom, Zielonki

Dom na sprzedaż Zielonki (woj. Małopolskie)

Lokalizacja:

Zielonki, , ul.

Powierzchnia:

132.04 m2

Cena:

1 250 000 zł

Dane szczegółowe

lokalizacja:
Małopolskie, Zielonki
typ obiektu:
dom na sprzedaż
cena:
1 250 000 zł
powierzchnia:
132.04 m2
numer ogłoszenia:
PAC-DS-8821
data dodania:
09-10-2025
data modyfikacji:
09-10-2025
jakość wypełnienia oferty:
100%

Szczegóły oferty


!!! KUPUJĄCY NIE PŁACI PROWIZJI !!!

Do
sprzedania dom jednorodzinny w zabudowie bliźniaczej
o pow.
użytkowe j
113,79m2 + garaż , pow.
podłóg
132,04m2
zlokalizowany w miejscowości
Zielonki, gm. Zielonki, nieopodal ewidencyjnej granicy Krakowa.
Dom położony na bardzo kameralnym, ogrodzonym osiedlu usytuowanym w I linii zabudowy od drogi gminnej asfaltowej. Wnętrza jasne i funkcjonalne.
Dom z czterema sypialniami,
garażem ulokowanym w bryle,
dwoma miejscami postojowymi oraz ogródkiem o pow. 82m2.

Media:
prąd, woda, kanalizacja, internet.
Dom sprzedawany w stanie deweloperskim obejmującym:

ściany zewnętrzne - beton komórkowy,
ściany wewnętrzne - beton komórkowy,
stolarka okienna - PVC Dako
zestawy ciepłe trzyszybowe,
tynki wewnętrzne - gipsowe oraz zabudowa G-K na ruszcie,
tynki zewnętrzne - tynki silikonowe na kleju i/lub mineralne cienkowarstwowe nakładane na warstwę ocieplenia styropianu 15cm,
cokoły - tynki żywiczne,
pokrycie dachowe - dachówka,
ocieplenie dachu - 30cm wełny mineralnej,
system rynnowy z tworzywa sztucznego,
stolarka drzwiowa - drzwi wejściowe do budynku, drzwi do lokalu;
ogrzewanie podłogowe w oparciu o pompę ciepła
ze zintegrowanym zbiornikiem buforowym wraz z funkcją C.W.U,
wentylacja mechaniczna z rekuperacją,
instalacja wod-kan - rury polietylenowe, wodomierz, zawory odcinające,
na terenie ogródków zbiornik szczelny wybieralny na wody opadowe,
instalacja elektryczna - przewody miedziane, osprzęt podtynkowy, przygotowanie pod instalacje PV;
instalacja niskoprądowa - RTV, domofon, internet światłowodowy / dostawca zewnętrzny/,
przygotowana instalacja fotowoltaiczna,
d
o jście do budynku i miejsca postojowe z kostki brukowej,
opaska wokół domu,
ogrodzenie panelowe wraz z furtką,
miejsce postojowe (w sąsiedztwie możliwość bezpłatnego parkowania przy drodze publicznej),
brama wjazdowa sterowana na pilota.

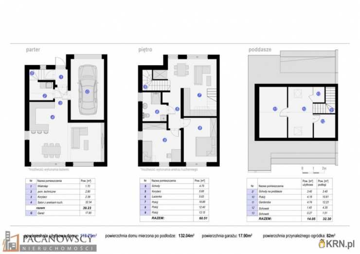
Rozkład pomieszczeń:
Parter:
wiatrołap (1,7m2), pom. techniczne (2,8m2), korytarz (2,339m2), salon z aneksem kuchennym (32,34m2), garaż (17,9m2) -
razem 57,13m2
Pietro:
schody (4,75m2), korytarz (5,69m2), łazienka (5,63m2), pokój (18,89m2), pokój (12,4m2), pokój (13,15m2) -
razem 60,51m2
Poddasze:
schody na poddasze (3,4m2), pokój (4,19m2), garderoba (4,74m2), schowek (1,45m2), schowek (0,27m2) -
razem 14,05m2

LOKALIZACJA
Nieruchomość położona w bardzo dobrej lokalizacji, gwarantującej świetną komunikację oraz dostęp do pełnej infrastruktury. W promieniu 1 km: sklepy, restauracje, gabinet lekarski, paczkomat, Urząd Gminy, kwiaciarnia, fryzjer, szkoła, przedszkole, pływalnia, centrum kultury, kościół, mechanika samochodowa.
Ewidencyjna granica m. Krakowa ok. 600m. Nieopodal węzeł Północnej Obwodnicy Krakowa i Trasy Wolbromskiej.

Cena: 1.250.000 zł. Kupujący zwolniony z podatku PCC oraz prowizji.

Serdecznie polecamy i zachęcamy do bezpłatnej prezentacji !!! Więcej podobnych ofert na naszej stronie www.pacanowscy.pl Kontakt do opiekuna oferty: Zobacz kontakt505-304-807 Łukasz Koczwara
Pośrednik odpowiedzialny zawodowo za wykonanie umowy pośrednictwa: Mieszko Pacanowski (licencja nr: 21215)
Oferta wysłana z systemu Galactica Virgo
Ogrzewanie: POMPA CIEPLA
Materiał: BETON KOMORKOWY

Kontakt do agenta:
Łukasz Koczwara
Zobacz kontaktlukasz@pacanowscy.pl
Zobacz kontakt504-112-605
Zobacz kontakt505-304-807

Oceń ofertę


0


103 wydruk błąd schowek

Ostatnio przeglądane

 

 

 

pobieranie

Pobierz wzór umowy

Umowa przedwstępna sprzedaży

wybierz plik do pobrania
doc pdf

 

 

Deweloperzy

);