Prosimy, odblokuj wyświetlanie reklam w naszym serwisie, są one związane z rynkiem nieruchomości.
To dzięki nim masz darmowy dostęp do naszych treści.

Z pozdrowieniami zespół KRN.pl :)


telefon

wiadomość

mapa

Dom, Namysłów

Dom na sprzedaż Namysłów (woj. Opolskie)

Lokalizacja:

Namysłów, , ul.

Powierzchnia:

132.00 m2

Cena:

390 000 zł

Dane szczegółowe

lokalizacja:
Opolskie, Namysłów
typ obiektu:
dom na sprzedaż
cena:
390 000 zł
powierzchnia:
132.00 m2
numer ogłoszenia:
KOS-DS-3625-17
data dodania:
13-11-2020
data modyfikacji:
13-11-2020
jakość wypełnienia oferty:
100%

Szczegóły oferty


Kupujący nie płaci prowizji!!!
Przedstawiamy Państwu ofertę domów w zabudowie szeregowej na spokojnym i kameralnym osiedlu w Namysłowie.
Budynki zostały zaprojektowane ze szczególną starannością z uwzględnieniem funkcjonalności układu
pomieszczeń, wykonane materiałami wysokiej jakości przez doświadczone ekipy budowlane.

OPIS:
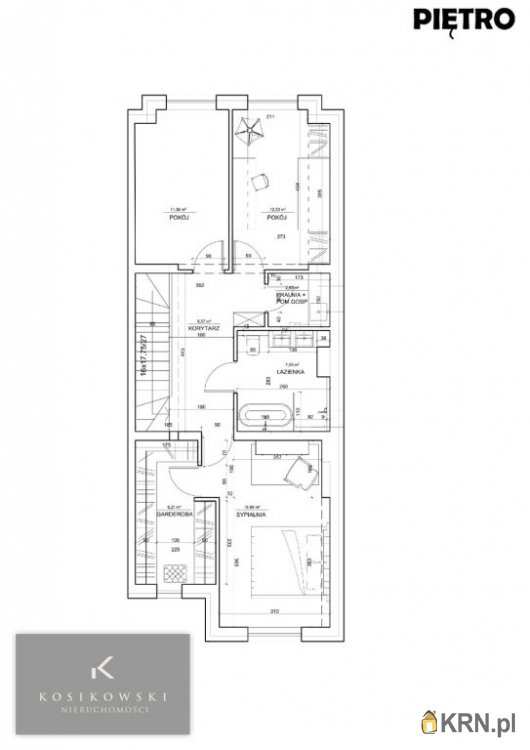
Powierzchnia użytkowa domu to 112,6m2 oraz 15,7m2 powierzchni garażu i 4,2m2 pomieszczenia gospodarczego (kotłownia).
Oferowana nieruchomość składa się z wygodnej strefy dziennej z otwartą kuchnią i przestronnym salonem na parterze. Część nocna na piętrze to aż trzy sypialnie, garderoba i łazienka. Zgrabny projekt oraz przemyślany rozkład pomieszczeń pozwalają na wiele możliwości aranżacyjnych.
W skład nieruchomości wchodzą także schody oraz duże okna wyposażone w elektryczne rolety w standardzie!!!
Nieruchomość wyposażona we wszystkie media miejskie.
Ogród znajduje się od strony południowej. Do wybory mają Państwo kilka wariantów metrażowych i cenowych.

Poniżej cennik poszczególnych budynków zgodnie z numeracją przedstawioną na zdjęciu nr 9
(zróżnicowanie cen wynika z wielkości ogrodów).

2 - 390 000,- 3 - 395 000,- 4 - 400 000,- 5 - 405 000,- 6 - 410 000,- 7 - 415 000,-

Pomieszczenia na parterze i piętrze nie maja skosów , a OGROMNE PODDASZE TO DODATKOWE 67M2 GRATIS!!!

TECHNOLOGIA WYKONANIA:
Technologia tradycyjna

Ławy żelbetowe,
Ściany fundamentowe z bloczków betonowych, termoizolowane
styropianem,
Ściany zewnętrzne z pustaków ceramicznych POROTHERM gr.24 cm, docieplone styropianem gr.15 cm,
Strop- płyta TERIVA ( nad parterem). Nad I piętrem belki stropowe drewniane płyta k-gipsowa, izolacja cieplna z wełny mineralnej
Ściany działowe z bloczków gazobetonowych pokryte tynkiem
Konstrukcja dachu drewniana, pokryta dachówką ceramiczną, izolacja termiczna dachu wełną mineralną, stolarka okienna PCV

LOKALIZACJA : W bezpośrednim sąsiedztwie inne zabudowania jednorodzinne oraz tereny zielone, co dla osób ceniących sobie ciszę, spokój oraz kontakt z naturą jest doskonałym rozwiązaniem. Usytuowanie przedmiotowej działki to niezwykle urokliwe osiedle domków jednorodzinnych w Namysłowie. Komfortowy dojazd do działki - droga wyłożona kostką. Niewątpliwym atutem nieruchomości jest jego atrakcyjna lokalizacja - zaledwie kilka minut od centrum miasta, a jednocześnie z dala od miejskiego zgiełku. W Centrum liczne sklepy spożywcze tj.: Lidl, Tesco, Kaufland, a także centrum handlowe MyBox, z niezbędnymi sklepami odzieżowymi, sportowymi, elektronicznymi czy kosmetycznymi, w których każdy znajdzie coś dla siebie, a także instytucje użyteczności publicznej, w których załatwienie spraw urzędowych czy formalnych nie sprawia większego kłopotu.

Kliencie nic nam nie zapłacisz, a otrzymasz:

kilkaset ofert w jednym miejscu,
pomoc przy załatwieniu kredytu na zakup nieruchomości,
rzetelną informacje o każdej ofercie,
sprawdzony stan prawny nieruchomości,
możliwość obejrzenia każdej oferty w dogodnym dla siebie terminie,
uzgodnione warunki i dokumentację do zawarcia umowy przedwstępnej,
pełną dokumentację i koordynację
aktu notarialnego,
protokoły przekazania nieruchomości i liczników,
zapłatą dla nas ma być Twój uśmiech.

Oferujemy skuteczną, nieodpłatną pomoc w uzyskaniu kredytu na zakup nieruchomości. Zapraszamy do naszego biura w celu omówienia szczegółów oferty oraz ustalenia dogodnego dla Państwa terminu prezentacji.
Nota prawna: Informacje dotyczące opisu nieruchomości podane są przez właściciela, mają charakter wyłącznie informacyjny i mogą podlegać aktualizacji. Oferta dotycząca nieruchomości stanowi zaproszenie do rokowań zgodnie z art. 71 Kodeksu Cywilnego i nie stanowi oferty określonej w art. 66 i następnych KC.
Odnośnik do oferty na stronie biura: https://www.kosikowski.com.pl/ad/3672
OSOBA PROWADZĄCA
Magdalena Wrzesińska
tel. (+48) Zobacz kontakt667 06 50 60
tel. (+48) Zobacz kontakt77 410 50 60
www.kosikowski.com.pl
Zobacz kontaktm.wrzesinska@kosikowski.com.pl
Pod nadzorem pośrednika - licencja 11884
Pośrednik odpowiedzialny zawodowo za wykonanie umowy pośrednictwa: Kosikowski Nieruchomości - Biuro Namysłów (licencja nr: 11884)
Oferta wysłana z systemu Galactica Virgo

Kontakt do agenta:
Kosikowski Nieruchomości - Biuro Namysłów
Zobacz kontaktkontakt@kosikowski.com.pl
Zobacz kontakt774105060

Oceń ofertę


9.99


1136 wydruk błąd schowek

Ostatnio przeglądane

 

 

 

pobieranie

Pobierz wzór umowy

Umowa przedwstępna sprzedaży

wybierz plik do pobrania
doc pdf

 

 

Deweloperzy

);