Prosimy, odblokuj wyświetlanie reklam w naszym serwisie, są one związane z rynkiem nieruchomości.
To dzięki nim masz darmowy dostęp do naszych treści.

Z pozdrowieniami zespół KRN.pl :)


telefon

wiadomość

mapa

Dom, Kraków, Wzgórza Krzesławickie/Grębałów

Dom na sprzedaż Kraków (woj. Małopolskie), Wzgórza Krzesławickie/Grębałów

Lokalizacja:

Kraków, Wzgórza Krzesławickie/Grębałów, ul.

Powierzchnia:

131.60 m2

Cena:

1 099 000 zł

Dane szczegółowe

lokalizacja:
Małopolskie, Kraków, Wzgórza Krzesławickie/Grębałów
typ obiektu:
dom na sprzedaż
cena:
1 099 000 zł
powierzchnia:
131.60 m2
numer ogłoszenia:
BS2-DS-297950-97
data dodania:
30-11-2024
data modyfikacji:
30-11-2024
jakość wypełnienia oferty:
100%

Szczegóły oferty



Bracia Sadurscy to oficjalny przedstawiciel handlowy dewelopera - kupując z nami nie płacisz prowizji i ukrytych kosztów.
NOWE DOMY W STANIE DEWELOPERSKIM

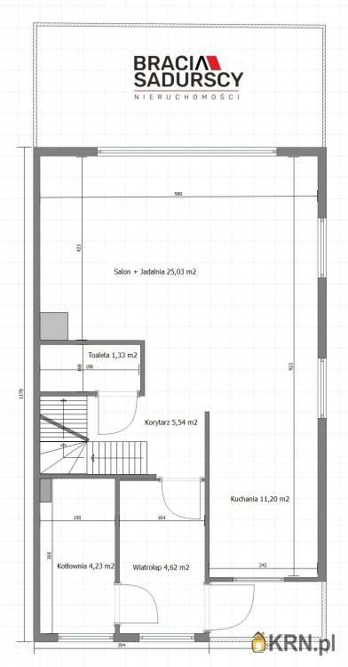
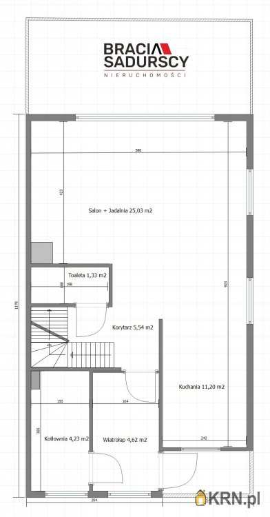
Drugi etap osiedla składa się z 10 domów w zabudowie bliźniaczej w stanie deweloperskim. Prezentowany dom o powierzchni użytkowej 128,57 m2 (w tym 20 m2 ocieplonego poddasza), składa się z trzech kondygnacji.
PARTER:
salon z aneksem kuchennym, jadalnia, toaleta, wiatrołap, korytarz, kotłownia.
PIĘTRO:
trzy sypialnie, łazienka, garderoba, korytarz.
PODDASZE:
Poddasze do aranżacji według własnego uznania np. siłownia lub pokój zabaw dla dzieci. Można również wydzielić dwa pokoje.
Każdy dom z przynależnym ogródkiem i dwoma miejscami parkingowymi w cenie, osiedle będzie ogrodzone, brama na pilota oraz furtka. Chodniki i drogi dojazdowe z kostki.
MEDIA:
woda, kanalizacja, prąd, gaz, internet, zbiornik na wody deszczowe.

MATERIAŁY UŻYTE DO BUDOWY:
ELEWACJA;
Ocieplenie -styropian 20cm.
SCIANY: Pustak ceramiczny
DACH: Dachówka.
Wentylacja mechaniczna z rekuperacją i odzyskiem ciepła.

Inwestycja znajduje się w cichej i spokojnej lokalizacji. W pobliżu znajduje się przedszkole, szkoła podstawowa oraz przystanek autobusowy, którym można dostać się bardzo szybko do centrum Huty.

KONTAKT:
MALWINA FILAS TEL. Zobacz kontakt518-706-518
Zobacz kontaktmalwina@sadurscy.pl

::DODATKOWE INFORMACJE
Kategoria oferty: Pewny Partner Prąd: jest Gaz: jest Woda: jest Dojazd: kostka brukowa Otoczenie: zabudowa wielorodzinna Ogrzewanie: C.O. GAZOWE Kanalizacja: tak Komunikacja publ.: MPK, PKP, autobus Opłaty wg liczników: woda, prąd, gaz Okna: PCV Instalacje: nowe Balkon: jest Liczba balkonów: 1 Tarasy: taras Liczba tarasów: 1 Zagosp. działki: zagospodarowana Kształt działki: prostokąt Rodzaj domu: bliźniak Stan wybudowania: Stan deweloperski Typ elewacji: tynk zwykły Podst. materiał budowlany: pustak ceramiczny Pokrycie dachu: dachówka Powierzchnia użytkowa [m2]: 128,5700 Stan budynku: do wykończenia Podpiwniczenie: nie Garaż: jest Ogrodzenie działki: ogrodzona Rok budowy: 2023 Liczba pokoi: 4 Liczba sypialni: 3 Powierzchnia pokoi [m2]: 11,12; 13,04; 11,80 Podłogi pokoi: wylewka Ściany pokoi: tynk Typ kuchni: aneks kuchenny - połączony z salonem Rodzaj kuchni: aneks Podłoga kuchni: wylewka Typ łazienki: razem z wc Liczba łazienek: 1 Powierzchnia łazienki [m2]: 6,84 Glazura łazienki: bez glazury Podłoga łazienki: wylewka Ściany łazienki: tynk Liczba WC: 1 Powierzchnia WC: 1,33 Glazura WC: bez glazury Podłoga WC: wylewka Ściany WC: zwykłe Liczba przedpokoi: 2 Podłoga przedpokoi: wylewka Ściany przedpokoi: tynk
::LINK DO STRONY
https://sadurscy.pl/offer/BS2-DS-297950
::KONTAKT DO AGENTA
Malwina Filas + Zobacz kontakt48 518-706-518 Zobacz kontaktmalwina@sadurscy.pl
::DANE BIURA
Oddział BS2, Rynek Pierwotny Przewóz
47 30-081 Kraków Zobacz kontakt12 630-90-45
--------------------------
::GRATIS | Nasza prowizja zawiera: koszt przedwstępnej notarialnej umowy sprzedaży nieruchomości z rynku wtórnego. ::GWARANCJA | Gwarancja zwrotu zadatku. Więcej informacji na sadurscy.pl/zwrot-zadatku/

Ogrzewanie: Gazowe
Materiał: Pustak

Kontakt do agenta:
Malwina Filas
Zobacz kontaktmalwina@sadurscy.pl
+ Zobacz kontakt48 518-706-518

Oceń ofertę


3.4


504 wydruk błąd schowek

Ostatnio przeglądane

 

 

 

pobieranie

Pobierz wzór umowy

Umowa przedwstępna sprzedaży

wybierz plik do pobrania
doc pdf

 

 

Deweloperzy

);