Prosimy, odblokuj wyświetlanie reklam w naszym serwisie, są one związane z rynkiem nieruchomości.
To dzięki nim masz darmowy dostęp do naszych treści.

Z pozdrowieniami zespół KRN.pl :)


telefon

wiadomość

mapa

Dom, Piekary

Dom na sprzedaż Piekary (woj. Małopolskie)

Lokalizacja:

Piekary, , ul.

Powierzchnia:

130.94 m2

Cena:

980 000 zł

Dane szczegółowe

lokalizacja:
Małopolskie, Piekary
typ obiektu:
dom na sprzedaż
cena:
980 000 zł
powierzchnia:
130.94 m2
numer ogłoszenia:
BS2-DS-276610-109
data dodania:
25-05-2024
data modyfikacji:
25-05-2024
jakość wypełnienia oferty:
100%

Szczegóły oferty


Osiedle domów w zabudowie bliźniaczej o powierzchni 130,94 m2,zlokalizowane w miejscowości
Piekary .
Domy posiadają
garaże
jednostanowiskowe, powierzchnia działek od
3,1
ar do
7
ar.

Inwestycja zlokalizowana jest w otoczeniu niskiego budownictwa, przeważają tereny zielone, okolica spokojna.
• 100m do przystanku autobusowego
• 3km do obwodnicy krakowskiej (Węzeł Mirowski)
• 500m do sklepu spożywczego (Lewiatan)
• 4km do sklepu spożywczego (Biedronka)
Domy budowane do stanu deweloperskiego: ściany pustak ceramiczny, styropian 20 cm + tynk akrylowym, dach pokryty dachówką ceramiczną, o
kna PCV 3-szybowe - kolor Antracyt, poddasze ocieplone: wełna 30 cm.
Parapety wewnętrzne: kamień naturalny, grzejniki panelowe białe.
Ogrzewanie podłogowe ,
kocioł z zamkniętą komorą spalania.
Podjazdy i tarasy wyłożone kostką brukową, ogródki ogrodzone.

Termin zakończenia inwestycji: II / III kwartał 2022 r.
Zapraszamy do prezentacji!
Opiekun oferty:
Michał Bańdo
tel. Zobacz kontakt518-714-002
Zobacz kontaktmichal2@sadurscy.pl

::DODATKOWE INFORMACJE
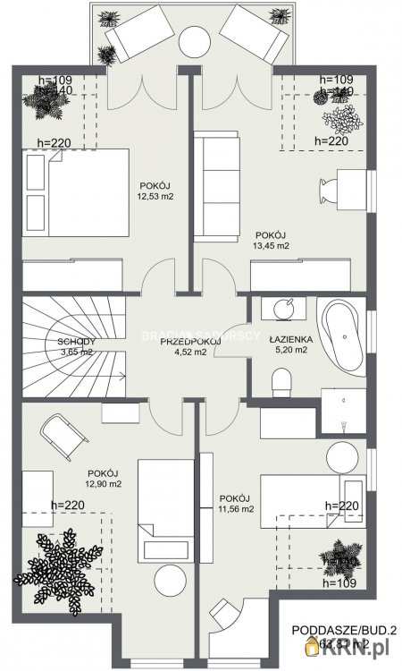
Kategoria oferty: Mieszkania dla rodzin z dziećmi Prąd: jest Gaz: jest Woda: jest Dojazd: asfaltowa/kostka Otoczenie: zabudowa jednorodzinna Ogrzewanie: C.O. GAZOWE Kanalizacja: tak Linie telefoniczne: TAK Alarm: TAK Komunikacja publ.: autobus miejski Odległość do komunikacji publicznej [m]: 500 Odl. do sklepu [m]: 500 Odl. do szkoły [m]: 500 Odl. do przedszkola [m]: 500 Opłaty wg liczników: woda, prąd, gaz Okna: PCV 3 komorowe Instalacje: ELEKTRYCZNA, GAZOWA, TELEFONICZNA, INTERNETOWA Balkon: jest Liczba balkonów: 1 Tarasy: taras Liczba tarasów: 1 Zagosp. działki: częściowo zagospodarowana Ukształtowanie działki: płaska Kształt działki: nieregularny Rodzaj domu: bliźniak Stan wybudowania: Stan deweloperski Typ elewacji: tynk zwykły Podst. materiał budowlany: pustak ceramiczny Pokrycie dachu: dachówka ceramiczna Stan budynku: do wykończenia Podpiwniczenie: nie Garaż: 1 Ogrodzenie działki: ogrodzona Rok budowy: 2021 Liczba pokoi: 5 Liczba sypialni: 4 Powierzchnia pokoi [m2]: 12,90 ; 11,55 ; 13,45 ; 12,53 Podłogi pokoi: wylewka betonowa Ściany pokoi: zwykłe Typ kuchni: aneks kuchenny Rodzaj kuchni: aneks kuchenny połączony z jadalnią i salonem Powierzchnia kuchni [m2]: 6,42 Podłoga kuchni: wylewka Typ łazienki: razem z wc Liczba łazienek: 2 Powierzchnia łazienki [m2]: 6,12 ; 5,20 Glazura łazienki: bez glazury Podłoga łazienki: wylewka Ściany łazienki: zwykłe Liczba przedpokoi: 2 Powierzchnia przedpokoi [m2]: 6,84 ; 4,52 Podłoga przedpokoi: wylewka Ściany przedpokoi: zwykłe
::LINK DO STRONY
https://sadurscy.pl/offer/BS2-DS-276610
::KONTAKT DO AGENTA
Michał Bańdo + Zobacz kontakt48 518-714-002 Zobacz kontaktmichal2@sadurscy.pl
::DANE BIURA
Oddział BS2, Rynek Pierwotny Królewska 67 30-081 Kraków Zobacz kontakt12 630-90-45
Pośrednik odpowiedzialny zawodowo za wykonanie umowy pośrednictwa: Michał Bańdo (licencja nr: 27635)
--------------------------
::GRATIS | Nasza prowizja zawiera: koszt przedwstępnej notarialnej umowy sprzedaży nieruchomości z rynku wtórnego. ::GWARANCJA | Gwarancja zwrotu zadatku. Więcej informacji na sadurscy.pl/zwrot-zadatku/

Ogrzewanie: Gazowe
Materiał: Pustak

Kontakt do agenta:
Michał Bańdo
Zobacz kontaktmichal2@sadurscy.pl
+ Zobacz kontakt48 518-714-002

Oceń ofertę


3.4


424 wydruk błąd schowek

Ostatnio przeglądane

 

 

 

pobieranie

Pobierz wzór umowy

Umowa przedwstępna sprzedaży

wybierz plik do pobrania
doc pdf

 

 

Deweloperzy

);