Prosimy, odblokuj wyświetlanie reklam w naszym serwisie, są one związane z rynkiem nieruchomości.
To dzięki nim masz darmowy dostęp do naszych treści.

Z pozdrowieniami zespół KRN.pl :)


telefon

wiadomość

mapa

Dom, Kraków, Zwierzyniec/Wola Justowska, ul. Podłużna

Dom na sprzedaż Kraków (woj. Małopolskie), Zwierzyniec/Wola Justowska, ul. Podłużna

Lokalizacja:

Kraków, Zwierzyniec/Wola Justowska, ul. Podłużna

Powierzchnia:

124.37 m2

Cena:

2 176 475 zł

Dane szczegółowe

lokalizacja:
Małopolskie, Kraków, Zwierzyniec/Wola Justowska, ul. Podłużna
typ obiektu:
dom na sprzedaż
cena:
2 176 475 zł
powierzchnia:
124.37 m2
numer ogłoszenia:
BS2-DS-304804-121
data dodania:
13-02-2026
data modyfikacji:
13-02-2026
jakość wypełnienia oferty:
100%

Szczegóły oferty


Szanowni Państwo,

Mam przyjemność zaprezentować nową prestiżową inwestycję w Krakowie, w dzielnicy Wola Justowska.
Jest to oferta, która może zainteresować osoby stawiające na pierwszym miejscu komfort, prywatność i
wysoki standard wykończenia.
P
rzedmiotem oferty jest dom w zabudowie bliźniaczej - gotowy do odbioru!
ODDAWANY W STANIE DEWELOPERSKIM+
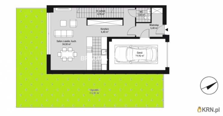
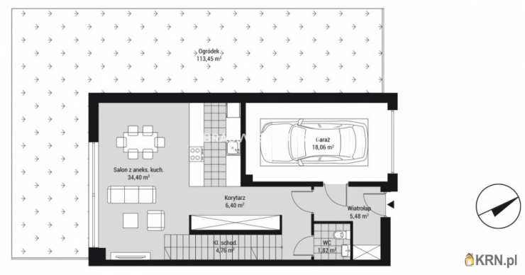
Budynek jednorodzinny, wolnostojący z wbudowanym garażem, dwukondygnacyjny, niepodpiwniczony.
Pomieszczenia funkcjonalne na poszczególnych kondygnacjach:
Parter:
salon z aneksem kuchennym 34,50m2
wiatrołap 5,40m2
korytarz 6,40m2
wc 1,82m2
klatka schodowa 4,76m2
garaż w bryle : 18,06m2
OGRÓDEK 112,81m2
Piętro :
Sypialnia (1) 15,45m2
sypialnia (2) 13,39m2
sypialnia (3) 14,68m2
łazienka 6,58m2
toaleta 3,23m2
korytarz 12m2
+ Taras na dachu ok 60m2

Lokalizacja zapewnia wygodną komunikację, bliskość centrum miasta, jednocześnie pozwala poczuć przestrzeń i bliskość natury.

Aby zapewnić integrację z naturą, przewidziano dla mieszkańców wyjątkowe przestrzenie do odpoczynku, zaczynając od zielonych dziedzińców i ogrodów, kończąc na zielonych tarasach i przestronnych balkonach.
Inwestycja jest tak architektonicznie rozplanowana, by zapewnić mieszkańcom najwyższy poziom komfortu, bezpieczeństwa i prywatności.
Lokalizacja:
Park Decjusza - 15 minut spacerkiem, Las Wolski 9 minut, Rynek Główny 12 minut samochodem, Krakowskie Błonia 12 minut samochodem. W sąsiedztwie niska zabudowa willowa oraz liczne punkty handlowo-usługowe.

INSTALACJE:
a. Elektryczna - wewnętrzna standardowa oświetlenia i gniazd wtykowych oraz siłowa dla kuchenki elektrycznej,
b. Domofonowa- wideodomofon Greon GR-OS2
c. Ciepła woda użytkowa z indywidualnego kotła gazowego,
d. Wentylacja mechaniczna rekuperacją,
e. Kanalizacyjna (rury i kształtki z PCV),
f. Podejścia sanitarne natynkowe przygotowane pod przybory sanitarne montowane na stelażach (w zakresie Nabywcy),
g. C.O. -rozprowadzona - podłogowa oraz grzejnik we wskazanych pomieszczeniach,
h. Telefoniczna, kablowa TV, internetowa

DOM GOTOWY DO UŻYTKOWANIA!

Osoby zainteresowane, serdecznie zapraszam do kontaktu .
Barbara Nazarewicz
+ Zobacz kontakt48 515 634 552
Zobacz kontaktbasia@sadurscy.pl ::DODATKOWE INFORMACJE
Kategoria oferty: Mieszkania dla rodzin z dziećmi Rodzaj budynku: apartamentowiec Dozór budynku: brak Głośność: ciche Gaz: jest Woda: jest Dojazd: asfalt Otoczenie: zabudowa jednorodzinna Ogrzewanie: C.O. GAZOWE Linie telefoniczne: TAK Alarm: TAK Internet: TAK Komunikacja publ.: MPK, autobus Rozkład: rozkładowe Usytuowanie: jednostronne Teren ogrodzony: TAK Opłaty w czynszu: - Stan lokalu: deweloperski Okna: PCV Instalacje: ELEKTRYCZNA, GAZOWA, TELEFONICZNA, INTERNETOWA Balkon: taras Liczba balkonów: 1 Tarasy: taras Powierzchnia ogródka [m2]: 112,8100 Zagosp. działki: zagospodarowana Ukształtowanie działki: płaska Kształt działki: prostokąt Rodzaj domu: bliźniak Stan wybudowania: Stan deweloperski Typ elewacji: tynk szlachetny Podst. materiał budowlany: pustak Pokrycie dachu: inne Stan budynku: do wykończenia Podpiwniczenie: nie Garaż: garaż Ogrodzenie działki: częściowo ogrodzona Rok budowy: 2023 Liczba pokoi: 4 Liczba sypialni: 3 Podłogi pokoi: wylewka Ściany pokoi: zwykłe Typ kuchni: aneks kuchenny - połączony z salonem Rodzaj kuchni: aneks kuchenny Podłoga kuchni: wylewka Typ łazienki: razem z wc Liczba łazienek: 2 Glazura łazienki: bez glazury Podłoga łazienki: wylewka Ściany łazienki: zwykłe Liczba WC: 1 Powierzchnia WC: 1,82 Glazura WC: bez glazury Podłoga WC: wylewka Ściany WC: zwykłe Liczba przedpokoi: 1 Podłoga przedpokoi: wylewka Ściany przedpokoi: zwykłe
::LINK DO STRONY
https://sadurscy.pl/offer/BS2-DS-304804
::KONTAKT DO AGENTA
Barbara Nazarewicz + Zobacz kontakt48 515-634-552 Zobacz kontaktbasia@sadurscy.pl
::DANE BIURA
Oddział BS2, Rynek Pierwotny Przewóz
47 30-081 Kraków Zobacz kontakt12 630-90-45
--------------------------
::GRATIS | Nasza prowizja zawiera: koszt przedwstępnej notarialnej umowy sprzedaży nieruchomości z rynku wtórnego. ::GWARANCJA | Gwarancja zwrotu zadatku. Więcej informacji na sadurscy.pl/zwrot-zadatku/

Ogrzewanie: Gazowe
Materiał: Pustak

Kontakt do agenta:
Barbara Nazarewicz
Zobacz kontaktbasia@sadurscy.pl
+ Zobacz kontakt48 515-634-552

Oceń ofertę


0


4 wydruk błąd schowek

Ostatnio przeglądane

 

 

 

pobieranie

Pobierz wzór umowy

Umowa przedwstępna sprzedaży

wybierz plik do pobrania
doc pdf

 

 

Deweloperzy

);