Prosimy, odblokuj wyświetlanie reklam w naszym serwisie, są one związane z rynkiem nieruchomości.
To dzięki nim masz darmowy dostęp do naszych treści.

Z pozdrowieniami zespół KRN.pl :)


telefon

wiadomość

mapa

Dom, Kraków, Zwierzyniec/Wola Justowska, ul. Podłużna

Dom na sprzedaż Kraków (woj. Małopolskie), Zwierzyniec/Wola Justowska, ul. Podłużna

Lokalizacja:

Kraków, Zwierzyniec/Wola Justowska, ul. Podłużna

Powierzchnia:

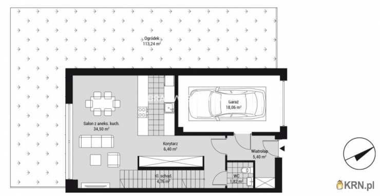
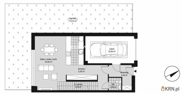
124.37 m2

Cena:

2 176 475 zł

Dane szczegółowe

lokalizacja:
Małopolskie, Kraków, Zwierzyniec/Wola Justowska, ul. Podłużna
typ obiektu:
dom na sprzedaż
cena:
2 176 475 zł
powierzchnia:
124.37 m2
numer ogłoszenia:
BS2-DS-284984-108
data dodania:
09-01-2026
data modyfikacji:
09-01-2026
jakość wypełnienia oferty:
100%

Szczegóły oferty


Szanowni Państwo,

Mam przyjemność zaprezentować nową prestiżową inwestycję w Krakowie, w dzielnicy Wola Justowska.
Jest to oferta, która może zainteresować osoby stawiające na pierwszym miejscu komfort i prywatność.
Lokalizacja zapewnia wygodną komunikację, bliskość centrum miasta, jednocześnie pozwala poczuć przestrzeń i bliskość natury.
Cała inwestycja składa się z 16 apartamentów (pow. 52 do 90 m2), 2 wille (pow. 116 i 130 m2) oraz 16 domów w zabudowie bliźniaczej (pow. 124,45 m2).
Aby zapewnić integrację z naturą, przewidziano dla mieszkańców wyjątkowe przestrzenie do odpoczynku, zaczynając od zielonych dziedzińców i ogrodów, kończąc na zielonych tarasach i przestronnych balkonach.
Inwestycja jest tak architektonicznie rozplanowana, by zapewnić mieszkańcom najwyższy poziom komfortu, bezpieczeństwa i prywatności.
Lokalizacja:
Park Decjusza - 15 minut spacerkiem, Las Wolski 9 minut, Rynek Główny 12 minut samochodem, Krakowskie Błonia 12 minut samochodem. W sąsiedztwie niska zabudowa willowa oraz liczne punkty handlowo-usługowe.
Miejsce postojowe - 50.000 tysięcy, zakup obligatoryjny.

Termin zakończenia budowy: IV kwartał 2023 r.

Osoby zainteresowane, serdecznie zapraszam do kontaktu telefonicznego lub pozostawienia danych kontaktowych.

::DODATKOWE INFORMACJE
Kategoria oferty: Mieszkania dla rodzin z dziećmi Rodzaj budynku: apartamentowiec Dozór budynku: brak Głośność: ciche Gaz: jest Woda: jest Dojazd: asfalt Otoczenie: zabudowa jednorodzinna Ogrzewanie: C.O. GAZOWE Linie telefoniczne: TAK Alarm: TAK Internet: TAK Komunikacja publ.: MPK, autobus Rozkład: rozkładowe Usytuowanie: jednostronne Teren ogrodzony: TAK Opłaty w czynszu: - Stan lokalu: deweloperski Okna: PCV Instalacje: ELEKTRYCZNA, GAZOWA, TELEFONICZNA, INTERNETOWA Balkon: taras Liczba balkonów: 1 Tarasy: taras Zagosp. działki: zagospodarowana Ukształtowanie działki: płaska Kształt działki: prostokąt Rodzaj domu: bliźniak Stan wybudowania: Stan deweloperski Typ elewacji: tynk szlachetny Podst. materiał budowlany: pustak Pokrycie dachu: inne Stan budynku: do wykończenia Podpiwniczenie: nie Garaż: garaż Ogrodzenie działki: częściowo ogrodzona Rok budowy: 2023 Liczba pokoi: 4 Liczba sypialni: 3 Podłogi pokoi: wylewka Ściany pokoi: zwykłe Typ kuchni: aneks kuchenny - połączony z salonem Rodzaj kuchni: aneks kuchenny Podłoga kuchni: wylewka Typ łazienki: razem z wc Liczba łazienek: 2 Glazura łazienki: bez glazury Podłoga łazienki: wylewka Ściany łazienki: zwykłe Liczba WC: 1 Powierzchnia WC: 1,82 Glazura WC: bez glazury Podłoga WC: wylewka Ściany WC: zwykłe Liczba przedpokoi: 1 Podłoga przedpokoi: wylewka Ściany przedpokoi: zwykłe
::LINK DO STRONY
https://sadurscy.pl/offer/BS2-DS-284984
::KONTAKT DO AGENTA
Marek Popiela + Zobacz kontakt48 518-967-677 Zobacz kontaktmarek@sadurscy.pl
::DANE BIURA
Oddział BS2, Rynek Pierwotny Przewóz
47 30-081 Kraków Zobacz kontakt12 630-90-45
--------------------------
::GRATIS | Nasza prowizja zawiera: koszt przedwstępnej notarialnej umowy sprzedaży nieruchomości z rynku wtórnego. ::GWARANCJA | Gwarancja zwrotu zadatku. Więcej informacji na sadurscy.pl/zwrot-zadatku/

Ogrzewanie: Gazowe
Materiał: Pustak

Kontakt do agenta:
Marek Popiela
Zobacz kontaktmarek@sadurscy.pl
+ Zobacz kontakt48 518-967-677

Oceń ofertę


0


28 wydruk błąd schowek

Ostatnio przeglądane

 

 

 

pobieranie

Pobierz wzór umowy

Umowa przedwstępna sprzedaży

wybierz plik do pobrania
doc pdf

 

 

Deweloperzy

);