Prosimy, odblokuj wyświetlanie reklam w naszym serwisie, są one związane z rynkiem nieruchomości.
To dzięki nim masz darmowy dostęp do naszych treści.

Z pozdrowieniami zespół KRN.pl :)


telefon

wiadomość

mapa

Dom, Trąbki

Dom na sprzedaż Trąbki (woj. Małopolskie)

Lokalizacja:

Trąbki, , ul.

Powierzchnia:

120.12 m2

Cena:

707 400 zł

Dane szczegółowe

lokalizacja:
Małopolskie, Trąbki
typ obiektu:
dom na sprzedaż
cena:
707 400 zł
powierzchnia:
120.12 m2
numer ogłoszenia:
BS2-DS-284823-204
data dodania:
25-05-2024
data modyfikacji:
25-05-2024
jakość wypełnienia oferty:
100%

Szczegóły oferty



ORYGINALNE DOMY Z BALI FIRMY "OMDOM" - DREWNIANE, EKOLOGICZNE, ZDROWE.


Projekt "

rytowo 3 dwk

" z firmy Dom-Projekt

Oferujemy do sprzedaży wolnostojący dom, wykonany z drewnianych bali, strugach ręcznie. Budynek parterowy z użytkowym poddaszem o powierzchni całkowitej 120,12 m2. Zwar­ta bryła bu­dyn­ku i dach dwu­spa­do­wy sprzyja­ją szybkiej i taniej bu­do­wie i ni­skim kosz­tom eks­plo­ata­cji. Dla tych, którzy cenią naprawdę wyjątkowe rzeczy, firma „Omdom” buduje ekskluzywne domy ręcznie.
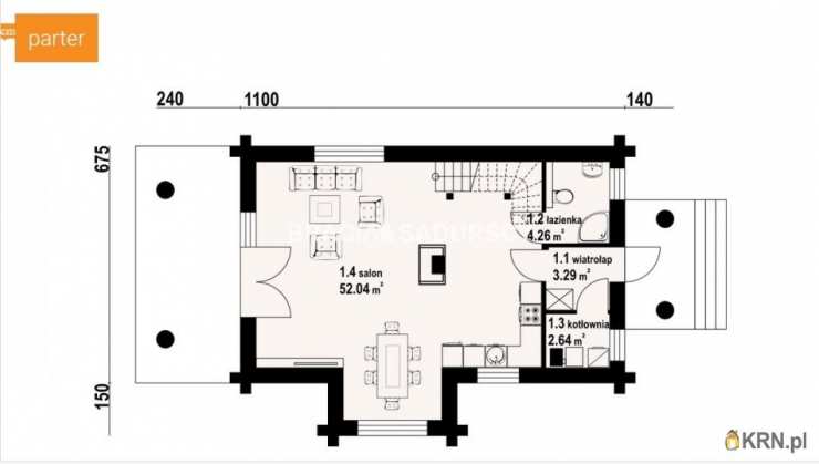
Rozkład pomieszczeń:
wiatrołap 3,29 m2
łazienka 4,26 m2
komunikacja 2,64 m2
salon 52,04 m2
komunikacja 4,30 m2
pokój 9,24 m2
pokój 15,88 m2
pokój 6,99 m2
łazienka 3,71 m2
Powierzchnia użytkowa 99,71 m²
+część gospodarcza 2.64 m²
powierzchnia zabudowy 80.8 m²
powierzchnia netto 120.12 m²
kubatura 401.9m³
kąt nachylenia dachu 42°
wys. kalenicy 7.75 m min.
wymiary działki 20.6x16.25 m
Do budowy wysokiej jakości domu drewnianego stosuje się płazy świerkowe o średnicy 25 - 40 cm, rosnące na obszarach wysokogórskich na wysokości ponad 1000 m npm. Ze względu na surowy klimat wysokogórski drzewa mają gęstsze i wyższej jakości drewno. Wiek wybranych drzew wynosi 70 - 90 lat, średnica ponad 30 cm.

Dom według projektu firmy Dom-projekt.pl
"
rytowo 3 dwk
". Cena obejmująca wykonanie:
-belka ścienna strugana (ręcznie)
-belki stropowe
-deskowanie dachu nakrokwiowo
-impregnacja wstępna
-montaż
-szlifowanie drewnianych elementów ścian
-dachówka gontopodobna ceramiczno-metalową z posypką - GERARD CORONA
-drzwi balkonowe i zewnętrzne
-okna drewniane
Cena nie obejmuje wykonania fundamentów, ewentualnego podpiwniczenia oraz kosztów wykończenia i rozprowadzenia instalacji.

Czas budowy - 3 miesiące

Kontakt: Romuald Niemiec + Zobacz kontakt48 576 853 289
Zobacz kontaktromuald@sadurscy.pl

::DODATKOWE INFORMACJE
Prąd: brak Gaz: brak Woda: brak Ogrzewanie: inne Kanalizacja: brak Okna: drewniane Instalacje: brak Balkon: jest Liczba balkonów: 1 Tarasy: taras Liczba tarasów: 1 Zagosp. działki: niezagospodarowana Ukształtowanie działki: lekko nachylona Rodzaj domu: wolnostojący Stan wybudowania: Stan surowy zamknięty Podst. materiał budowlany: bale drewniane Pokrycie dachu: dachówka ceramiczna Powierzchnia użytkowa [m2]: 99,7100 Stan budynku: do wykończenia Podpiwniczenie: nie Garaż: brak Ogrodzenie działki: brak Rok budowy: 2021 Liczba pokoi: 4 Liczba sypialni: 3 Powierzchnia pokoi [m2]: 52,04; 9,24; 15,88; 6,99 Podłogi pokoi: inne Ściany pokoi: inne Typ kuchni: aneks kuchenny - połączony z salonem Rodzaj kuchni: otwarta na salon Podłoga kuchni: inne Typ łazienki: razem z wc Liczba łazienek: 2 Powierzchnia łazienki [m2]: 4,26; 3,71 Glazura łazienki: bez glazury Podłoga łazienki: inne Ściany łazienki: inne Podłoga przedpokoi: inne Ściany przedpokoi: inne
::LINK DO STRONY
https://sadurscy.pl/offer/BS2-DS-284823
::KONTAKT DO AGENTA
Romuald Mieniec + Zobacz kontakt48 576-853-289 Zobacz kontaktromuald@sadurscy.pl
::DANE BIURA
Oddział BS2, Rynek Pierwotny Królewska 67 30-081 Kraków Zobacz kontakt12 630-90-45
--------------------------
::GRATIS | Nasza prowizja zawiera: koszt przedwstępnej notarialnej umowy sprzedaży nieruchomości z rynku wtórnego. ::GWARANCJA | Gwarancja zwrotu zadatku. Więcej informacji na sadurscy.pl/zwrot-zadatku/

Ogrzewanie: INNE
Materiał: BALE DREWNIANE

Kontakt do agenta:
Romuald Mieniec
Zobacz kontaktromuald@sadurscy.pl
+ Zobacz kontakt48 576-853-289

Oceń ofertę


3.4


482 wydruk błąd schowek

Ostatnio przeglądane

 

 

 

pobieranie

Pobierz wzór umowy

Umowa przedwstępna sprzedaży

wybierz plik do pobrania
doc pdf

 

 

Deweloperzy

);