Prosimy, odblokuj wyświetlanie reklam w naszym serwisie, są one związane z rynkiem nieruchomości.
To dzięki nim masz darmowy dostęp do naszych treści.

Z pozdrowieniami zespół KRN.pl :)


telefon

wiadomość

mapa

Dom, Brzozówka, ul. Lipowa

Dom na sprzedaż Brzozówka (woj. Małopolskie), ul. Lipowa

Lokalizacja:

Brzozówka, , ul. Lipowa

Powierzchnia:

120.00 m2

Cena:

727 000 zł

Dane szczegółowe

lokalizacja:
Małopolskie, Brzozówka, ul. Lipowa
typ obiektu:
dom na sprzedaż
cena:
727 000 zł
powierzchnia:
120.00 m2
numer ogłoszenia:
BS2-DS-305972-26
data dodania:
03-04-2026
data modyfikacji:
03-04-2026
jakość wypełnienia oferty:
100%

Szczegóły oferty


Na sprzedaż dom w zabudowie szeregowej w Brzozówce na granicy z Tarnowem.
Prezentujemy nowoczesny dom w standardzie deweloperskim, który łączy funkcjonalność z wysoką jakością wykończenia. Nieruchomość znajduje się na działce o powierzchni od 1,7 do 3 arów, co daje wystarczająco dużo przestrzeni na wygodny ogród oraz przestronny taras. Dom o powierzchni użytkowej z dodatkowym poddaszem, zapewnia komfortowe warunki do życia dla całej rodziny.
Dom w standardzie deweloperskim, gotowy do wprowadzenia, z możliwością wykończenia wnętrz według indywidualnych preferencji. Dzięki nowoczesnym rozwiązaniom technologicznym, takim jak pompa ciepła, rekuperacja, czy wysokiej jakości materiały budowlane, dom oferuje komfort, bezpieczeństwo oraz energooszczędność. To idealna propozycja dla osób poszukujących nowoczesnej nieruchomości, łączącej estetykę, funkcjonalność i oszczędność.
Domy w segmencie oferują ogród o powierzchni około 64 m² (8,5 m x 7,5 m), a na szczytach szeregów dodatkową przestrzeń ogrodową z boku.
Nieruchomości zbudowane są na monolitycznej, ciepłej płycie fundamentowej z nowoczesnym kompozytem, bardziej trwałym niż stal. Płyta jest izolowana i ocieplona do głębokości 125 cm. Mury o grubości 25 cm z bloczków betonu komórkowego TERMOBET, ocieplone 15 cm warstwą styropianu. Stropy prefabrykowane, betonowe, z płytami ażurowymi 24 cm i filigran 3 cm, zalane żelbetonem i wykończone gładką wylewką.
Balkony z płyty filigran 20 cm z mostkami termicznymi 10 cm, wykończone płytkami gresowymi. Balustrady ze szkła hartowanego.
Dach wykonany z drewna skandynawskiego C24, izolowany membraną i pokryty blachą dachową o grubości 0,52 mm (25-letnia gwarancja). Rynny stalowe, poziome i pionowe.
Każdy dom wyposażony w pompę ciepła z funkcją chłodzenia, podłączoną do instalacji wodnej i ogrzewania podłogowego na parterze i piętrze. Instalacja przystosowana do fotowoltaiki. Zainstalowana wentylacja mechaniczna z centralą rekuperacyjną i funkcją filtracji powietrza.
Cały szereg przyłączony do gminnej sieci wodociągowej i kanalizacyjnej.

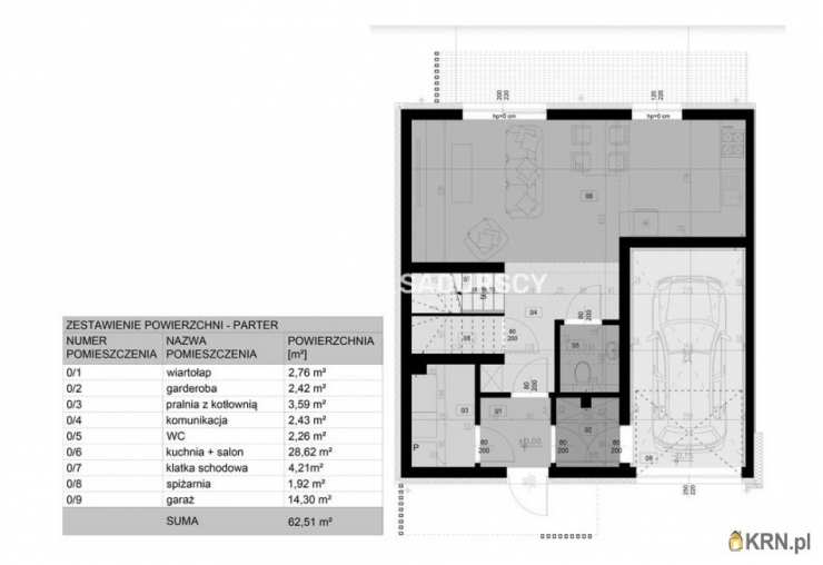
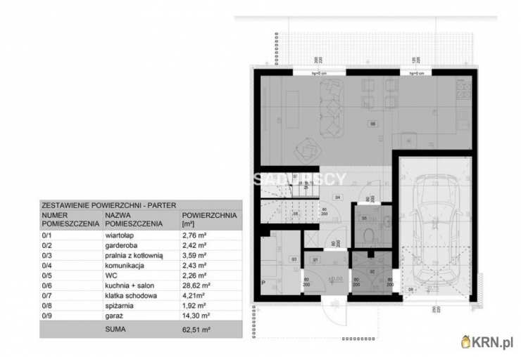
Na powierzchnię domu składa się :

Parter o pow. 62,51 m2:

- wiatrołap
- komunikacja
- salon z kuchnią
- garaż i kotłownia
- WC
- klatka schodowa
Piętro o pow. 57,64 m2:
- 3 x sypialnia
- garderoba
- łazienka
- korytarz
Szczegóły techniczne domów na osiedlu:

Działka : od 1,7 do 3 ar
Powierzchnia użytkowa
segmentów : 103 m2 bądz 120m2 + poddasze
Fundament : płyta fundamentowa o grubości 25 cm, wylewka, izolacja i ocieplenie do głębokości 125 cm, co zapewnia stabilność oraz odporność na zmienne warunki atmosferyczne.
Mury : 25 cm beton komórkowy, ocieplony styropianem o grubości 15 cm, a na zewnątrz elegancka elewacja.
Strop : 24 cm płyta betonowa ażurowa, dodatkowo wzmocniona płytą filigran o grubości 3 cm, zalana żelbetonem i pokryta gładką wylewką betonową.
Balkon : płyta betonowa o grubości 20 cm z mostkami termicznymi (10 cm), wykończona płytkami gresowymi.
Balustrada : nowoczesne szkło hartowane i zespolone, zapewniające bezpieczeństwo i estetyczny wygląd.
Schody : betonowe, skrętne, jednobiegowe, zapewniające wygodne połączenie między kondygnacjami.
Dach : konstrukcja z drewna skandynawskiego C24, izolacja membraną oraz pokrycie blachą dachową o grubości 0,52 mm z gwarancją 25 lat.
Rynny : stalowe, lakierowane, odporne na zmienne warunki atmosferyczne.
Drzwi wejściowe : antywłamaniowe, renomowanej marki Wiśniowski, zapewniające bezpieczeństwo i komfort użytkowania.
Brama garażowa : segmentowa, również marki Wiśniowski, co gwarantuje wysoką jakość i niezawodność.
Okna : grafitowe PCV 3-szybowe, zapewniające doskonałą izolację termiczną i akustyczną.

Instalacje i wykończenie wnętrz:

Ogrzewanie : pompa ciepła z funkcją chłodzenia, połączona z instalacją ogrzewania podłogowego zarówno na parterze, jak i piętrze. Takie rozwiązanie zapewnia komfort cieplny przez cały rok.
Wentylacja : mechaniczna rekuperacja i filtracja powietrza z centralą sterującą, co zapewnia optymalną jakość powietrza w domu oraz oszczędność energii.
Instalacja elektryczna i RTV : przygotowana do montażu nowoczesnych urządzeń i systemów multimedialnych.
Ściany działowe : płyty G-K na konstrukcji stalowej, ocieplone wełną mineralną, co zapewnia dodatkową izolację akustyczną i termiczną.
Sufity : płyty G-K na konstrukcji stalowej z 20 cm wełny mineralnej pomiędzy piętrem a poddaszem, co poprawia izolację termiczną i akustyczną.
Ogrodzenie : stalowe panele lakierowane na kolor grafitowy, zapewniające estetyczne i trwałe ogrodzenie wokół nieruchomości.

Osiedle w Brzozówce
to wyjątkowa lokalizacja, położona zaledwie 1 km od północnej granicy Tarnowa, w malowniczej okolicy. Dojazd do osiedla prowadzi ulicę łączącą się bezpośrednio z ul. Warszawską, czyli drogą krajową nr 73. Z zachodniej strony osiedle graniczy z rozległym lasem o powierzchni ponad 30 hektarów, który łączy się z Rezerwatem Przyrody Debrza przy ul. Wiśniowej, rozszerzając obszar leśny o kolejne 10 ha. Gruntowa droga przez las prowadzi do miejscowości Pawęzów i ul. Krzyskiej. Osiedle oddalone jest o 8 km od Tarnowskiego Rynku.
Osiedle w Brzozówce jest doskonale skomunikowane z Tarnowem i okolicznymi miastami. Zaledwie 5 minut samochodem dzieli je od wjazdu na autostradę A4, a mimo tak bliskiej lokalizacji, hałas z autostrady nie dociera do osiedla. Mieszkańcy mają łatwy dostęp do Tarnowa, a także szybki dojazd do Krakowa i Rzeszowa. Sprawy urzędowe mogą załatwiać szybko w pobliskiej gminie Lisia Góra, co zapewnia wygodę i oszczędność czasu.
Osiedle w Brzozówce to idealne miejsce dla osób szukających spokoju i wygody, z jednoczesnym dostępem do licznych udogodnień i atrakcji w pobliżu. W okolicy znajdują się liczne punkty usługowe, instytucje i miejsca rekreacyjne, które zapewniają komfort codziennego życia.

Las
- 30 sekund pieszo. Tuż obok osiedla rozciąga się rozległy las, który stanowi doskonałe miejsce na spacery i relaks w otoczeniu natury.
Przystanek autobusowy
- 8 minut pieszo, zapewniający łatwy dostęp do komunikacji publicznej.
Sklep spożywczy
- 8 minut pieszo, idealny na szybkie zakupy codziennych artykułów.
Paczkomat inPost
- 8 minut pieszo, wygodne miejsce do odbioru i nadawania paczek.
Publiczna szkoła podstawowa i przedszkole
- 20 minut pieszo lub 3 minuty samochodem, zapewniające edukację dla dzieci w najbliższej okolicy.
Przedszkole niepubliczne z oddziałem integracyjnym Małe Kroczki
- 6 minut samochodem, placówka oferująca opiekę i edukację dzieciom z niepełnosprawnościami.
Stacja paliw
- 3 minuty samochodem, zapewniająca wygodny dostęp do paliwa.
Kościół
- 21 minut pieszo lub 3 minuty samochodem, miejsce kultu religijnego.
Biedronka
- 3 minuty samochodem, sieć sklepów spożywczych oferująca szeroki wybór produktów.
Żabka
- 6 minut samochodem, popularny sklep spożywczy na szybkie zakupy.
Apteka
- 4 minuty samochodem, zapewniająca dostęp do leków i produktów zdrowotnych.
Centrum handlowe MPARK
(Auchan, Action, Decathlon, Euro RTV AGD, EXTREME Fitness, park trampolin FlyPark) - 7 minut samochodem, kompleks oferujący zakupy, rozrywkę i fitness.
Lidl i Leroy Merlin
- 7 minut samochodem, popularne sklepy spożywcze i budowlane.
Galeria handlowa GEMINI PARK
- 9 minut samochodem, miejsce na zakupy, restauracje i rozrywkę.
Wjazd na autostradę A4
- 5 minut samochodem, zapewniający szybki dostęp do dalszych podróży.
Rynek w Tarnowie
- 15 minut samochodem, centrum miasta z licznymi sklepami, restauracjami i atrakcjami turystycznymi.
Kraków, centrum
- 50 minut samochodem, umożliwiający łatwy dostęp do stolicy Małopolski.
Rzeszów, centrum
- 50 minut samochodem, szybki dojazd do stolicy Podkarpacia.
Urząd gminy Lisia Góra
- 6 minut samochodem, miejsce, w którym załatwisz sprawy urzędowe.
Poczta
- 6 minut samochodem, miejsce do wysyłania i odbierania przesyłek.
Basen / pływalnia
- 13 minut samochodem, idealne miejsce na aktywność fizyczną i relaks.
Centrum sportów rakietowych Spokojna
- 9 minut samochodem, miejsce dla miłośników sportów rakietowych.
Stadnina koni
- 11 minut samochodem, doskonałe miejsce dla osób interesujących się jeździectwem.

Z tak bliskim dostępem do niezbędnych punktów usługowych oraz miejsc rekreacyjnych, osiedle w Brzozówce zapewnia komfortowe i wygodne życie w bliskiej odległości od natury, a jednocześnie w pobliżu miast takich jak Tarnów, Kraków czy Rzeszów.

Serdecznie zapraszam do kontaktu
Patrycja Rubinkiewicz

Zobacz kontakt505 236 943

Zobacz kontaktpatrycja@sadurscy.pl
::DODATKOWE INFORMACJE
Kategoria oferty: Mieszkania dla rodzin z dziećmi Prąd: w budynku Gaz: brak Woda: pompa Dojazd: ASFALTOWA Otoczenie: działki zabudowane Ogrzewanie: pompa ciepła Kanalizacja: miejska Linie telefoniczne: TAK Internet: TAK Nadaje się na biuro: TAK Komunikacja publ.: autobus miejski Odległość do komunikacji publicznej [m]: 400 Odl. do sklepu [m]: 400 Odl. do szkoły [m]: 800 Odl. do przedszkola [m]: 80 Teren ogrodzony: TAK Instalacje: nowe Balkon: jest Tarasy: taras duży Liczba tarasów: 1 Powierzchnia ogródka [m2]: 60 Zagosp. działki: częściowo zagospodarowana Ukształtowanie działki: płaska Kształt działki: prostokąt Rodzaj domu: segment Stan wybudowania: Stan deweloperski Typ elewacji: tynk szlachetny Pokrycie dachu: blacha Powierzchnia użytkowa [m2]: 120 Stan budynku: do wykończenia Podpiwniczenie: nie Garaż: w bryle Ogrodzenie działki: metalowe Grunt utwardzany: TAK Rok budowy: 2024 Liczba pokoi: 5 Wysokość pomieszczeń [m]: 2,6000 Liczba sypialni: 4 Podłogi pokoi: wylewka Ściany pokoi: tynk Typ kuchni: aneks kuchenny - połączony z salonem Rodzaj kuchni: aneks kuchenny połączony z jadalnią i salonem Podłoga kuchni: wylewka Typ łazienki: razem z wc Liczba łazienek: 1 Powierzchnia łazienki [m2]: 5,35 Glazura łazienki: bez glazury Podłoga łazienki: wylewka Ściany łazienki: tynk Liczba WC: 1 Powierzchnia WC: 0,81 Glazura WC: bez glazury Podłoga WC: wylewka Ściany WC: tynk Liczba przedpokoi: 1 Podłoga przedpokoi: wylewka Ściany przedpokoi: tynk
::LINK DO STRONY
https://sadurscy.pl/offer/BS2-DS-305972
::KONTAKT DO AGENTA
Patrycja Rubinkiewicz + Zobacz kontakt48 505-236-943 Zobacz kontaktpatrycja@sadurscy.pl
::DANE BIURA
Oddział BS2, Rynek Pierwotny Przewóz
47 30-081 Kraków Zobacz kontakt12 630-90-45
--------------------------
::GRATIS | Nasza prowizja zawiera: koszt przedwstępnej notarialnej umowy sprzedaży nieruchomości z rynku wtórnego. ::GWARANCJA | Gwarancja zwrotu zadatku. Więcej informacji na sadurscy.pl/zwrot-zadatku/

Ogrzewanie: POMPA CIEPLA

Kontakt do agenta:
Patrycja Rubinkiewicz
Zobacz kontaktpatrycja@sadurscy.pl
+ Zobacz kontakt48 505-236-943

Oceń ofertę


0


15 wydruk błąd schowek

Ostatnio przeglądane

 

 

 

pobieranie

Pobierz wzór umowy

Umowa przedwstępna sprzedaży

wybierz plik do pobrania
doc pdf

 

 

Deweloperzy

);