Prosimy, odblokuj wyświetlanie reklam w naszym serwisie, są one związane z rynkiem nieruchomości.
To dzięki nim masz darmowy dostęp do naszych treści.

Z pozdrowieniami zespół KRN.pl :)


telefon

wiadomość

mapa

Dom, Mikołów, Reta

Dom na sprzedaż Mikołów (woj. Śląskie), Reta

Lokalizacja:

Mikołów, Reta, ul.

Powierzchnia:

118.00 m2

Cena:

695 000 zł

Dane szczegółowe

lokalizacja:
Śląskie, Mikołów, Reta
typ obiektu:
dom na sprzedaż
cena:
695 000 zł
powierzchnia:
118.00 m2
numer ogłoszenia:
DMP-DS-7550
data dodania:
23-09-2023
data modyfikacji:
23-09-2023
jakość wypełnienia oferty:
100%

Szczegóły oferty


Mikołów Reta wolnostojący dom stan deweloperski
Oferujemy Państwu dom w stanie deweloperskim o powierzchni 118m2 położony na działce o powierzchni
276m2. Dom zlokalizowany w Mikołowie w dzielnicy Reta w otoczeniu zabudowy domów jednorodzinnych. Dojazd do posesji ulicą osiedlową o nawierzchni asfaltowej i dalej
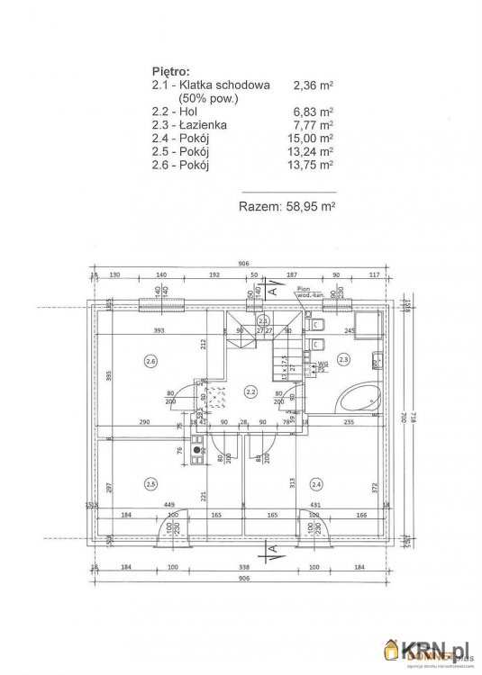
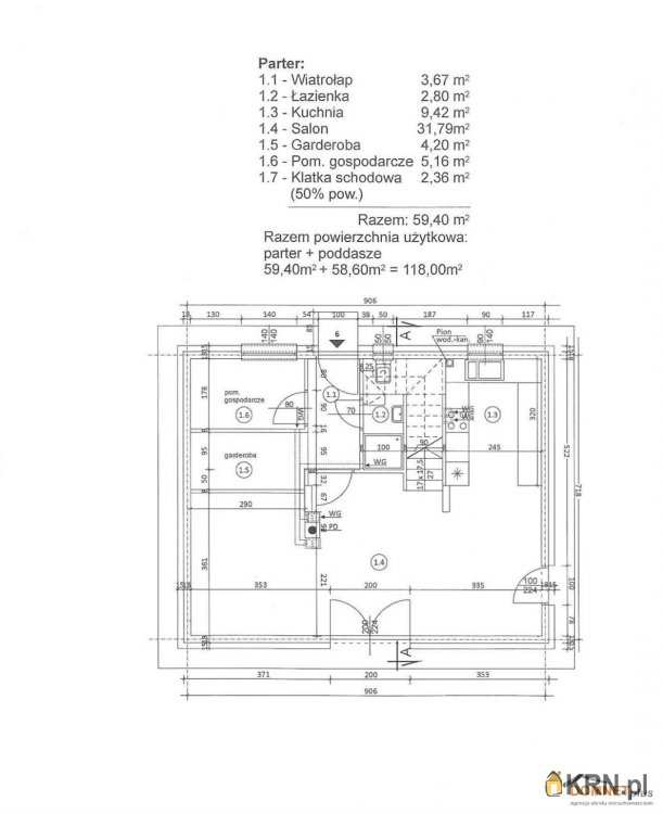
400m droga utwardzona szutrem. Budynek 2 kondygnacyjny; parter 59,40m2 (salon 31,79m2 z wyjściem na taras, kuchnia 9,42m2, wiatrołap 3,57m2, łazienka 2,80m2, garderoba 4,20m2, pom. gospodarcze 5,16m2 , klatka schodowa 2,36m2) + poddasze 58,60m2 (pokój 15m2, pokój 13,24m2, pokój 13,75m2, łazienka 7,77m2, hol 6,83m2, klatka schodowa 2,36m2). Dostępne media: prąd, wodociąg, gaz, kanalizacja miejska.

Standard wykończenia domu




fundament betonowy wraz z izolacją pionową i poziomą,
ściany nośne parteru - cegła silikatowa 18 cm
strop lany, betonowy,
schody betonowe lane, na piętro,
ściany nośne piętra - cegła silikatowa 18 cm,
dach domu, betonowy lany, pokrycie dachu styropianem, oraz papą, wraz z orynnowaniem.
ścianki działowe na parterze i na piętrze Ytong,
stolarka okiennej PVC, trzyszybowa, jednostronny kolor grafit z zewnątrz,
rolety elektryczne w oknach góra i dół,
instalacja pod rolety elektryczne zakończone gniazdami i wyłącznikami elektrycznymi.
drzwi wejściowe w kolorze grafit.
elewacja domu, pokryta styropianem 15 cm,
tynk akrylowy na elewacji - kolor jasno szary,
instalacja elektryczna zakończona gniazdami i wyłącznikami elektrycznymi, światłowód,
tynki wewnętrzne gipsowe, z wyłączeniem łazienek na parterze i piętrze,
gładzie na ścianach i sufitach, dwukrotnie malowane biała farbą,
instalacja wodno-kanalizacyjna, kanalizacja miejska
instalacja CO - ogrzewanie podłogowe parter i piętro,
wylewki betonowe wraz z termoizolacją podłóg,
kocioł kondensacyjny dwubiegowy Junkers,
zwizualizowany projekt wnętrza domu,
kostka betonowa - taras ok 12 m 2

wejście do domu 1-1,5 m 2
Dogodny dojazd do głównych dróg łączących Mikołów z Katowicami i Tychami oraz Gliwicami. Do rynku w Mikołowie ok. 3km.

Agent prowadzący:
Jan Gołąbek
tel. Zobacz kontakt660 403 643
Pośrednik odpowiedzialny zawodowo za wykonanie umowy pośrednictwa: Jacek Adamus (licencja nr: 5815)
--------------------------
Powyższe informacje nie stanowią oferty w rozumieniu przepisów Kodeksu Cywilnego. Pełna oferta: www.domnetplus.pl A.O.N. Domnet Plus Katowice ul. Klimczoka 9. Agent odpowiedzialny zawodowo: Jacek Adamus nr lic.: 5815
SPECJALNA OFERTA KREDYTOWA DLA NASZYCH KLIENTÓW !!!
Oferta wysłana z systemu BCK Galactica
Ogrzewanie: Gazowe

Kontakt do agenta:
Renata Sudoł
Zobacz kontaktbiuro@domnetplus.pl
Zobacz kontakt791 550 352

Oceń ofertę


9.99


1239 wydruk błąd schowek

Ostatnio przeglądane

 

 

 

pobieranie

Pobierz wzór umowy

Umowa przedwstępna sprzedaży

wybierz plik do pobrania
doc pdf

 

 

Deweloperzy

);