Prosimy, odblokuj wyświetlanie reklam w naszym serwisie, są one związane z rynkiem nieruchomości.
To dzięki nim masz darmowy dostęp do naszych treści.

Z pozdrowieniami zespół KRN.pl :)


telefon

wiadomość

mapa

Dom, Chmielowice

Dom na sprzedaż Chmielowice (woj. Opolskie)

Lokalizacja:

Chmielowice, , ul.

Powierzchnia:

117.88 m2

Cena:

749 000 zł

Dane szczegółowe

lokalizacja:
Opolskie, Chmielowice
typ obiektu:
dom na sprzedaż
cena:
749 000 zł
powierzchnia:
117.88 m2
numer ogłoszenia:
MMN-DS-1410
data dodania:
23-08-2024
data modyfikacji:
23-08-2024
jakość wypełnienia oferty:
100%

Szczegóły oferty


Wyłącznie w naszej ofercie, bez prowizji od Kupującego, bez PCC, sprawdzony inwestor, doskonała jakość i wysoki standard!!! PLANOWANE ODDANIE NABYWCOM 3 kwartał 2025 roku!!! Zarezerwuj już teraz, zagwarantuj sobie stałą cenę!!!
Mamy przyjemność zaoferować Państwu do zakupu segment prawy (segment 4) domu w zabudowie bliźniaczej, posadowiony na obszernej działce o powierzchni około 3 arów, zlokalizowany w dzielnicy Chmielowice, przy ul. Promiennej, wśród luźnej zabudowy wolnostojących domów jednorodzinnych. Zdjęcia przedstawiają sprzedane segmenty zrealizowane wg tego samego projektu, w ramach pierwszego etapu inwestycji (segmenty 1 i 2). Aktualnie segment 3 i 4 w trakcie budowy-stan "0".

Inwestycja realizowana jest według indywidualnego projektu opracowanego przez renomowaną pracownię architektoniczną
TECHNO-ARCH z Opola, przez doświadczonego i sprawdzonego inwestora, mającego za sobą ukończone terminowo i z sukcesem inwestycje, mogącego się poszczycić gronem zadowolonych klientów, a także na życzenie Klienta zaprezentować już zrealizowane inwestycje w Opolu.

LOKALIZACJA
Inwestycja ma charakter kameralny, obejmuje dwa domy w zabudowie bliźniaczej (działki od 2 do 4 arów). Realizowana jest na płaskiej działce o powierzchni niespełna 13 arów, zlokalizowanej w cichej części Opola - dzielnicy Chmielowice, przy luźno zabudowanej ulicy Promiennej (dojazd do posesji drogą asfaltową).

ARCHITEKTURA
Indywidualny projekt przewiduje proste bryły budynków, dużą funkcjonalność dzięki klarownemu funkcjonalnemu układowi pomieszczeń, naturalną kolorystykę oraz duże przeszklenia (m.in. okno przesuwne HS z salonu prowadzące na taras i ogród zlokalizowany od południowej strony)
To wszystko razem tworzy wizualnie spójną, efektowną, ponadczasową i elegancką architekturę doskonale komponującą się z otaczającą i zaprojektowaną zielenią oraz istniejącą już zabudową.

NOWOCZESNE OGRZEWANIE I WENTYLACJA
Realizowane budynki zostaną wyposażone w bezobsługowe i niskokosztowe ogrzewanie podłogowe zasilane
pompą ciepła
oraz wentylację mechaniczną z odzyskiem ciepła tzw.
rekuperację . Pompa ciepła to rozwiązanie efektywnie wykorzystujące energię, którego eksploatacja jest tańsza i bardziej przyjazna dla środowiska naturalnego.
Dzięki zastosowaniu rekuperacji domy będą energooszczędne i
ubytek ciepła z budynków zostanie zredukowany do minimum, zaś
powietrze w domu jest oczyszczane z alergenów i kurzu,
Dodatkowo w każdym lokalu istnieje możliwość przygotowana instalacji elektrycznej pod montaż paneli fotowoltaicznych na dachu, co w połączeniu z pompą ciepła i rekuperacją ograniczy rachunki za prąd do absolutnego minimum (dobre ułożenie budynku względem stron świata).

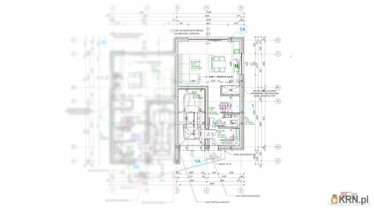
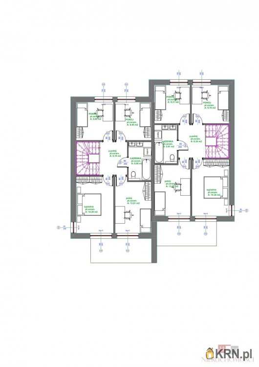
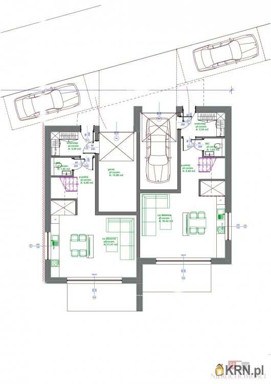
KOMFORTOWY UKŁAD POMIESZCZEŃ
Inwestycja cechuje się ergonomicznym i funkcjonalnym rozkładem pomieszczeń, klarownie podzielonym na dwie funkcjonalne strefy :
-
PARTER-STREFA DZIENNA
:

przestronny i jasny salon z aneksem kuchennym kuchnią i wyjściem na taras
toaleta
przestronny wiatrołap z miejscem na przechowywanie i odzież w wierzchnią
Garaż, który można wykorzystac wg indywidualnych potrzeb Nabywcy na przestrzeń z niezależnym wejściem np na gabinet

-
PIĘTRO-STREFA NOCNA
obejmuje:

obszerną łazienkę połączoną z wc,
4 funkcjonalne sypialnie!

Dzięki monolitycznemu stropowi nad parterem przestrzeń na piętrze można kształtować indywidualnie według własnej koncepcji .

STANDARD:
Ściany: porotherm 25cm docieplone styropianem , każdy z segmentów oddzielony podwójną ścianą (wypełnionymi pomiędzy sobą wełną wygłuszającą), strop-płyta żelbetowa, dach płaski,
W cenie m.in. garażowa brama segmentowa z pełną automatyką , wybrukowany podjazd, okna z pakietem trzyszybowym z zewnętrznymi sterowanymi elektrycznie roletami , ogrzewanie podłogowe w całym budynku, rozbudowana elektryka z białym montażem z możliwością rozbudowy. Szczegółowe informacje w biurze!!!
W sąsiedztwie szkoła podstawowa, plac zabaw, boisko, komunikacja MZK, posesja zamknięta. Działka uzbrojona w prąd, wodę, kanalizację.

Oferta dotyczy segmentu nr 4, posadowionego na działce o powierzchni około 3 ara,
Zapraszamy, zachęcamy do kontaktu w celu szczegółowego przedstawienia oferty!

Polecamy również bezpłatne porównanie ofert kredytowych na sfinansowanie zakupu.
Pośrednik odpowiedzialny zawodowo za wykonanie umowy pośrednictwa: Marcin Mikziński
(licencja nr: 7809)
Oferta wysłana z systemu Galactica Virgo
Ogrzewanie: POMPA CIEPLA

Kontakt do agenta:
Marcin Mikziński
Zobacz kontaktmarcin.mikzinski@mm-nieruchomosci.pl
Zobacz kontakt77 4415933
Zobacz kontakt883944323

Oceń ofertę


9.99


836 wydruk błąd schowek

Ostatnio przeglądane

 

 

 

pobieranie

Pobierz wzór umowy

Umowa przedwstępna sprzedaży

wybierz plik do pobrania
doc pdf

 

 

Deweloperzy

);