Prosimy, odblokuj wyświetlanie reklam w naszym serwisie, są one związane z rynkiem nieruchomości.
To dzięki nim masz darmowy dostęp do naszych treści.

Z pozdrowieniami zespół KRN.pl :)


telefon

wiadomość

mapa

Dom, Tomaszowice, ul. Kolberga

Dom na sprzedaż Tomaszowice (woj. Małopolskie), ul. Kolberga

Lokalizacja:

Tomaszowice, , ul. Kolberga

Powierzchnia:

114.00 m2

Cena:

919 000 zł

Dane szczegółowe

lokalizacja:
Małopolskie, Tomaszowice, ul. Kolberga
typ obiektu:
dom na sprzedaż
cena:
919 000 zł
powierzchnia:
114.00 m2
numer ogłoszenia:
BS2-DS-300427-16
data dodania:
30-11-2024
data modyfikacji:
30-11-2024
jakość wypełnienia oferty:
100%

Szczegóły oferty


Bracia Sadurscy to oficjalny przedstawiciel handlowy dewelopera - kupując z nami nie płacisz prowizji i ukrytych kosztów.

Prezentujemy Państwu inwestycję budynków w zabudowie bliźniaczej w Tomaszowicach (gmina Wielka Wieś). Domy budowane na działkach
3 ar
(ogródek przynależny do lokalu to około
240 m2 ).
Domy oddawane w stanie deweloperskim:
- Ogrzewanie podłogowe na obu kondygnacjach,
- Pompa ciepła,
- Wyprowadzenie instalacji do montażu fotowoltaiki,
- Okna trzyszybowe,
- Izolacja termiczna ścian - styropian 15 cm grafitowy,
- Izolacja termiczna Stropu / dachu - wełna mineralna 25 cm,
- Instalacje wod-kan, prąd, internetowa (światłowód), RTV,
- Wjazd na nieruchomość z drogi gminnej bezpośrednio drogą wewnętrzną,
- Podejście oraz miejsca postojowe (2) wybrukowane
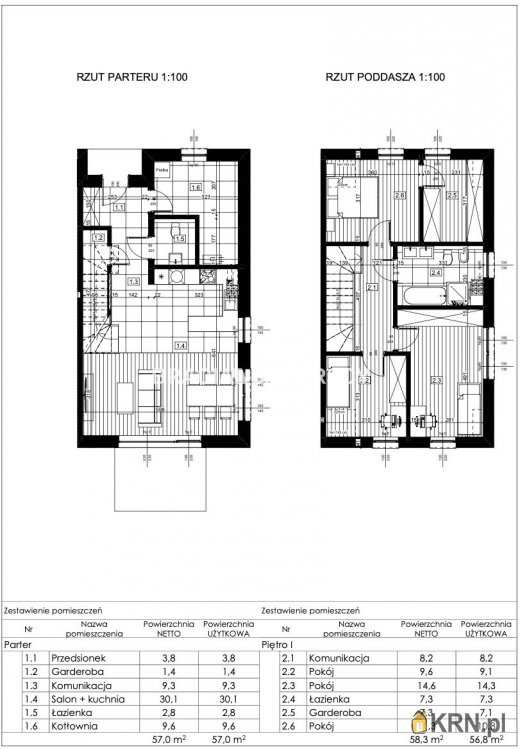
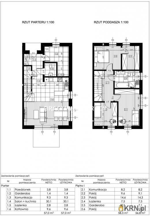
Parter:
1. Wiatrołap -
3.8 m2
2. Garderoba -
1.4 m2
3. Komunikacja -
9.3 m2
4. Salon + kuchnia -
3
0.1 m2
5. Łazienka -
2.8 m2
6. Pomieszczenie gospodarcze -
9.6 m2
Poddasze:
1. Komunikacja -
8.2 m2
2. Pokój -
9.6 m2
3. Pokój -
14.6 m2
4. Łazienka -
7.3 m2
5. Garderoba -
7.3 m2
6. Pokój -
11.3 m2

Termin oddania:
III kwartał 2024 r.
Opiekun Oferty:
Michał Bańdo
Zobacz kontaktmichal2@sadurscy.pl
tel.
Zobacz kontakt518-714-002
::DODATKOWE INFORMACJE
Kategoria oferty: Mieszkania dla rodzin z dziećmi Prąd: jest Gaz: brak Woda: jest Dojazd: UTWARDZONA Ogrzewanie: C.O. GAZOWE Kanalizacja: tak Internet: TAK Komunikacja publ.: MPK Odległość do komunikacji publicznej [m]: 200 Odl. do sklepu [m]: 500 Odl. do szkoły [m]: 1000 Odl. do przedszkola [m]: 1000 Drzwi antywłamaniowe: TAK Opłaty wg liczników: Woda zimna, Woda ciepła, woda, prąd, CO Okna: PCV 3 komorowe Instalacje: nowe Balkon: Barierka Liczba balkonów: 3 Tarasy: taras Liczba tarasów: 1 Powierzchnia ogródka [m2]: 240 Zagosp. działki: częściowo zagospodarowana Ukształtowanie działki: lekko nachylona Kształt działki: prostokąt Rodzaj domu: bliźniak Stan wybudowania: Stan deweloperski Typ elewacji: tynk zwykły Pokrycie dachu: dachówka Powierzchnia użytkowa [m2]: 114 Stan budynku: do wykończenia Podpiwniczenie: nie Garaż: miejsce postojowe Ogrodzenie działki: ogrodzona Rok budowy: 2024 Liczba pokoi: 4 Wysokość pomieszczeń [m]: 2,7000 Liczba sypialni: 3 Powierzchnia pokoi [m2]: 21.1 ; 9.6 ; 14.6 ; 11.3 Podłogi pokoi: wylewka Ściany pokoi: zwykłe Typ kuchni: aneks kuchenny - połączony z salonem Rodzaj kuchni: aneks kuchenny połączony z jadalnią i salonem Powierzchnia kuchni [m2]: 9 Typ łazienki: razem z wc Liczba łazienek: 2 Powierzchnia łazienki [m2]: 2.8 ; 7.3 Glazura łazienki: bez glazury Podłoga łazienki: wylewka Ściany łazienki: zwykłe Liczba przedpokoi: 2 Powierzchnia przedpokoi [m2]: 9.3 ; 8.2 Podłoga przedpokoi: wylewka Ściany przedpokoi: zwykłe
::LINK DO STRONY
https://sadurscy.pl/offer/BS2-DS-300427
::KONTAKT DO AGENTA
Michał Bańdo + Zobacz kontakt48 518-714-002 Zobacz kontaktmichal2@sadurscy.pl
::DANE BIURA
Oddział BS2, Rynek Pierwotny Przewóz
47 30-081 Kraków Zobacz kontakt12 630-90-45
Pośrednik odpowiedzialny zawodowo za wykonanie umowy pośrednictwa: Michał Bańdo (licencja nr: 27635)
--------------------------
::GRATIS | Nasza prowizja zawiera: koszt przedwstępnej notarialnej umowy sprzedaży nieruchomości z rynku wtórnego. ::GWARANCJA | Gwarancja zwrotu zadatku. Więcej informacji na sadurscy.pl/zwrot-zadatku/

Ogrzewanie: Gazowe

Kontakt do agenta:
Michał Bańdo
Zobacz kontaktmichal2@sadurscy.pl
+ Zobacz kontakt48 518-714-002

Oceń ofertę


3


393 wydruk błąd schowek

Ostatnio przeglądane

 

 

 

pobieranie

Pobierz wzór umowy

Umowa przedwstępna sprzedaży

wybierz plik do pobrania
doc pdf

 

 

Deweloperzy

);