Prosimy, odblokuj wyświetlanie reklam w naszym serwisie, są one związane z rynkiem nieruchomości.
To dzięki nim masz darmowy dostęp do naszych treści.

Z pozdrowieniami zespół KRN.pl :)


telefon

wiadomość

mapa

Dom, Jawczyce

Dom na sprzedaż Jawczyce (woj. Małopolskie)

Lokalizacja:

Jawczyce, , ul.

Powierzchnia:

108.71 m2

Cena:

540 000 zł

Dane szczegółowe

lokalizacja:
Małopolskie, Jawczyce
typ obiektu:
dom na sprzedaż
cena:
540 000 zł
powierzchnia:
108.71 m2
numer ogłoszenia:
BS5-DS-311870-11
data dodania:
12-02-2026
data modyfikacji:
12-02-2026
jakość wypełnienia oferty:
100%

Szczegóły oferty

|
DOM 100 M2 JAWCZYCE / POW. WIELICKI / GM. BISKUPICE
/ 4,6 ARA / STAN SUROWY ZAMKNIĘTY / 2025
/ PREMIUM

KTO MOŻE ZAMIESZKAĆ --
Mieszkanie jest idealne dla
pary, rodziny z dziećmi 2+3
JAKIE JEST ROZMIESZCZENIE DOMU --

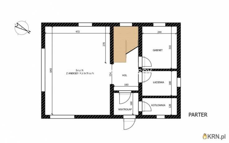
-œ… PARTER
-œ…

-œ… SALON Z ANEKSEM KUCHENNYM [ ok. 29,64 M2 ]
południowy - wschód
- Z tarasem
-œ… WIATROŁAP [ ok. 2,6 M2 ]
północny - wschód

-œ… HOL [ ok. 6,2 M2 ]

-œ… POMIESZCZENIE GOSPODARCZE / KOTŁOWNIA[ ok. 3 M2 ] północny - zachód
-œ… ŁAZIENKA [ ok. 4,2 M2 ]
północny - zachód
-œ… POKÓJ / GABINET [ ok. 7,4 M2 ]

północny - zachód


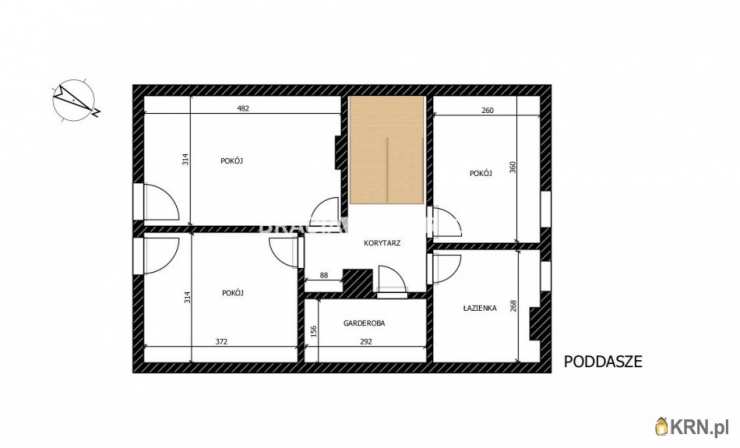
-œ… PIERWSZE PIĘTRO
-œ…

-œ… POKÓJ NR 1 [ ok. 12,6 M2 ]

południowy - wschód
- Z balkonem

-œ… POKÓJ NR 2 [ ok. 9,7 M2 ]

południowy - wschód
- Z balkonem

-œ… POKÓJ NR 3 [ ok. 7,9 M2 ]

północny - zachód
-œ… ŁAZIENKA [ ok. 5,4 M2 ]
północny - zachód
-œ… HOL [ ok. 8,5 M2 ]


-œ… GARDEROBA[ ok. 2,9 M2 ]
północny - wschód

Z CZEGO JEST ZROBIONY DOM--

-œ… Pustak ceramiczny porotherm
-
materiał dobrze izolujący termicznie, energooszczędny, akustyczny, trwały

-œ… Okna 3-szybowe -
energooszczędne, akustyczne, trzymające ciepło
-œ… Dachówka ceramiczna
-
trwała, odporna na warunki atmosferyczne, izolująca termicznie, energooszczędna, ekologiczna, akustyczna
-œ… Drzwi wejściowe antywłamaniowe
JAKIE SĄ ZALETY DOMU
--

-šĄ
energooszczędny
-šĄ z 2025
-šĄ
widokowa
działka (góry)
-šĄ przyjazne sąsiedztwo
-šĄ blisko do
Krakowa
30 min,
Wieliczki
13 min,
Gdowa
11 min samochodem
-šĄogrzewanie planowane na
piec
gazowy
/
ogrzewanie podłogowe

CZY DZIAŁKA JEST UZBROJONA--
-œ” dojazd droga asfaltowa gminna
-œ” podjazd do domu - droga żwirowa
-œ” prąd - doprowadzony do domu, / założona skrzynka
-œ” woda - miejska w drodze
-œ” gaz - w drodze
-œ” kanalizacja - w budowie kanalizacja miejska
GDZIE MOŻNA ZAMIESZKAĆ
--

JAWCZYCE / POW. WIELICKI / GM. BISKUPICE

-œ… Sklep spożywczo-przemysłowy
4 min samochodem
-œ… Biedronka
6 min samochodem
-œ… Szkoła podstawowa
5 min samochodem
-œ… Przedszkole
4 min samochodem
-œ… Przystanek autobusowy
1 min pieszo
-œ… Plac zabaw
1 min pieszo
-œ… Kościół
4 min samochodem

ZAPRASZAM NA PREZENTACJĘ DOMU I !!! OBEJRZENIA VIDEO !!!
Prezentacja bezpłatna
Biuro pobiera jednorazową prowizję w momencie zakupu
Korzystając z usług biura kupujący może liczyć na gwarancję zwrotu zadatku (szczegóły ustalane indywidualnie)
Kontakt do agenta
Marzena Wróbel
537 - 765 - 461 ::DODATKOWE INFORMACJE |
Parking strzeżony (odległość w metrach) [m]: 10 |
Dojazd: droga utwardzona |
Otoczenie: działki zabudowane |
Ogrzewanie: centralne |
Komunikacja publ.: autobus |
Odległość do komunikacji publicznej [m]: 110 |
Odl. do sklepu [m]: 2700 |
Odl. do szkoły [m]: 3500 |
Odl. do przedszkola [m]: 3300 |
Odległość od plaży: 615000 |
Opłaty wg liczników: Woda ciepła, woda, prąd, gaz |
Okna: PCV 3 szyby, ciepły montaż |
Instalacje: brak |
Zagosp. działki: zagospodarowana |
Ukształtowanie działki: płaska |
Kształt działki: prostokąt |
Rodzaj domu: jednorodzinny |
Stan wybudowania: Stan surowy zamknięty |
Typ elewacji: brak |
Pokrycie dachu: dachówka ceramiczna |
Powierzchnia użytkowa [m2]: 100,0900 |
Stan budynku: do wykończenia |
Ogrodzenie działki: brak |
Rok budowy: 2025 |
Liczba pokoi: 5 |
Liczba sypialni: 4 |
Powierzchnia pokoi [m2]: 37,65 |
Wystawa okien - pokoje : Pd-Wsch, Pn-Zach |
Typ kuchni: aneks kuchenny - połączony z salonem |
Rodzaj kuchni: aneks kuchenny połączony z jadalnią i salonem |
Powierzchnia kuchni [m2]: 29,64 |
Wystawa okien - kuchnia: Pd-Wsch |
Liczba łazienek: 2 |
Powierzchnia łazienki [m2]: 9,6 |
Wystawa okien - łazienka : Pn-Zach |
Liczba przedpokoi: 3 |
Powierzchnia przedpokoi [m2]: 17,3 |
Wystawa okien - przedpokój : Pd-Zach |
::LINK DO STRONY |
https://sadurscy.pl/offer/BS5-DS-311870
Zobacz Wirtualny Spacer: https://sb360.online/zj0lgv
::KONTAKT DO AGENTA |
Marzena Wróbel, licencja nr 32161 |
+ Zobacz kontakt48 537-765-461 |
+ Zobacz kontakt48 537-765-461 |
Zobacz kontaktmarzena@sadurscy.pl
::DANE BIURA |
Oddział BS5, Nowa Huta |
Bracia Sadurscy Dariusz Sadurski |
Os. Kazimierzowskie 36 |
31-844 Kraków |
Zobacz kontakt12 265 10 29
|
Oferta wysłana z systemu Galactica Virgo
Ogrzewanie: CENTRALNE

Kontakt do agenta:
Marzena Wróbel, licencja nr 32161
Zobacz kontaktmarzena@sadurscy.pl
+ Zobacz kontakt48 537-765-461
+ Zobacz kontakt48 537-765-461

Oceń ofertę


0


98 wydruk błąd schowek

Ostatnio przeglądane

 

 

 

pobieranie

Pobierz wzór umowy

Umowa przedwstępna sprzedaży

wybierz plik do pobrania
doc pdf

 

 

Deweloperzy

);