Prosimy, odblokuj wyświetlanie reklam w naszym serwisie, są one związane z rynkiem nieruchomości.
To dzięki nim masz darmowy dostęp do naszych treści.

Z pozdrowieniami zespół KRN.pl :)


telefon

wiadomość

mapa

Dom, Rączna

Dom na sprzedaż Rączna (woj. Małopolskie)

Lokalizacja:

Rączna, , ul.

Powierzchnia:

104.24 m2

Cena:

1 040 000 zł

Dane szczegółowe

lokalizacja:
Małopolskie, Rączna
typ obiektu:
dom na sprzedaż
cena:
1 040 000 zł
powierzchnia:
104.24 m2
numer ogłoszenia:
BS2-DS-313338-8
data dodania:
13-03-2026
data modyfikacji:
13-03-2026
jakość wypełnienia oferty:
100%

Szczegóły oferty


Osiedle 7 domów jednorodzinnych w Rącznej (Kaszów) - komfort, spokój i zieleń!

Na sprzedaż oferujemy domy w nowo powstającym
kameralnym osiedlu 7 domów jednorodzinnych
o powierzchni ok.
104 m²
każdy, położonych na działkach o powierzchni
od 3,1 do 5,55 arów .
Każdy budynek to
dom parterowy z użytkowym poddaszem , wykonany w technologii tradycyjnej, z wysokiej jakości materiałów.
Osiedle będzie
całkowicie ogrodzone , z wykonanymi podjazdami i tarasami z kostki brukowej, co zapewni mieszkańcom bezpieczeństwo, prywatność i komfort. Podstawowe informacje o ofercie:
•
Powierzchnia działki:
od 310 m² do 550 m²
•
Cena (brutto):
od 970 000 zł do 1 040 000 zł
•
Stan:
w trakcie realizacji
•
Typ budynku:
wolnostojący
•
Powierzchnia użytkowa:
ok. 104 m²
•
Piętra:
parter + poddasze użytkowe

Rozkład domu:

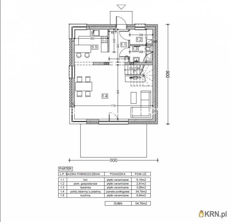
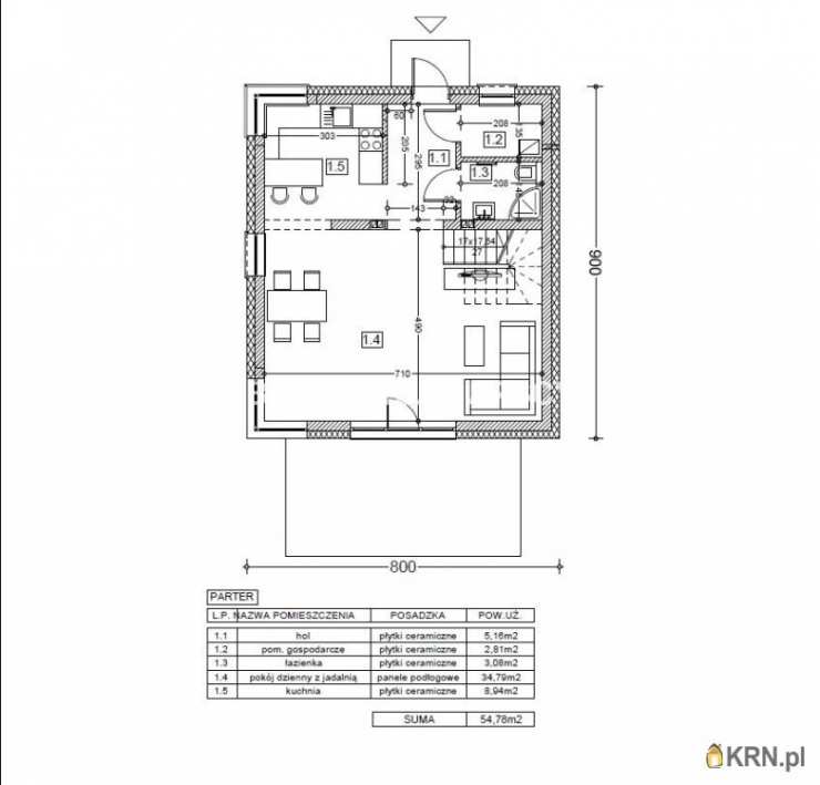
Parter
1. Hol - 5,16 m2
2. Pomieszczenie gospodarcze - 2, 81 m2
3. Łazienka - 3,08 m2
4. Pokój dzienny z jadalnią - 34,79 m2
5. Kuchnia - 8,94
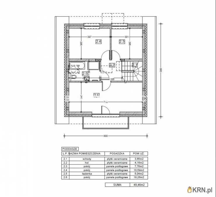
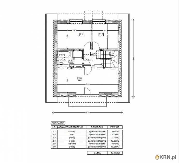
Poddasze
1. Schody - 3,65 m2
2. Hol - 4,16 m2
3. Pokój - 7,76 m2
4. Pokój - 10,59 m2
5. Pokój - 18,26 m2
6. Łazienka - 5,04 m2

Termin zakończenia budowy w stanie deweloperskim marzec 2026r.

Standard deweloperski

Konstrukcja:
• technologia tradycyjna (POROTHERM 25 cm + ocieplenie 20 cm)
• dachówka ceramiczna, okna dachowe FAKRO
• tynki maszynowo-gipsowe, wylewki i izolacje
• ogrzewanie podłogowe w całym domu
• kocioł z zamkniętą komorą spalania i zasobnikiem
• wentylacja mechaniczna (z urządzeniami), instalacja klimatyzacji (bez urządzeń)
• instalacje: prąd, woda, gaz, kanalizacja (szambo), zbiornik na deszczówkę
• alarm z powiadomieniem jednostki interwencyjnej Dodatkowe walory:
• kostka brukowa wokół budynku i na podjeździe
• ogrodzenie działki z bramą i furtką
• taras z widokiem na ogród
• teren wstępnie uporządkowany i zniwelowany Otoczenie i lokalizacja
Inwestycja znajduje się w wyjątkowo spokojnej, zielonej części Rącznej - z dala od miejskiego zgiełku, a jednocześnie z doskonałym dostępem do infrastruktury:
•
szkoła podstawowa i przedszkole
- w pobliżu osiedla
•
las, park, ścieżki spacerowe i rowerowe
- idealne dla miłośników natury
•
sklepy i usługi
w bliskim sąsiedztwie
•
lotnisko Balice
- ok. 10 km
•
Kraków, Salwator
- ok. 16 km
Rączna (gm. Liszki)
To idealne miejsce dla osób, które szukają połączenia spokoju podmiejskiego życia z szybkim dostępem do miasta.

W celu uzyskania bliższych informacji zapraszam do kontaktu:

Zapraszam do kontaktu
Patrycja Rubinkiewicz
Zobacz kontakt505 236 943
Zobacz kontaktpatrycja@sadurscy.pl
::DODATKOWE INFORMACJE
Prąd: jest Gaz: jest Woda: jest Dojazd: ASFALTOWA Otoczenie: zabudowa jednorodzinna Ogrzewanie: podłogowe Alarm: TAK Internet: TAK Komunikacja publ.: autobus podmiejski Odległość do komunikacji publicznej [m]: 900 Odl. do sklepu [m]: 1000 Odl. do szkoły [m]: 400 Odl. do przedszkola [m]: 400 Drzwi antywłamaniowe: TAK Teren ogrodzony: TAK Okna: PCV 3 komorowe Instalacje: ELEKTRYCZNA, GAZOWA Balkon: jest Liczba balkonów: 1 Tarasy: taras Liczba tarasów: 1 Zagosp. działki: częściowo zagospodarowana Ukształtowanie działki: płaska Kształt działki: prostokąt Rodzaj domu: wolnostojący Stan wybudowania: Stan deweloperski Typ elewacji: tynk szlachetny + klinkier Pokrycie dachu: dachówka ceramiczna Powierzchnia użytkowa [m2]: 104,2400 Stan budynku: do wykończenia Podpiwniczenie: nie Garaż: miejsce postojowe Ogrodzenie działki: ogrodzona Rok budowy: 2025 Liczba pokoi: 4 Liczba sypialni: 3 Powierzchnia pokoi [m2]: 18,26; 10,59; 7,76; 34,79 Podłogi pokoi: wylewka Ściany pokoi: tynk gipsowy Wystawa okien - pokoje : Wsch, Zach Typ łazienki: razem z wc Liczba łazienek: 2 Powierzchnia łazienki [m2]: 5,06; 3,08 Podłoga łazienki: wylewka Podłoga WC: wylewka Ściany WC: inne Liczba przedpokoi: 2 Powierzchnia przedpokoi [m2]: 5,16; 4,16 Podłoga przedpokoi: wylewka Ściany przedpokoi: inne
::LINK DO STRONY
https://sadurscy.pl/offer/BS2-DS-313338
::KONTAKT DO AGENTA
Patrycja Rubinkiewicz + Zobacz kontakt48 505-236-943 Zobacz kontaktpatrycja@sadurscy.pl
::DANE BIURA
Oddział BS2, Rynek Pierwotny Przewóz
47 30-081 Kraków Zobacz kontakt12 630-90-45
--------------------------
::GRATIS | Nasza prowizja zawiera: koszt przedwstępnej notarialnej umowy sprzedaży nieruchomości z rynku wtórnego. ::GWARANCJA | Gwarancja zwrotu zadatku. Więcej informacji na sadurscy.pl/zwrot-zadatku/

Ogrzewanie: PODLOGOWE

Kontakt do agenta:
Patrycja Rubinkiewicz
Zobacz kontaktpatrycja@sadurscy.pl
+ Zobacz kontakt48 505-236-943

Oceń ofertę


0


28 wydruk błąd schowek

Ostatnio przeglądane

 

 

 

pobieranie

Pobierz wzór umowy

Umowa przedwstępna sprzedaży

wybierz plik do pobrania
doc pdf

 

 

Deweloperzy

);