Prosimy, odblokuj wyświetlanie reklam w naszym serwisie, są one związane z rynkiem nieruchomości.
To dzięki nim masz darmowy dostęp do naszych treści.

Z pozdrowieniami zespół KRN.pl :)


telefon

wiadomość

mapa

Dom, Przeginia Duchowna

Dom na sprzedaż Przeginia Duchowna (woj. Małopolskie)

Lokalizacja:

Przeginia Duchowna, , ul.

Powierzchnia:

104.24 m2

Cena:

850 000 zł

Dane szczegółowe

lokalizacja:
Małopolskie, Przeginia Duchowna
typ obiektu:
dom na sprzedaż
cena:
850 000 zł
powierzchnia:
104.24 m2
numer ogłoszenia:
BS2-DS-313340-37
data dodania:
23-01-2026
data modyfikacji:
23-01-2026
jakość wypełnienia oferty:
100%

Szczegóły oferty


Domy jednorodzinne pod Krakowem

Prezentuję Państwu ofertę nowoczesnych i funkcjonalnych domów położonych na działkach od 300 m2 do 710 m2. Osiedle składa się z 19 domów wolnostojących
o powierzchni użytkowej 104,24 m2, w miejscowości Przeginia Duchowna.
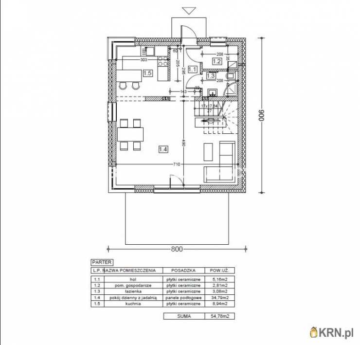
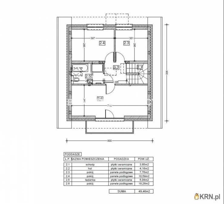
Rozkład domu:

Parter
1. Hol - 5,16 m2
2. Pomieszczenie gospodarcze - 2, 81 m2
3. Łazienka - 3,08 m2
4. Pokój dzienny z jadalnią - 34,79 m2
5. Kuchnia - 8,94
Poddasze
1. Schody - 3,65 m2
2. Hol - 4,16 m2
3. Pokój - 7,76 m2
4. Pokój - 10,59 m2
5. Pokój - 18,26 m2
6. Łazienka - 5,04 m2
Osiedle usytuowane jest w otoczeniu zieleni, lasów, a jednocześnie w miejscu dobrze skomunikowanym z miastem. W pobliżu przystanek autobusowy, tereny rekreacyjne, placówki edukacyjne ( dwie szkoły podstawowe, przedszkola ), stacja benzynowa, sklepy, ośrodek zdrowia.
Termin zakończenia budowy w stanie deweloperskim grudzień 2024r.
Stan deweloperski:
- budynek wykonany technologią tradycyjną: ściany nośne - POROTHERM 25 cm, ścianki działowe - pustak ceramiczny POROTHERM 11,5 cm
- elewacja: ocieplenie - styropian 20 cm + tynk akrylowy
- fundamenty betonowe z hydroizolacją i ociepleniem 15 cm
- pokrycie: dachówka ceramiczna, okna dachowe FAKRO, rynny PCV
- podbitka dachu drewniana
- kominy wykonane systemem
- okna plastik w kolorze
- drzwi wejściowe ocieplane
- podłogi: wylewki i izolacje
- ściany: tynki maszynowo-gipsowe
- poddasze ocieplone: wełna 30 cm, konstrukcja metalowa, płyty gipsowo-kartonowe
- zamontowane schody strychowe
-
barierki metalowe na balkonach
- parapety wewnętrzne: kamień naturalny
- przyłącz prądu, wody, kanalizacji i gazu wraz z wykonanymi instalacjami w budynku
- wentylacja mechaniczna
- wykonana instalacja antenowa
- kocioł z zamkniętą komorą spalania
- ogrzewanie podłogowe
- zamontowany zestaw podtynkowy GEBERIT
- alarm z powiadomieniem jednostki interwencyjnej
- budynek oddany do użytkowania - ODBIÓR TECHNICZNY
- bez drzwi wewnętrznych, podłóg, szpachlowania, malowania, białego montażu
- podjazd oraz opaski wokół budynku wyłożone kostką brukową
- działka ogrodzona powlekaną siatką
- brama wjazdowa i furtka
- taras z widokiem na ogród wyłożony kostką brukową
- teren wokół budynku wstępnie uporządkowany i zniwelowany
- okolica spokojna, przewaga terenów zielonych
Zdjęcia poglądowe z innej lokalizacji.

W celu uzyskania bliższych informacji zapraszam do kontaktu:
Zapraszam do kontaktu
Patrycja Rubinkiewicz
Zobacz kontakt505 236 943
Zobacz kontaktpatrycja@sadurscy.pl
::DODATKOWE INFORMACJE
Kategoria oferty: Pewny Partner, Mieszkania dla rodzin z dziećmi Prąd: jest Gaz: jest Woda: jest Dojazd: kostka brukowa Otoczenie: panorama Ogrzewanie: podłogowe Kanalizacja: tak Komunikacja publ.: bus, autobus podmiejski Okna: PCV Instalacje: ELEKTRYCZNA, WODNA, GAZOWA Balkon: jest Liczba balkonów: 1 Tarasy: taras duży Liczba tarasów: 1 Zagosp. działki: częściowo zagospodarowana Ukształtowanie działki: płaska Kształt działki: prostokąt Rodzaj domu: jednorodzinny Stan wybudowania: Stan deweloperski Typ elewacji: styropian + klej Pokrycie dachu: dachówka cementowa Powierzchnia użytkowa [m2]: 104,2400 Stan budynku: do wykończenia Ogrodzenie działki: siatka w ramach Rok budowy: 2024 Liczba pokoi: 4 Liczba sypialni: 3 Powierzchnia pokoi [m2]: 34,79 ; 18,26 ; 10,59 ; 7,76 ;
Podłogi pokoi: wylewka betonowa Ściany pokoi: tynk gipsowy Wystawa okien - pokoje : Pd, Pn, Zach, Wsch Typ kuchni: jasna z oknem Rodzaj kuchni: kuchnia jasna, osobno Powierzchnia kuchni [m2]: 8,94 Podłoga kuchni: wylewka betonowa Wystawa okien - kuchnia: Pd, Pn, Zach, Wsch Liczba łazienek: 2 Powierzchnia łazienki [m2]: 5,04 ;3,08 Podłoga łazienki: wylewka Ściany łazienki: tynk gipsowy Liczba przedpokoi: 2 Powierzchnia przedpokoi [m2]: 5,16 ; 4,16 Podłoga przedpokoi: wylewka betonowa Ściany przedpokoi: tynk gipsowy
::LINK DO STRONY
https://sadurscy.pl/offer/BS2-DS-313340
::KONTAKT DO AGENTA
Patrycja Rubinkiewicz + Zobacz kontakt48 505-236-943 Zobacz kontaktpatrycja@sadurscy.pl
::DANE BIURA
Oddział BS2, Rynek Pierwotny Przewóz
47 30-081 Kraków Zobacz kontakt12 630-90-45
--------------------------
::GRATIS | Nasza prowizja zawiera: koszt przedwstępnej notarialnej umowy sprzedaży nieruchomości z rynku wtórnego. ::GWARANCJA | Gwarancja zwrotu zadatku. Więcej informacji na sadurscy.pl/zwrot-zadatku/

Ogrzewanie: PODLOGOWE

Kontakt do agenta:
Patrycja Rubinkiewicz
Zobacz kontaktpatrycja@sadurscy.pl
+ Zobacz kontakt48 505-236-943

Oceń ofertę


0


27 wydruk błąd schowek

Ostatnio przeglądane

 

 

 

pobieranie

Pobierz wzór umowy

Umowa przedwstępna sprzedaży

wybierz plik do pobrania
doc pdf

 

 

Deweloperzy

);