Prosimy, odblokuj wyświetlanie reklam w naszym serwisie, są one związane z rynkiem nieruchomości.
To dzięki nim masz darmowy dostęp do naszych treści.

Z pozdrowieniami zespół KRN.pl :)


telefon

wiadomość

mapa

Dom, Kraków, Swoszowice

Dom na sprzedaż Kraków (woj. Małopolskie), Swoszowice

Lokalizacja:

Kraków, Swoszowice, ul.

Powierzchnia:

100.13 m2

Cena:

1 020 000 zł

Dane szczegółowe

lokalizacja:
Małopolskie, Kraków, Swoszowice
typ obiektu:
dom na sprzedaż
cena:
1 020 000 zł
pokoi:
4
ilość pięter w budynku:
2
powierzchnia:
100.13 m2
media:
prąd, woda
numer ogłoszenia:
5636/6342/ODS
data dodania:
10-02-2025
data modyfikacji:
26-04-2025
jakość wypełnienia oferty:
100%

Szczegóły oferty

Emmerson prezentuje:

Nową inwestycję deweloperską na południu Krakowa - domy w zabudowie bliźniaczej, o nowoczesnej architekturze, w pełni energooszczędne.

Inwestycja zlokalizowana jest w zielonej części Podgórza. Stanowi cztery kompleksy domów w zabudowie bliźniaczej. Nowoczesna architektura, wysoka jakość użytych materiałów oraz ich energooszczędność to propozycja, która zachęca do zakupu domu.

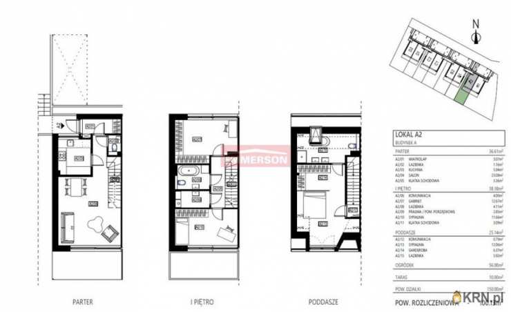
Nieruchomość składa się:
Parter:
- wiatrołap.
- łazienka
- kuchnia
- salon
- klatka schodowa

Piętro:
-komunikacja
-sypialnia/gabinet
- łazienka
-pralnia/pom. porządkowe
- sypialnia
-klatka schodowa

Poddasze:
- komunikacja
-sypialnia z garderobą
- łazienka

Energooszczędne rozwiązania:
- pompa cieplna
-wentylacja mechaniczna z rekuperacją
-ogrzewanie podłogowe w całym domu
- ściany z pustaka ceramicznego - Porotherm

dodatkowa instalacja: alarmowa, klimatyzacja, monitoring.

Wyjście na taras wraz z ogródkiem - ekspozycja południowa. W cenie domu dwa miejsca postojowe zewnętrzne.

Inwestycja jest realizowana w ramach rynku pierwotnego.
Klient nie płaci 2% PCC oraz prowizji dla Biura Nieruchomości.


Zapraszam na prezentację.

Opiekun oferty: Beata Borkowska-Migdał

Powyższa oferta ma charakter informacyjny i nie stanowi oferty handlowej w rozumieniu art. 66 par. 1 Kodeksu Cywilnego oraz innych właściwych przepisów prawnych



Oferta wysłana z programu dla biur nieruchomości ASARI CRM (asaricrm.com)



Kontakt:
Numer telefonu: Zobacz kontakt516000908
Adres email: Zobacz kontaktbeata.borkowska@emmerson.pl
Numer licencji pośrednika: 14790

Oceń ofertę


3


416 wydruk błąd schowek

Ostatnio przeglądane

 

 

 

pobieranie

Pobierz wzór umowy

Umowa przedwstępna sprzedaży

wybierz plik do pobrania
doc pdf

 

 

Deweloperzy

);