Prosimy, odblokuj wyświetlanie reklam w naszym serwisie, są one związane z rynkiem nieruchomości.
To dzięki nim masz darmowy dostęp do naszych treści.

Z pozdrowieniami zespół KRN.pl :)


telefon

wiadomość

mapa

Dom, Janowiec Wielkopolski

Dom na sprzedaż Janowiec Wielkopolski (woj. Kujawsko-Pomorskie)

Lokalizacja:

Janowiec Wielkopolski, , ul.

Powierzchnia:

100.00 m2

Cena:

430 000 zł

Dane szczegółowe

lokalizacja:
Kujawsko-Pomorskie, Janowiec Wielkopolski
typ obiektu:
dom na sprzedaż
cena:
430 000 zł
pokoi:
3
ilość pięter w budynku:
1
powierzchnia:
100.00 m2
numer ogłoszenia:
433863
data dodania:
09-01-2026
data modyfikacji:
09-01-2026
jakość wypełnienia oferty:
100%

Szczegóły oferty

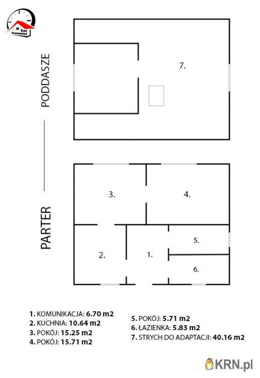
Na sprzedaż zabudowana działka siedliskowa o powierzchni 3 997 m2, położona w gminie Janowiec Wielkopolski, w powiecie żnińskim. Nieruchomość zlokalizowana jest w miesjcowości Gącz w spokojnej i malowniczej okolicy, z dala od zwartej zabudowy.Działka jest zabudowana domem jednorodzinnym o powierzchni całkowitej 100 mÂ2 na, którą składają się trzy pokoje, kuchnia, korytarz, łazienka oraz poddasze do adaptacji. Budynek jest częściowo podpiwniczony, ocieplony, z dachem pokrytym dachówką betonową, plastikowymi oknami oraz drzwiami antywłamaniowymi, wyposażony w centralne ogrzewanie grzejniki płytowe, nowy piec na ekogroszek, nowy wkład kominowy oraz nowy bojler. Działka jest częściowo ogrodzona. Na jej terenie znajdują się dodatkowe dwa budynki gospodarcze do rozbiórki lub adaptowacji według własnych potrzeb.Najważniejsze cechy oferty:* dom 100m2, ocieplony, do zamieszkania, z poddaszem do adaptacji,* spokojna, urokliwa okolica z dala od miejskiego zgiełku, bez sąsiadów,* duża działka 3 997 m2 z potencjałem, do własnej aranżacji,* ogrzewanie - 5 letni piec, woda miejska, nowy bojler.* zlokalizaowana:- 2 km od Jeziora Łopienno, lasu, Szkoły Podstawowej,Dino,- 7 km - od Janowca Wlkp.- 12 km - od Rogowa, Kłecka.Jest to oferta dla ludzi szukajacych ciszy, spokoju oraz dużej przestrzeni życiowej z dala od sąsiadów i zgiełku miasta.Zapraszam do kontaktu, odpowiem na wszystkie pytania.tel: Zobacz kontakt5124624777Przed prezentacją nieruchomości wymagane jest uzyskanie w Naszym biurze statusu klienta poszukującego co odbywa się poprzez podpisanie niezobowiązującej do niczego (w przypadku nie podejmowania decyzji o zakupie czy najmie tej nieruchomości) karty klienta lub umowy pośrednictwa na nabycie nieruchomości.Razem z właścicielami zwracamy się z prośbą o uszanowanie prywatności i nie przybywanie na miejsce bez zapowiedzi i opiekuna z biura nieruchomości, nie chodzenie po domach, szukanie, czy nietaktowne wypytanie sąsiadów gdzie jest dokładnie ta nieruchomość na sprzedaż, tylko umawianie się z upoważnionym biurem nieruchomości.Kontaktując się poza informacjami związanymi z nieruchomością koniecznie zapytaj o współpracę z biurem nieruchomości, co w ramach współpracy zapewniamy, o umowę pośrednictwa i kwestie związane z prowizją (m.in. kto płaci ? Sprzedający, Kupujący czy obydwie ze stron po części).

Oceń ofertę


9.99


452 wydruk błąd schowek

Ostatnio przeglądane

 

 

 

pobieranie

Pobierz wzór umowy

Umowa przedwstępna sprzedaży

wybierz plik do pobrania
doc pdf

 

 

Deweloperzy

);