Prosimy, odblokuj wyświetlanie reklam w naszym serwisie, są one związane z rynkiem nieruchomości.
To dzięki nim masz darmowy dostęp do naszych treści.

Z pozdrowieniami zespół KRN.pl :)


telefon

wiadomość

mapa

Mieszkanie, Wrocław, Krzyki

Mieszkanie na sprzedaż Wrocław (woj. Dolnośląskie), Krzyki

Lokalizacja:

Wrocław, Krzyki, ul.

Powierzchnia:

82.50 m2

Cena:

889 030 zł

Dane szczegółowe

lokalizacja:
Dolnośląskie, Wrocław, Krzyki
typ obiektu:
mieszkanie na sprzedaż
cena:
889 030 zł
pokoi:
4
piętro:
parter
ilość pięter w budynku:
1
powierzchnia:
82.50 m2
powierzchnia dodatkowa:
balkon, taras, piwnica
numer ogłoszenia:
2148
data dodania:
25-02-2026
data modyfikacji:
25-02-2026
jakość wypełnienia oferty:
76%

Szczegóły oferty


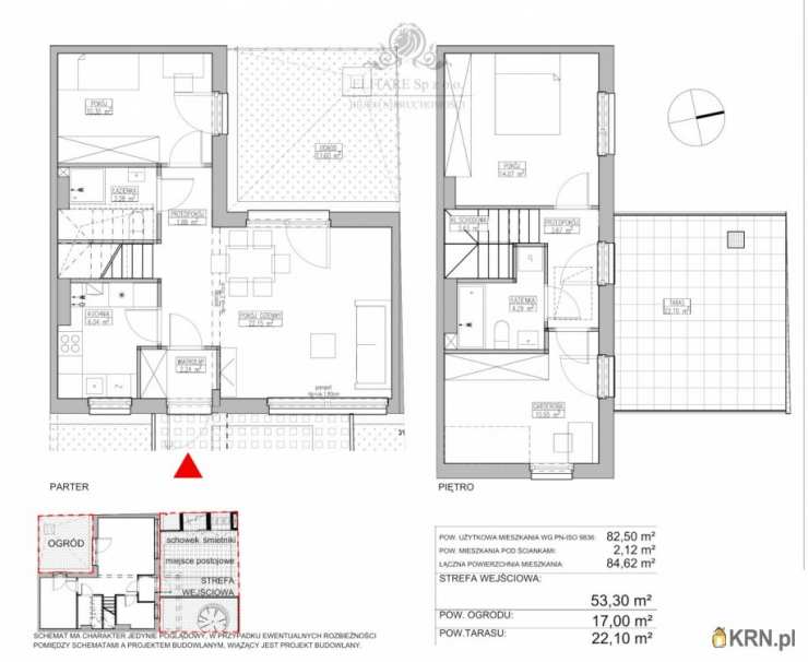
Mieszkanie atrialne, dwukondygnacyjne o powierzchni łącznej 82,50m2 + ogród 17,00m2 +taras 22,10m2 + strefa wejściowa o pow. 53,30m2 z miejscem postojowym i schowkiem. Ciekawie zaprojektowana przestrzeń mieszkalna dla tych z Państwa, którzy myślą o mieszkaniu w klimacie domu – kameralne sąsiedztwo, dwupoziomowe rozwiązania z podziałem na strefę dzienną i nocną, własny ogród i taras, miejsce postojowe i komórka. Idealne kompaktowa propozycja i wszystkie te składowe w jednej prezentowanej cenie ofertowej.

Mieszkanie zaprojektowany jest w wygodny, ergonomiczny sposób i posiada:

STREFĘ DZIENNĄ na parterze - układ otwartego salonu z jadalnią o powierzchni 22,15m2 z salonu wyjście na wewnętrzny ogród o pow. 17,00m2, mamy też oddzielną kuchnie o pow. 6,04m2 i osobną sypialnie/gabinet o pow. 10,30m2, na tym poziomie znajduje się też pierwsza łazienka z miejscem na prysznic, toaletę i umywalkę o pow. 3,28m2 i nieduży wiatrołap z miejscem na szafę w zabudowie, a schodami żelbetowymi z korytarza wchodzimy na drugą kondygnacje.

STREFA NOCNA na piętrze to 2 oddzielne pokoje o pow. 14,07m2 i 10,95m2, z korytarza oraz mniejszego pokoju wyjście na taras o pow.22,10m2, na tym poziomie mamy też drugą łazienkę z miejscem na wannę, toaletę, umywalkę i pralkę o pow.4,29m2.

W każdym z pokoi mamy klimatyzacje!

STANDARD WYKOŃCZENIA z głównych atutów podwyższonego standardu deweloperskiego pokreślić warto:

- w standardzie, rozwiązanie Smart House by Keemple - inteligentny system, który zwiększa poczucie bezpieczeństwa i pozwala na znaczące obniżenie kosztów eksploatacji.

- zamontowana instalacja klimatyzacji typu Multisplit z jednostką zewnętrzną na dachu budynku i jednostkami wewnętrznymi w wybranych pomieszczeniach,

- przygotowana instalacja do montażu elektrycznej maty grzewczej w łazience. Mata przekazywana przy odbiorze do indywidualnego montażu podczas wykańczania mieszkania,

-instalacja światłowodową doprowadzoną wprost do każdego lokalu, zapewniającą najszybszy możliwy dostęp do Internetu

-wysokiej jakości antywłamaniowe drzwi wejściowe, które nie tylko ładnie wyglądają i zabezpieczają przed włamaniem, ale też posiadają podwyższoną izolację akustyczną

- pomieszczenia mają wysokości 2,8 m co daje odczucie większej przestrzeni oraz zapewnia lepszą cyrkulację powietrza,

-zewnętrzne rolety przeciwsłoneczne w oknach na obydwóch poziomach

-ogródek wyposażony w punkt poboru wody ułatwiający podlewanie

- i wiele innych zalet…

Mieszkanie atrialne z własnym ogrodem, tarasem, miejscem postojowym, schowkiem na np. rower z nowoczesnym rozwiązaniami sięgającym w przyszłość realizowane w ramach osiedla z niską zabudową tuż obok otwartego terenu, który obecnie jest zieloną otwartą przestrzenią, a w przyszłość będąc tak zwanym zielnym „Klinem Wojszyckim” stanie się zieloną strefą relaksu i wypoczynku dla mieszkańców Jagodna i Wojszyc. Jednocześnie Jagodno to bardzo dynamicznie rozwijająca się dzielnica, gdzie w tym roku powstał szybki buspas z pętlą na ulicy Kajdasza, z licznymi sklepami, usługami od ulicy Buforowej. Pełna infrastruktura społeczna.

Inwestycja GOTOWA – mieszkania oddane do użytkowania. Zakup od dewelopera z rynku pierwotnego bez PCC i bez prowizji od strony Kupującej.

Zapraszam na prezentacje na inwestycji

Ania Cieślak - Doradca klienta

tel. Zobacz kontakt535 422 198

Zobacz kontaktanna.cieslak@eliatre.pl

Nr oferty 19/2026

Zamieszczone na naszych stronach informacje nie stanowią oferty w rozumieniu Kodeksu Cywilnego oraz nie stanowią oferty handlowej w myśl Art.66 par. 1 Kodeksu cywilnego.

OFERTA CENOWA AKTUALNA NA DZIEŃ 24.02.2026 I OBOWIĄZUJE DO DNIA 24.02.2026

Oceń ofertę


0


50 wydruk błąd schowek

Ostatnio przeglądane

 

 

 

pobieranie

Pobierz wzór umowy

Umowa przedwstępna sprzedaży

wybierz plik do pobrania
doc pdf

 

 

Deweloperzy

);