Prosimy, odblokuj wyświetlanie reklam w naszym serwisie, są one związane z rynkiem nieruchomości.
To dzięki nim masz darmowy dostęp do naszych treści.

Z pozdrowieniami zespół KRN.pl :)


telefon

wiadomość

mapa

Mieszkanie, Aleksandrowice

Mieszkanie na sprzedaż Aleksandrowice (woj. Małopolskie)

Lokalizacja:

Aleksandrowice, , ul.

Powierzchnia:

81.70 m2

Cena:

600 000 zł

Dane szczegółowe

lokalizacja:
Małopolskie, Aleksandrowice
typ obiektu:
mieszkanie na sprzedaż
cena:
600 000 zł
pokoi:
3
piętro:
1
ilość pięter w budynku:
2
powierzchnia:
81.70 m2
powierzchnia dodatkowa:
balkon
numer ogłoszenia:
BS5-MS-301769-90
data dodania:
12-02-2026
data modyfikacji:
12-02-2026
jakość wypełnienia oferty:
88%

Szczegóły oferty

|
Mieszkanie znajduje się w miejscowości Aleksandrowice w rejonie Tenczyńskiego Parku Krajobrazowego Istnieje możliwość wykończenia pod klucz.

W pobliżu przystanek autobusowy, szkoła podstawowa, sklepy spożywcze, ośrodek zdrowia, dom kultury oraz duży plac zabaw. W sąsiedztwie Dolina Aleksandrowicka z licznymi ścieżkami spacerowymi oraz rowerowymi.
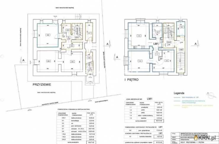
Mieszkanie znajduję się na I piętrze i składa się z
:
- Przedpokoju: 6,59 m2
- Pokój: 12,81 m2
- Pokój: 16,05 m2
- Salon + aneks kuchenny: 19,52 m2
- Łazienka: 5,18 m2
- Komórka lokatorska : 4,22 m2

Przyziemie

- Pom. gospodarcze : 17,33 m2

Łączna powierzchnia: 81,70 m2
Pomieszczenia i Komunikacja Wspólna Budynku
:

- Kl. Schodowa: 6,36 m2 , Komunikacja: 2,32 m2 , WC: 2,83 m2 , Pomieszczenie techniczne: 5,23
m2 , Schowek: 4,51 m2 , Schowek : 0,60 m2 , Kl. Schodowa: 10,73, Kl. Schodowa: 6,49 m2,
Kl. Schodowa: 6, 40 m2
Łączna powierzchnia:
44,47 m2
Możliwość zakupu ogródka do każdego z mieszkań !
Ogrzewanie i ciepła woda z pieca gazowego dwu-funkcyjnego.
Dom po generalnym remoncie, wykonano następujące prace:
- nowy przyłącz elektryczny,
- nowy przyłącz gazowy,
- nowy przyłącz wod-kan,
- nowa więźba dachowa,
- nowa izolacja poddasza,
- nowe pokrycie dachowe,
- nowa stolarka okienna,
- nowe balustrady ze stali nierdzewnej,
- nowa stolarka drzwi wejściowych,
- nowe izolacje podłogowe,
- nowe wylewki,
- nowe tynki wewnętrzne,
- nowe instalacje elektryczne,
- nowe instalacje hydrauliczne,
- nowa instalacja gazowa,
- nowe wentylacje,
- nowa docieplenie elewacji wraz z tynkiem zewnętrznym,
- nowa hydroizolacja ścian fundamentowych wraz z drenażem opaskowym,
- nowa opaska z kostki brukowej wraz ze schodami zewnętrznymi,
- nowa brama automatyczna przesuwna,
- nowe ogrodzenie,
- nowe miejsca postojowe z kostki brukowej,

Istnieje możliwość dokupienia reszty działki, na której stoi Budynek gospodarczy, do własnej aranżacji.

Biuro pomaga w bezpiecznym przeprowadzeniu transakcji.
Serdecznie zapraszam na prezentację.
Grzesiek Zębala
tel. +48
Zobacz kontakt796 541 485
::DODATKOWE INFORMACJE |
Rodzaj budynku: dom wolnostojący |
Gaz: jest |
Woda: jest |
Dojazd: asfalt |
Otoczenie: zabudowa jednorodzinna |
Ogrzewanie: centralne |
Komunikacja publ.: bus, autobus |
Odległość do komunikacji publicznej [m]: 200 |
Odl. do sklepu [m]: 300 |
Odl. do szkoły [m]: 500 |
Odl. do przedszkola [m]: 500 |
Rozkład: rozkładowe |
Usytuowanie: trójstronne |
Drzwi antywłamaniowe: TAK |
Teren ogrodzony: TAK |
Opłaty wg liczników: woda, prąd, gaz |
Rodzaj mieszkania: jednopoziomowe |
Garaż: miejsce parkingowe przy budynku |
Piwnica [m2]: 17,3300 |
Stan lokalu: deweloperski |
Okna: PCV |
Instalacje: nowe |
Balkon: Barierka |
Liczba balkonów: 2 |
Wymiary działki [m]: 21/23 |
Zagosp. działki: częściowo zagospodarowana |
Ukształtowanie działki: płaska |
Kształt działki: kwadrat |
Pokrycie dachu: dachówka |
Powierzchnia użytkowa [m2]: 81,7000 |
Stan budynku: do wykończenia |
Podpiwniczenie: częściowo podpiwniczony |
Garaż: w poziomie parteru |
Rok budowy: 2023 |
Liczba pokoi: 3 |
Wysokość pomieszczeń [m]: 2,8000 |
Liczba sypialni: 2 |
Powierzchnia pokoi [m2]: 12,81 m2 16,05 m2 19,52 m2
|
Podłogi pokoi: wylewka |
Ściany pokoi: tynk |
Wystawa okien - pokoje : Pn, Pd, Wsch, Zach |
Typ kuchni: aneks kuchenny - połączony z salonem |
Rodzaj kuchni: bez zabudowy |
Podłoga kuchni: wylewka |
Typ łazienki: razem z wc |
Liczba łazienek: 1 |
Glazura łazienki: bez glazury |
Podłoga łazienki: wylewka |
Ściany łazienki: tynk |
::LINK DO STRONY |
https://sadurscy.pl/offer/BS5-MS-301769
::KONTAKT DO AGENTA |
Grzegorz Zębala |
+ Zobacz kontakt48 796-541-485 |
Zobacz kontaktgrzesiek@sadurscy.pl
::DANE BIURA |
Oddział BS5, Nowa Huta |
Bracia Sadurscy Dariusz Sadurski |
Os. Kazimierzowskie 36 |
31-844 Kraków |
Zobacz kontakt12 265 10 29
Pośrednik odpowiedzialny zawodowo za wykonanie umowy pośrednictwa: Dariusz Sadurski (licencja nr: 803)
|
Oferta wysłana z systemu Galactica Virgo
Ogrzewanie: CENTRALNE

Kontakt do agenta:
Grzegorz Zębala
Zobacz kontaktgrzesiek@sadurscy.pl
+ Zobacz kontakt48 796-541-485

Oceń ofertę


0


22 wydruk błąd schowek

Ostatnio przeglądane

 

 

 

pobieranie

Pobierz wzór umowy

Umowa przedwstępna sprzedaży

wybierz plik do pobrania
doc pdf

 

 

Deweloperzy

);