Prosimy, odblokuj wyświetlanie reklam w naszym serwisie, są one związane z rynkiem nieruchomości.
To dzięki nim masz darmowy dostęp do naszych treści.

Z pozdrowieniami zespół KRN.pl :)


telefon

wiadomość

mapa

Mieszkanie, Kraków, Dębniki, ul. Komuny Paryskiej

Mieszkanie na sprzedaż Kraków (woj. Małopolskie), Dębniki, ul. Komuny Paryskiej

Lokalizacja:

Kraków, Dębniki, ul. Komuny Paryskiej

Powierzchnia:

78.00 m2

Cena:

960 000 zł

Dane szczegółowe

lokalizacja:
Małopolskie, Kraków, Dębniki, ul. Komuny Paryskiej
typ obiektu:
mieszkanie na sprzedaż
cena:
960 000 zł
pokoi:
3
piętro:
parter
ilość pięter w budynku:
2
powierzchnia:
78.00 m2
numer ogłoszenia:
BS1-MS-313608-43
data dodania:
17-04-2026
data modyfikacji:
17-04-2026
jakość wypełnienia oferty:
82%

Szczegóły oferty



KRAKÓW - DĘBNIKI/KLINY

NOWE TRZYPOKOJOWE MIESZKANIE OK.7

8

M2 ! Z TARASEM

i DUŻYM OGRÓDKIEM

!! Budynek z 20

08

roku.

LOKAL WYKOŃCZONY!

MIESZKANIE DOBRE ZARÓWNO DLA RODZINY JAK I JAKO INWESTYCJA POD WYNAJEM!
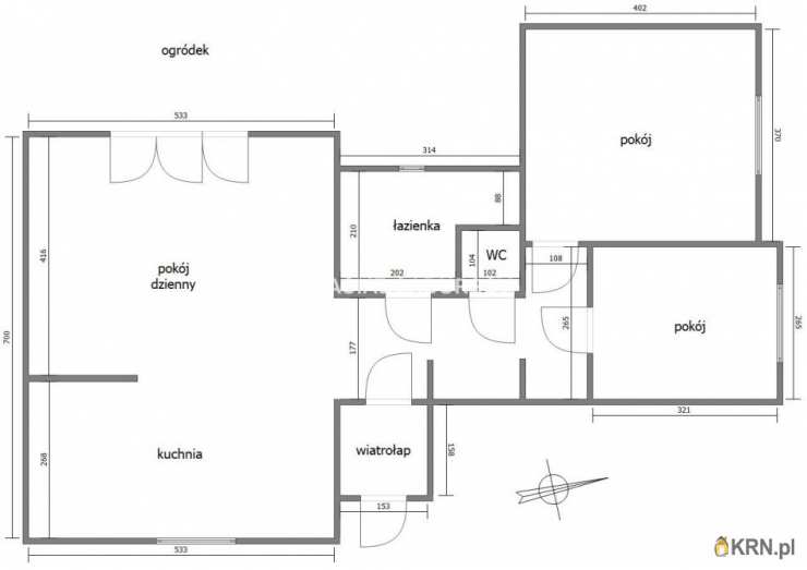
Mieszkanie o powierzchni 77,25 m2 położone na parterze/2 piętrowego kameralnego budynku (tylko 3 lokale, mieszkanie bezczynszowe) z 2008 r.

Lokal składa się:

Z części dziennej: aneksu kuchennego połączonego/otwartego na cześć jadalną i salon, dwóch oddzielnych sypialni w tym, łazienki oraz osobnego wc, przedpokoju,
oraz tarasu i dużego ogródka ok.100m2 . Do mieszkania przynależy miejsce parkingowe naziemne.

Ekspozycja na południe, zachód i wschód.

Ogrzewanie lokalne własne- piec dwufunkcyjny.

Okolica spokojna i cicha.

Mieszkanie jest przestronne i funkcjonalne.

Kuchnia wyposażona (lodówka, zmywarka, okap) meble kuchenne. W pokojach pojemne szafy. Przedpokój duża zabudowana szafa.

W lokalu jest instalacja alarmowa.

Okolica:

liczne sklepy, szkoły, przedszkola, żłobki, różnorodne usługi, centrum fitness, tereny zielone rowerowa spacerowe, parki.

Dobre połączenie komunikacją miejską; linie autobusowe (niedaleko pętla). Bardzo dobry i szybki dojazd do obwodnicy Krakowa (i autostrady A4).
Zapraszam na prezentacje!!
CENA MIESZKANIA 960
000

Kontakt: Piotr Dziadzio
+ Zobacz kontakt48 515 234 864
prezentacja bezpłatna po podpisaniu umowy pośrednictwa


::DODATKOWE INFORMACJE
Rodzaj budynku: nowe budownictwo Dozór budynku: alarm Gaz: jest Woda: piec gazowy dwufunkcyjny Dojazd: asfalt Otoczenie: działki zabudowane Ogrzewanie: piec dwufunkcyjny Linie telefoniczne: TAK Alarm: TAK Komunikacja publ.: autobus Winda: NIE Rozkład: dwustronne rozkładowe Usytuowanie: dwustronne Rolety antywłamaniowe: TAK Teren ogrodzony: TAK Opłaty w czynszu: - Opłaty wg liczników: woda, prąd, gaz Rodzaj mieszkania: jednopoziomowe Okna: PCV Tarasy: taras Powierzchnia użytkowa [m2]: 78 Rok budowy: 2008 Liczba pokoi: 3 Liczba sypialni: 2 Podłogi pokoi: panele Wystawa okien - pokoje : Pd, Wsch, Zach Typ kuchni: widna Rodzaj kuchni: aneks kuchenny połączony z jadalnią i salonem Podłoga kuchni: płytki Typ łazienki: osobno z wc Glazura łazienki: nowego typu Podłoga łazienki: płytki Wyposażenie łazienki: wanna, natrysk Glazura WC: nowego typu Podłoga WC: płytki Liczba przedpokoi: 1 Podłoga przedpokoi: płytki, panele
::LINK DO STRONY
https://sadurscy.pl/offer/BS1-MS-313608
Zobacz Wirtualny Spacer: https://tour.feelestate.com/view/fullscreen/id/VV31C
::KONTAKT DO AGENTA
Piotr Dziadzio + Zobacz kontakt48 515-234-864 Zobacz kontaktpiotr@sadurscy.pl
::DANE BIURA
Oddział BS1, Kapelanka Kapelanka 1A/1 30-347 Kraków Zobacz kontakt12 429-25-12
Pośrednik odpowiedzialny zawodowo za wykonanie umowy pośrednictwa: Dariusz Sadurski (licencja nr: 803)

Ogrzewanie: PIEC DWUFUNKCYJNY

Kontakt do agenta:
Piotr Dziadzio
Zobacz kontaktpiotr@sadurscy.pl
+ Zobacz kontakt48 515-234-864

Oceń ofertę


0


25 wydruk błąd schowek

Ostatnio przeglądane

 

 

 

pobieranie

Pobierz wzór umowy

Umowa przedwstępna sprzedaży

wybierz plik do pobrania
doc pdf

 

 

Deweloperzy

);