Prosimy, odblokuj wyświetlanie reklam w naszym serwisie, są one związane z rynkiem nieruchomości.
To dzięki nim masz darmowy dostęp do naszych treści.

Z pozdrowieniami zespół KRN.pl :)


telefon

wiadomość

mapa

Mieszkanie, Kielce, Baranówek

Mieszkanie na sprzedaż Kielce (woj. Świętokrzyskie), Baranówek

Lokalizacja:

Kielce, Baranówek, ul.

Powierzchnia:

77.02 m2

Cena:

955 048 zł

Dane szczegółowe

lokalizacja:
Świętokrzyskie, Kielce, Baranówek
typ obiektu:
mieszkanie na sprzedaż
cena:
955 048 zł
pokoi:
4
piętro:
3
ilość pięter w budynku:
4
powierzchnia:
77.02 m2
numer ogłoszenia:
PRP-MS-75215
data dodania:
04-07-2025
data modyfikacji:
20-09-2025
jakość wypełnienia oferty:
76%

Szczegóły oferty


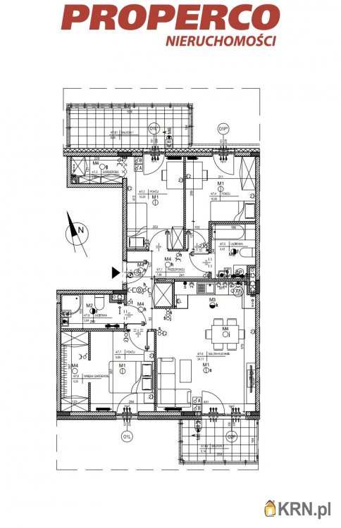
Na sprzedaż
4-pokojowe
mieszkanie o pow.
77,02 m²
zlokalizowane na III piętrze nowego apartamentowca w dzielnicy Baranówek/Stadion Leśny, przy ul. Artylerzystów.

W skład mieszkania wchodzi:
- salon z aneksem kuchennym (24,11 m2),
- 3 sypialnie (10,25 m2, 10,05 m2, 9,95 m2),
- wnęka garderobiana (4,25 m2),
- garderoba (2,56 m2),
- 2 łazienki (4,43 m2, 3,94 m2),
- komunikacja (7,86 m2).
Do lokalu przynależą 2 balkony o pow. 9,65 m2 oraz 6,14 m2.
Typ ogrzewania w budynku: gazowe (własna kotłownia dla budynku).
Opcja zakupu miejsca postojowego w garażu podziemnym w cenie
60000 PLN brutto , komórki lokatorskiej w cenie
5000 PLN/m2 .
Inwestycja zlokalizowana jest w spokojnej części Kielc, pośród terenów rekreacyjnych, z dala od głównych arterii komunikacyjnych. W najbliższym sąsiedztwie: Stadion Leśny, wyciąg narciarski, przystanek MPK, Basen Binkowski, Kadzielnia oraz ścieżki rowerowe i spacerowe. Dogodny dojazd do centrum miasta. W budynku zaprojektowano 24 mieszkania oraz 22 miejsca postojowe w garażu podziemnym i 7 miejsc postojowych zewnętrznych.
Budynki zostaną wyposażone w cichobieżne windy. Adres strony internetowej, o którym mowa w art. 19a ust. 3 ustawy z dnia 20 maja 2021 r. o ochronie praw nabywcy lokalu mieszkalnego lub domu jednorodzinnego oraz Deweloperskim Funduszu Gwarancyjnym to becher(kropka)pl.
Adres strony został ujęty fonetycznie.

Termin zakończenia inwestycji: II kwartał 2025 r.

>>Kupujący zwolniony z kosztów obsługi biura i podatku PCC <<

Sprzedaż inwestycji prowadzi biuro PROPERCO.pl - Kielce, ul. Kozia 3A/1
Dane kontaktowe do agenta: Krzysztof Jakubowski
Tel: Zobacz kontakt888 889 568 E-mail: Zobacz kontaktkrzysztof.jakubowski@properco.pl
--------------------------
Biuro Nieruchomości PROPERCO sp. z o.o. sp.k. współpracuje z doświadczonymi specjalistami finansowymi, oferującymi sprawdzenie zdolności kredytowej oraz przedstawienie oferty finansowania nieruchomości / Informacje dotyczące opisu nieruchomości podane są przez właściciela, mają charakter wyłącznie informacyjny i mogą podlegać aktualizacji. Oferta dotycząca nieruchomości nie stanowi oferty określonej w art. 66 i następnych KC. Nasze usługi świadczymy w oparciu o umowę pośrednictwa, która gwarantuje Państwu opiekę naszego doradcy przez cały okres trwania współpracy. Za wykonaną usługę pobieramy wynagrodzenie zgodnie z warunkami uzgodnionymi w zawartej umowie /// The real estate agency PROPERCO sp. z o.o. sp.k. collaborates with experienced financial specialists, offering creditworthiness assessment and presenting property financing offers. Information regarding property descriptions is provided by the owner, is purely informational, and may be subject to updates. The property offer does not constitute a specific offer as defined in Art. 66 and subsequent articles of the Civil Code. Our services are provided based on a brokerage agreement, ensuring you the care of our advisor throughout the entire collaboration period. We charge a fee for the services rendered according to the terms agreed upon in the concluded agreement.
Zapraszamy do siedziby naszego biura w Kielcach przy ul. Koziej 3a/1. /// We invite you to visit our office located in Kielce at 3a/1 Kozia Street.
Dane adresowe /// Address details:
PROPERCO sp. z o.o. sp.k ul. Kozia 3a/1 25-514 Kielce tel. kom: + Zobacz kontakt48 692-024-827 https://www.properco.pl/

Ogrzewanie: Gazowe

Kontakt do agenta:
Krzysztof Jakubowski
Zobacz kontaktkrzysztof.jakubowski@properco.pl
+ Zobacz kontakt48 41 310 90 71
+ Zobacz kontakt48 888 889 568

Oceń ofertę


3


671 wydruk błąd schowek

Ostatnio przeglądane

 

 

 

pobieranie

Pobierz wzór umowy

Umowa przedwstępna sprzedaży

wybierz plik do pobrania
doc pdf

 

 

Deweloperzy

);