Prosimy, odblokuj wyświetlanie reklam w naszym serwisie, są one związane z rynkiem nieruchomości.
To dzięki nim masz darmowy dostęp do naszych treści.

Z pozdrowieniami zespół KRN.pl :)


telefon

wiadomość

mapa

Mieszkanie, Wrocław, Fabryczna

Mieszkanie na sprzedaż Wrocław (woj. Dolnośląskie), Fabryczna

Lokalizacja:

Wrocław, Fabryczna, ul.

Powierzchnia:

74.99 m2

Cena:

879 860 zł

Dane szczegółowe

lokalizacja:
Dolnośląskie, Wrocław, Fabryczna
typ obiektu:
mieszkanie na sprzedaż
cena:
879 860 zł
pokoi:
4
piętro:
3
ilość pięter w budynku:
3
powierzchnia:
74.99 m2
powierzchnia dodatkowa:
balkon, taras, piwnica
numer ogłoszenia:
2048-8
data dodania:
24-04-2026
data modyfikacji:
25-04-2026
jakość wypełnienia oferty:
76%

Szczegóły oferty


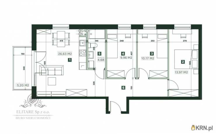
Rozkładowe, duże, 4 pokojowe mieszkanie o powierzchni 74,99m2 z balkonem o pow. 5,20m2 na zielonych, spokojnych Żernikach w zachodniej części Wrocławia.

Mieszkanie ma pow. 74,99m2 znajduje się na 3 piętrze w 3 piętrowym bloku z windą. Główna część mieszkania stanowi salon o pow. 26,63m2 z kuchnią w aneksie, z salonu wyjście na balkon o pow. 5,2m2, w mieszkaniu mamy dodatkowo trzy oddzielne pokoje o pow. 13,97m2, 10,17m2 i 9,96m2, mamy też łazienkę z toaletą o pow. 4,68m2 i przedpokój.

Mieszkanie jest dwustronne, narożne z ekspozycją północną i zachodnią, w bloku mamy wspólną, nowoczesną kotłownie gazową, a w częściach wspólnych zastosowano energooszczędne rozwiązania, takie jak panele słoneczne, zmniejszające koszty eksploatacji budynku.

W opcjach dodatkowych do mieszkania zakupić można miejsce postojowe naziemne w cenie 25tyś i/lub komórkę lokatorską w cenie 5000/m2. Liczba miejsc postojowych i komórek jest ograniczona więc ich dostępność i możliwość zakupu uzgadniania jest przed prezentacją.

Elegancki apartamentowiec idealnie wpisujący się w okolice z zieloną elewacją oraz wewnętrznymi ogrodami. Połączenie nowoczesnych rozwiązań technologicznych z naturalnym pięknem otoczenia daje mieszkańcom poczucie bliskości z przyrodą na co dzień, a jednocześnie zaledwie 20 minut od tętniącego życiem centrum Wrocławia. Mieszkańcy mogą cieszyć się bliskością restauracji, sklepów i miejsc rozrywki, a jednocześnie odpoczywać w zaciszu zielonych terenów osiedla. Tuż obok znajduje się Żernicki Park Sportu i Rekreacji idealne tereny dla aktywnych mieszkańców.

Świetna infrastruktura komunikacyjna umożliwia szybki i wygodny dostęp do każdej części miasta, a bliskość przystanków autobusowych sprawia, że podróżowanie staje się wyjątkowo komfortowe.

Inwestycja jest w trakcie realizacji z terminem na 30.04.2026– mieszkanie przekazywane do 31.05.2025 w stanie deweloperskim do własnej aranżacji. Dostępne są jeszcze większe 3 i 4 pokojowe mieszkania zapraszam do kontaktu zainteresowanych klientów. Zakup bezpośrednio od dewelopera bezpieczną umową deweloperską (bez PCC i bez prowizji).

Ania Cieślak- Doradca klienta

Zadzwoń, napisz maila

tel. Zobacz kontakt535 422 198

Zobacz kontaktanna.cieslak@eliatre.pl

Nr oferty 14/AC

Zamieszczone na naszych stronach informacje nie stanowią oferty w rozumieniu Kodeksu Cywilnego, a dane w nich zawarte mają jedynie charakter informacyjny.

OFERTA CENOWA AKTUALNA NA DZIEŃ 23.04.2026 I OBOWIĄZUJE DO DNIA 23.04.2026

Oceń ofertę


0


25 wydruk błąd schowek

Ostatnio przeglądane

 

 

 

pobieranie

Pobierz wzór umowy

Umowa przedwstępna sprzedaży

wybierz plik do pobrania
doc pdf

 

 

Deweloperzy

);