Prosimy, odblokuj wyświetlanie reklam w naszym serwisie, są one związane z rynkiem nieruchomości.
To dzięki nim masz darmowy dostęp do naszych treści.

Z pozdrowieniami zespół KRN.pl :)


telefon

wiadomość

mapa

Mieszkanie, Wrocław, Krzyki

Mieszkanie na sprzedaż Wrocław (woj. Dolnośląskie), Krzyki

Lokalizacja:

Wrocław, Krzyki, ul.

Powierzchnia:

73.68 m2

Cena:

1 702 008 zł

Dane szczegółowe

lokalizacja:
Dolnośląskie, Wrocław, Krzyki
typ obiektu:
mieszkanie na sprzedaż
cena:
1 702 008 zł
pokoi:
3
piętro:
parter
ilość pięter w budynku:
4
powierzchnia:
73.68 m2
powierzchnia dodatkowa:
balkon, taras, piwnica
numer ogłoszenia:
1732-9
data dodania:
11-12-2025
data modyfikacji:
11-12-2025
jakość wypełnienia oferty:
76%

Szczegóły oferty


Serdecznie zapraszam do zakupu wyjątkowej inwestycji, w zabytkowym kompleksie byłego szpitala kolejowego z końca XIX wieku, położonym w centrum Wrocławia. Powstaje tu wysokiej jakości projekt mieszkaniowy z uzupełniającą funkcją usługową obejmujący adaptację i całkowitą odnowę wartościowych historycznie budynków z dostosowaniem do nowej funkcji przy jednoczesnym uzupełnieniu architektury o elementy współczesnego apartamentowca. Utrzymanie, odnowienie i uwypuklenie historycznego charakteru tego miejsca zabudowy jest priorytetem dla dewelopera.

Prestiżowa inwestycja, przeznaczona jest dla Klienta klasy PREMIUM, który ma możliwość nabyć nie tylko nową jakość zamieszkania ale dostaje też apartamentowiec z wieloma udogodnieniami. Ochrona, monitoring, wysokość pomieszczeń mieszkalnych 4m, możliwość ładowania aut elektrycznych, duże tarasy, starodrzew, drewniane okna, izolacja akustyczna, rolety zewnętrzne, garaż podziemny, przemyślana przestrzeń usługowa tylko w części kompleksu i niesowity, bardzo charakterystyczny dla dzielnicy Borek zachowany starodrzew uzupełniony o nowe zielone skwery - to tylko niektóre atuty inwestycji.

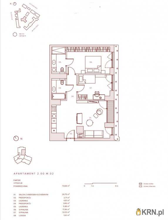
Prezentowany apartament ma powierzchnię 73,68m2, znajduje się na parterze w czteropiętrowym budynku.

Mieszkanie składa się z

-salonu z aneksem kuchennym o powierzchni 26,75m2

-sypialni o powierzchni 17,84m2

-sypialni o powierzchni 12,03m2

-łazienki o powierzchni 5,88m2

-łazienki o powierzchni 4,61m2

-przedpokoju o powierzchni 3,86m2

-loggia o powierzchni 1,62m2

Atuty inwestycji-

-Ogrzewanie miejskie- dla budynków zabytkowych grzejniki płytowe, dla nowego budynku ogrzewanie podłogowe. Dla nowego budynku w standardzie doprowadzenie klimatyzacji do salonu.

Do apartamentu zakupić można komórkę lokatorską, dostępne wielkości od 4 do 18m2, cena 6500 zł/m2.

Miejsce postojowe w garażu podziemnym nie jest obligatoryjny i na tym etapie sprzedaży jest możliwy dla mieszkań 3 pokojowych i większych. Ceny miejsc od 100tyś w zależności od opcji

TERMIN REALIZACJI:

Koniec etapu budowy I kw. 2026,

Przekazanie kluczy II kw. 2026

Wyjątkowa przestrzeń dla wyjątkowego i wymagającego klienta, który szuka miejsca dla siebie w samym sercu Wrocławia lub pewnej i zyskownej inwestycji. Zapraszam na prezentacje -ten obiekt trzeba zobaczyć aby docenić jego potencjał.

Zapraszam do kontaktu w celu przygotowania oferty / umówienia się na prezentacje – Kupujący nie płaci prowizji

Zapewniam

- profesjonalną obsługę, gwarantowaną wieloletnim doświadczeniem w branży nieruchomości-możliwość bezpłatnej rezerwacji apartamentu

- kompleksowe wsparcie na każdym etapie transakcji

- gwarancję bezpiecznego zakupu

- oszczędność czasu

-pomoc w uzyskaniu kredytu na najlepszych warunkach

- kompleksowe doradztwo

Ania Kamuda- Doradca klienta

tel. Zobacz kontakt535 422 188

Zobacz kontaktanna.kamuda@elitare.pl

Nr oferty SU/2.00.M.02/AK

Zamieszczone na naszych stronach informacje nie stanowią oferty w rozumieniu Kodeksu Cywilnego, a dane w nich zawarte mają jedynie charakter informacyjny.

OFERTA CENOWA AKTUALNA NA DZIEŃ 10-12-2025 I OBOWIĄZUJE DO DNIA 10-12-2025

Oceń ofertę


0


41 wydruk błąd schowek

Ostatnio przeglądane

 

 

 

pobieranie

Pobierz wzór umowy

Umowa przedwstępna sprzedaży

wybierz plik do pobrania
doc pdf

 

 

Deweloperzy

);