Prosimy, odblokuj wyświetlanie reklam w naszym serwisie, są one związane z rynkiem nieruchomości.
To dzięki nim masz darmowy dostęp do naszych treści.

Z pozdrowieniami zespół KRN.pl :)


telefon

wiadomość

mapa

Mieszkanie, Wrocław, Fabryczna

Mieszkanie na sprzedaż Wrocław (woj. Dolnośląskie), Fabryczna

Lokalizacja:

Wrocław, Fabryczna, ul.

Powierzchnia:

71.51 m2

Cena:

831 689 zł

Dane szczegółowe

lokalizacja:
Dolnośląskie, Wrocław, Fabryczna
typ obiektu:
mieszkanie na sprzedaż
cena:
831 689 zł
pokoi:
4
piętro:
1
ilość pięter w budynku:
4
powierzchnia:
71.51 m2
powierzchnia dodatkowa:
balkon, taras, piwnica
numer ogłoszenia:
2141-2
data dodania:
20-03-2026
data modyfikacji:
20-03-2026
jakość wypełnienia oferty:
76%

Szczegóły oferty


Nowoczesna inwestycja, zaprojektowana z dbałością o detale, styl i kolorystyka budynków doskonale wpiszą się w otaczającą przestrzeń. Zielone skwery, place zabaw i miejsca odpoczynku zapewnią mieszkańcom wygodę, a liczne lokale usługowe i sklepy zagwarantują dostępność niezbędnej do codziennego funkcjonowania infrastruktury. Bliskość szkół, przystanków i miejsc sportowo-kulturalnych ułatwi korzystanie z wielkomiejskiego życia. Jednocześnie, sąsiedztwo terenów zielonych i rekreacyjnych daje wiele możliwości spędzania wolnego czasu – od kojących spacerów po sportowe aktywności na świeżym powietrzu.

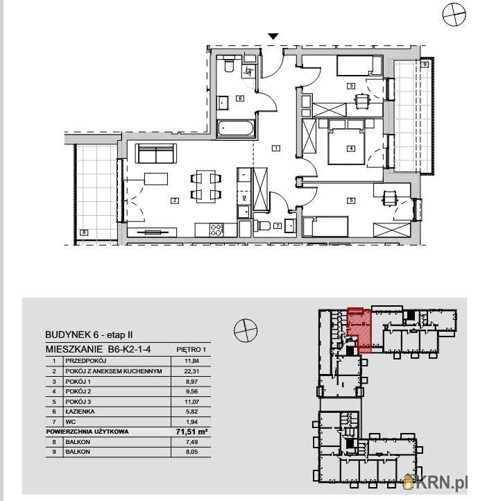
Prezentowane mieszkanie ma powierzchnię 71,51m2 i znajduje się na pierwszym piętrze w pięciokondygnacyjnym budynku a jego główne cechy to- salon z aneksem kuchennym o powierzchni 22,31m2 z wyjściem na balkon o powierzchni 8,05m2, 3 sypialnie o powierzchniach 11,07m2, 9,56m2 i 8,97m2, łazienka o powierzchni 5,82m2, wc o powierzchni 1,94m2 , przedpokój o powierzchni 11,84m2.

• Ogrzewanie miejskie

• Elektryczne rolety zewnętrzne na parterze

• Mieszkanie rozkładowe i dwustronne

• Miejsce postojowe w garażu podziemnym

• W pobliżu przedszkole, żłobek, szkoły , przystanki

Mieszkanie w stanie deweloperskim.

Proponujemy szybkie możliwości wykończenia mieszkania w atrakcyjnej cenie w 3 różnych wariantach w zależności od potrzeb kupującego!

- Cena miejsca postojowego w garażu podziemnym -38 000 – zakup obligatoryjny

Nowoczesna bryła budynków inwestycji nawiązywać będzie do klasycznego stylu zgodnego z koncepcją modelowego osiedla. Kontrastująca kolorystyka, drewniane akcenty i liczne przeszklenia nadadzą całości oryginalnego charakteru. Materiały użyte do budowy będą charakteryzować się najwyższą jakością. Osiedle ozdobią starannie dobrane kompozycje roślin i ciekawie zaaranżowane strefy relaksu dla mieszkańców, takie jak ławki czy skwery. Inteligentne oświetlenie zapewni lokatorom poczucie bezpieczeństwa, ale również wprowadzi kameralny klimat. W budynku zadbano także o utworzenie pomieszczeń, w których można wspólnie i aktywnie spędzać czas. Powstaną: strefa do jogi oraz przestrzeń dla najmłodszych.

Zapraszam do kontaktu w celu przygotowania oferty / umówienia się na prezentacje – Kupujący nie płaci prowizji.

Zapewniam

- profesjonalną obsługę, gwarantowaną wieloletnim doświadczeniem w branży nieruchomości-możliwość bezpłatnej rezerwacji apartamentu

- kompleksowe wsparcie na każdym etapie transakcji

- gwarancję bezpiecznego zakupu

- oszczędność czasu

-pomoc w uzyskaniu kredytu na najlepszych warunkach

- kompleksowe doradztwo

- pomoc w aranżacji mieszkania

Ania Kamuda- Doradca klienta

tel. Zobacz kontakt535 422 188

Zobacz kontaktanna.kamuda@elitare.pl

Nr oferty AŻNN/B6/K2-1-4/AK

Zamieszczone na naszych stronach informacje nie stanowią oferty w rozumieniu Kodeksu Cywilnego, a dane w nich zawarte mają jedynie charakter informacyjny.

OFERTA CENOWA AKTUALNA NA DZIEŃ 19-03-2026 I OBOWIĄZUJE DO DNIA 19-03-2026

Oceń ofertę


0


45 wydruk błąd schowek

Ostatnio przeglądane

 

 

 

pobieranie

Pobierz wzór umowy

Umowa przedwstępna sprzedaży

wybierz plik do pobrania
doc pdf

 

 

Deweloperzy

);