Prosimy, odblokuj wyświetlanie reklam w naszym serwisie, są one związane z rynkiem nieruchomości.
To dzięki nim masz darmowy dostęp do naszych treści.

Z pozdrowieniami zespół KRN.pl :)


telefon

wiadomość

mapa

Mieszkanie, Słupsk

Mieszkanie na sprzedaż Słupsk (woj. Pomorskie)

Lokalizacja:

Słupsk, , ul.

Powierzchnia:

70.00 m2

Cena:

529 000 zł

Dane szczegółowe

lokalizacja:
Pomorskie, Słupsk
typ obiektu:
mieszkanie na sprzedaż
cena:
529 000 zł
pokoi:
4
piętro:
parter
ilość pięter w budynku:
4
powierzchnia:
70.00 m2
numer ogłoszenia:
YNK-MS-2703
data dodania:
05-03-2026
data modyfikacji:
08-04-2026
jakość wypełnienia oferty:
76%

Szczegóły oferty


Tylko w naszej ofercie! Na sprzedaż przestronne, 4-pokojowe mieszkanie o powierzchni 70m² - Słupsk, ul. Bitwy Warszawskiej 7!

Oferujemy na sprzedaż komfortowe i funkcjonalne mieszkanie położone w Słupsku przy ul. Bitwy Warszawskiej 7. Lokal usytuowany jest na parterze w czteropiętrowym bloku z lat 80, co stanowi idealne rozwiązanie dla rodzin z dziećmi, osób starszych lub wszystkich ceniących wygodny dostęp bez konieczności korzystania ze schodów.

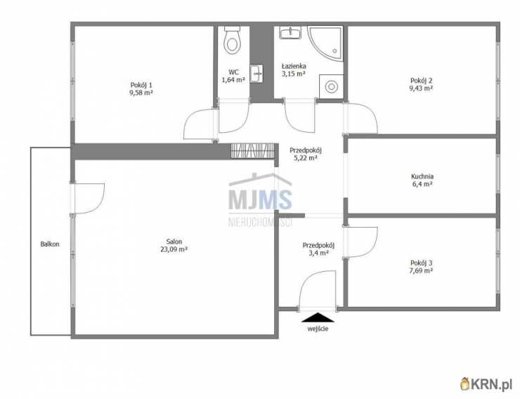
Układ pomieszczeń:

Salon - 23,09 m²
Pokój nr 1 - 9,58 m²
Pokój nr 2 - 9,43 m²
Pokój nr 3 - 7,69 m²
Kuchnia - 6,40 m²
Łazienka (z prysznicem i pralką) - 3,15 m²
WC z umywalką - 1,64 m²
Przedpokój - 3,40 m²
Przedpokój - 5,22 m²

Najważniejsze informacje:

Powierzchnia mieszkania:
69,60m²

Cena:
529 000 zł

Stan prawny:
pełna własność, brak jakichkolwiek obciążeń w księdze wieczystej

Stan techniczny:
mieszkanie gotowe do zamieszkania

Duży, zabudowany balkon

Dodatkowo:
piwnica o powierzchni 5,75m²

Mieszkanie w pełni rozkładowe, zapewnia wygodę codziennego użytkowania oraz duże możliwości aranżacyjne. Przestronny salon z wyjściem na balkon stanowi centralny punkt lokalu i idealne miejsce do wypoczynku oraz spotkań rodzinnych.

Dodatkowe atuty:

Duża liczba miejsc parkingowych dostępnych przed budynkiem
Klatka schodowa zabezpieczona domofonem

Spokojna i dobrze skomunikowana okolica
Funkcjonalna piwnica zapewniająca dodatkową przestrzeń do przechowywania

Cena 529 000 zł

Oferujemy pełne wsparcie na każdym etapie transakcji - od prezentacji, przez obsługę prawną, po pomoc w uzyskaniu kredytu hipotecznego. Współpracujemy z wiodącymi bankami, dobierając ofertę indywidualnie do Twoich potrzeb.

Zadzwoń i umów się na prezentację.
Tomek:
Zobacz kontakt535 630 680

Niniejsza oferta nie stanowi oferty w rozumieniu Kodeksu Cywilnego. Dane mają charakter informacyjny i mogą ulec zmianie.
Pośrednik odpowiedzialny zawodowo za wykonanie umowy pośrednictwa: Marlena (licencja nr: 22241)
Oferta wysłana z systemu Galactica Virgo
Ogrzewanie: Miejskie

Kontakt do agenta:
Tomek
Zobacz kontaktbiuro@mjms.pl
Zobacz kontakt535 630 680

Oceń ofertę


9.99


323 wydruk błąd schowek

Ostatnio przeglądane

 

 

 

pobieranie

Pobierz wzór umowy

Umowa przedwstępna sprzedaży

wybierz plik do pobrania
doc pdf

 

 

Deweloperzy

);