Prosimy, odblokuj wyświetlanie reklam w naszym serwisie, są one związane z rynkiem nieruchomości.
To dzięki nim masz darmowy dostęp do naszych treści.

Z pozdrowieniami zespół KRN.pl :)


telefon

wiadomość

mapa

Mieszkanie, Namysłów, ul. W. Reymonta

Mieszkanie na sprzedaż Namysłów (woj. Opolskie), ul. W. Reymonta

Lokalizacja:

Namysłów, , ul. W. Reymonta

Powierzchnia:

70.00 m2

Cena:

490 000 zł

Dane szczegółowe

lokalizacja:
Opolskie, Namysłów, ul. W. Reymonta
typ obiektu:
mieszkanie na sprzedaż
cena:
490 000 zł
pokoi:
3
piętro:
3
powierzchnia:
70.00 m2
numer ogłoszenia:
KOS-MS-4839
data dodania:
21-11-2025
data modyfikacji:
21-11-2025
jakość wypełnienia oferty:
64%

Szczegóły oferty


Kupujący nie płacą prowizji. Nowe, wykończone mieszkanie od dewelopera - gotowe do wprowadzenia!
Na sprzedaż atrakcyjny, nowoczesny apartament w nowym budownictwie, oddany w stanie wykończonym przez dewelopera. Mieszkanie jest świeżo przygotowane do zamieszkania - nie wymaga żadnego remontu. Wystarczy je umeblować i można od razu się wprowadzić.
To doskonała propozycja dla osób szukających nowego, estetycznego lokum bez konieczności dodatkowych prac wykończeniowych.
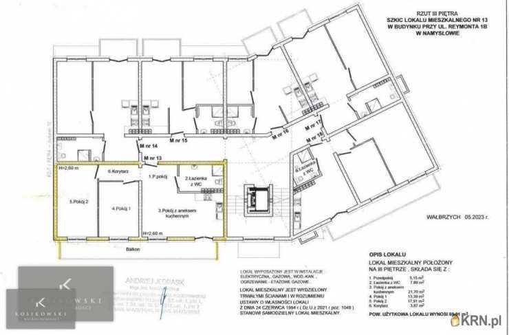
Przestronny apartament o
powierzchni 69,91 m² , położony na
3 piętrze
w nowym budownictwie, w
bloku z windą .
Najważniejsze atuty nieruchomości:

Nowe mieszkanie od dewelopera - brak podatku PCC!
Duży metraż 69,91 m² , doskonały układ pomieszczeń.
W cenie komórka lokatorska (piwnica).
Możliwość
dokupienia garażu w przyziemiu .
Mieszkanie
częściowo wykończone
- po zakończeniu inwestycji nie musisz remontować, tylko umeblować.
Wykończone elementy obejmują:
nowoczesną łazienkę,
drzwi wewnętrzne,
podłogi,
meble kuchenne,
klimatyzację w cenie!
Układ pomieszczeń:

Salon z aneksem kuchennym
- jasna, otwarta przestrzeń z wyjściem na
duży balkon
Dwie ustawne sypialnie , idealne na pokój dziecięcy, biuro lub sypialnię główną
Duży przedpokój
z miejscem na obszerną zabudowę garderobianą
Łazienka
gotowa do użytkowania

Lokalizacja:
Mieszkanie znajduje się w jednym z najbardziej pożądanych miejsc w okolicy -
Pasaż Słoneczny przy ul. Reymonta .

W zasięgu dostępne są:

sklepy spożywcze,
piekarnia,
apteka,
salony fryzjerskie i inne usługi,
szkoła podstawowa.

To miejsce idealne dla rodzin oraz osób ceniących wygodę i szybki dostęp do infrastruktury.

Ostatnie mieszkanie w tej inwestycji!

Bardzo atrakcyjna oferta - nie wymaga remontu, jedynie wyposażenia i drobnej dekoracji. Wprowadź się od razu!
Zapraszamy na prezentację nieruchomości ! Kliencie nic nam nie zapłacisz, a otrzymasz:

kilkaset ofert w jednym miejscu,
pomoc przy załatwieniu kredytu na zakup nieruchomości,
rzetelną informacje o każdej ofercie,
sprawdzony stan prawny nieruchomości,
możliwość obejrzenia każdej oferty w uzgodnionym wspólnie terminie,
uzgodnione warunki i dokumentację do zawarcia umowy przedwstępnej,
pełną dokumentację i koordynację
aktu notarialnego,
protokoły przekazania nieruchomości i liczników,
zapłatą dla nas ma być Twój uśmiech.
Oferujemy skuteczną, nieodpłatną pomoc w uzyskaniu kredytu na zakup nieruchomości. Zapraszamy do naszego biura w celu omówienia szczegółów oferty oraz ustalenia dogodnego dla Państwa terminu prezentacji.
Nota prawna: Informacje dotyczące opisu nieruchomości podane są przez właściciela, mają charakter wyłącznie informacyjny i mogą podlegać aktualizacji. Oferta dotycząca nieruchomości stanowi zaproszenie do rokowań zgodnie z art. 71 Kodeksu Cywilnego i nie stanowi oferty określonej w art. 66 i następnych KC.
Odnośnik do oferty na stronie biura: https://www.kosikowski.com.pl/ad/4910
OSOBA PROWADZĄCA
Martyna Osyp Kierownik Zespołu Sprzedaży
tel. (+48) Zobacz kontakt667 80 50 60
tel. (+48) Zobacz kontakt77 410 50 60
www.kosikowski.com.pl
Zobacz kontaktm.osyp@kosikowski.com.pl
Pod nadzorem pośrednika - licencja 11884
Pośrednik odpowiedzialny zawodowo za wykonanie umowy pośrednictwa: Kosikowski Nieruchomości - Biuro Namysłów (licencja nr: 11884)
Oferta wysłana z systemu Galactica Virgo
Ogrzewanie: PIEC DWUFUNKCYJNY

Kontakt do agenta:
Kosikowski Nieruchomości - Biuro Namysłów
Zobacz kontaktkontakt@kosikowski.com.pl
Zobacz kontakt774105060

Oceń ofertę


0


105 wydruk błąd schowek

Ostatnio przeglądane

 

 

 

pobieranie

Pobierz wzór umowy

Umowa przedwstępna sprzedaży

wybierz plik do pobrania
doc pdf

 

 

Deweloperzy

);