Prosimy, odblokuj wyświetlanie reklam w naszym serwisie, są one związane z rynkiem nieruchomości.
To dzięki nim masz darmowy dostęp do naszych treści.

Z pozdrowieniami zespół KRN.pl :)


telefon

wiadomość

mapa

Mieszkanie, Kraków, Podgórze/Płaszów

Mieszkanie na sprzedaż Kraków (woj. Małopolskie), Podgórze/Płaszów

Lokalizacja:

Kraków, Podgórze/Płaszów, ul.

Powierzchnia:

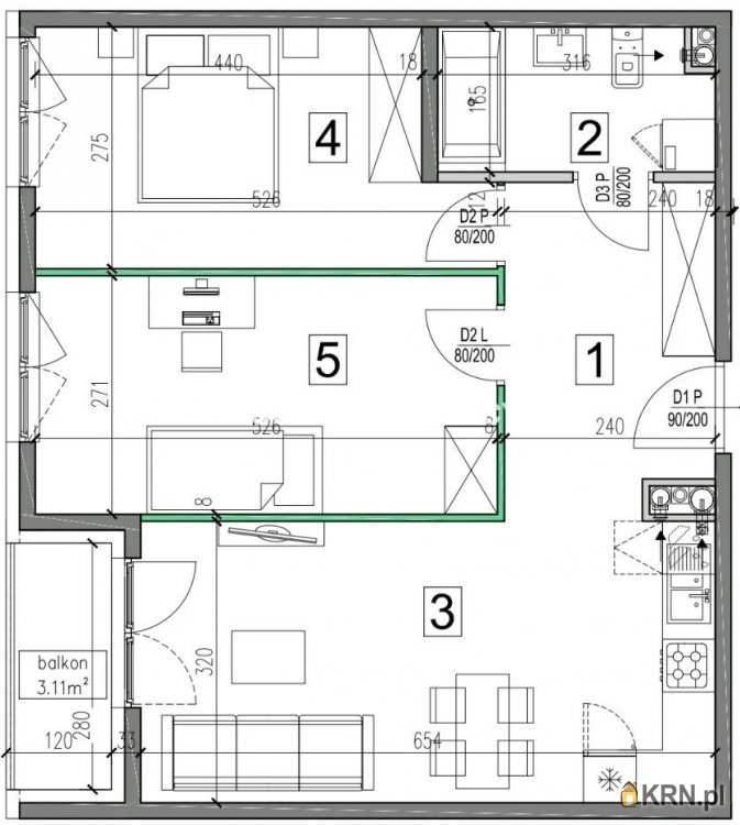
69.92 m2

Cena:

994 949 zł

Dane szczegółowe

lokalizacja:
Małopolskie, Kraków, Podgórze/Płaszów
typ obiektu:
mieszkanie na sprzedaż
cena:
994 949 zł
pokoi:
3
piętro:
1
ilość pięter w budynku:
5
powierzchnia:
69.92 m2
powierzchnia dodatkowa:
balkon
media:
woda
numer ogłoszenia:
BS2-MS-298271-31
data dodania:
30-11-2024
data modyfikacji:
30-11-2024
jakość wypełnienia oferty:
88%

Szczegóły oferty



PODÓRZE REJON PŁASZOWA - NOWA INWESTYCJA MIESZKANIOWA.

Prezentowana inwestycja składa się z dwóch pięciopiętrowych budynków mieszkalnych. Budynki w kształcie litery "L" o eleganckiej i nowoczesnej architekturze. W ofercie posiadamy mieszkania 2,-3,-4-pokojowe w metrażach od 39 do 86 m2. Mieszkania posiadają balkon, loggie lub taras.
Mieszkania wyposażone w inteligentny system smart home.
Budynki wyposażone w windy, monitoring, wielostanowiskowy garaż podziemny, komórki lokatorskie, rowerowanie, stojaki na rowery i stację naprawy rowerów. W częściach wspólnych zaprojektowano patio, plac zabaw i strefę wypoczynkową z leżakami.
Mieszkania oddawane w stanie deweloperskim do własnej aranżacji, większość posiada dozwolone do zmian ściany wewnętrze. Istnieje również możliwość łącznia mieszkań.
Inwestycja zlokalizowana na Podgórzu w rejonie Płaszowa. W łatwy sposób można się dostać do centrum miasta, Rynku Głównego, Dworca Głównego, Kazimierza czy Zabłocia. W okolicy pętla tramwajowa, w odległości 740 m Zalew Bagry, wokół rozwinięta infrastruktura handlowo-usługowa.
Termin zakończenia inwestycji: III kwartał 2022 r.

Kontakt:
Marek Popiela + Zobacz kontakt48 518 967 677
Zobacz kontaktmarek@sadurscy.pl
::DODATKOWE INFORMACJE
Rodzaj budynku: budynek wielorodzinny Dozór budynku: monitoring Głośność: średnio głośne Widok: na osiedle Gaz: brak Woda: tak - miejska Dojazd: asfalt Otoczenie: działki zabudowane Ogrzewanie: miejskie Linie telefoniczne: TAK Komunikacja publ.: tramwaj, autobus Winda: TAK Liczba wind: 1 Rozkład: rozkładowe Usytuowanie: jednostronne Drzwi antywłamaniowe: TAK Naziemn. miejsc parking.: 25 Opłaty w czynszu: - Rodzaj mieszkania: jednopoziomowe Garaż: możliwość kupna Stan lokalu: deweloperski Okna: PCV Instalacje: nowe Balkon: jest Liczba balkonów: 1 Rok budowy: 2022 Liczba pokoi: 3 Liczba sypialni: 2 Podłogi pokoi: wylewka Ściany pokoi: zwykłe Typ kuchni: aneks kuchenny - połączony z salonem Rodzaj kuchni: otwarta na salon Podłoga kuchni: wylewka Typ łazienki: razem z wc Liczba łazienek: 1 Glazura łazienki: bez glazury Podłoga łazienki: wylewka Ściany łazienki: zwykłe Liczba przedpokoi: 1 Podłoga przedpokoi: wylewka Ściany przedpokoi: zwykłe
::LINK DO STRONY
https://sadurscy.pl/offer/BS2-MS-298271
::KONTAKT DO AGENTA
Dariusz Zieliński + Zobacz kontakt48 503-112-787 Zobacz kontaktdarek.zielinski@sadurscy.pl
::DANE BIURA
Oddział BS2, Rynek Pierwotny Przewóz
47 30-081 Kraków Zobacz kontakt12 630-90-45
Pośrednik odpowiedzialny zawodowo za wykonanie umowy pośrednictwa: Dariusz Sadurski (licencja nr: 803)
--------------------------
::GRATIS | Nasza prowizja zawiera: koszt przedwstępnej notarialnej umowy sprzedaży nieruchomości z rynku wtórnego. ::GWARANCJA | Gwarancja zwrotu zadatku. Więcej informacji na sadurscy.pl/zwrot-zadatku/

Ogrzewanie: Miejskie

Kontakt do agenta:
Dariusz Zieliński
Zobacz kontaktdarek.zielinski@sadurscy.pl
+ Zobacz kontakt48 503-112-787

Oceń ofertę


3


342 wydruk błąd schowek

Ostatnio przeglądane

 

 

 

pobieranie

Pobierz wzór umowy

Umowa przedwstępna sprzedaży

wybierz plik do pobrania
doc pdf

 

 

Deweloperzy

);