Prosimy, odblokuj wyświetlanie reklam w naszym serwisie, są one związane z rynkiem nieruchomości.
To dzięki nim masz darmowy dostęp do naszych treści.

Z pozdrowieniami zespół KRN.pl :)


telefon

wiadomość

mapa

Mieszkanie, Warszawa, Śródmieście

Mieszkanie na sprzedaż Warszawa (woj. Mazowieckie), Śródmieście

Lokalizacja:

Warszawa, Śródmieście, ul.

Powierzchnia:

69.00 m2

Cena:

2 145 000 zł

Dane szczegółowe

lokalizacja:
Mazowieckie, Warszawa, Śródmieście
typ obiektu:
mieszkanie na sprzedaż
cena:
2 145 000 zł
pokoi:
2
piętro:
7
ilość pięter w budynku:
14
powierzchnia:
69.00 m2
powierzchnia dodatkowa:
balkon
numer ogłoszenia:
469/3992/OMS
data dodania:
08-01-2026
data modyfikacji:
08-01-2026
jakość wypełnienia oferty:
82%

Szczegóły oferty

Oferta na wyłączność. Wynagrodzenie Agencji pokrywa Sprzedający.

Na sprzedaż piękne mieszkanie mieszczące się na 7. piętrze w Rezydencji Atelier samym sercu Warszawy, przy ul. Bagno 2, 100m od Placu Grzybowskiego i 100m od stacji metra Świętokrzyska i odrestaurowanej ulicy Próżnej - znanej z szerokiej oferty modnej gastronomii.

Idealna propozycja dla osób szukających miejsca do zamieszkania lub inwestycji, będącego unikalnym połączeniem ciszy, spokoju i wielkomiejskiego życia w sercu miasta.


W kilka minut spacerem można dotrzeć do Ogrodu Saskiego, Nowego Światu, Starego Miasta, a także Dworca Głównego, Centrum Handlowego Złote Tarasy Fabryki Norblina (sklepy, targ ekologiczny, kino, restauracje, kawiarnie), Pałacu Kultury i Nauki (m. in. teatry, kino, szkoła tańca) . W pobliżu pełna infrastruktura miejska - sklepy, piekarnie, apteki, punkty usługowe, bazarek (Hala Mirowska).
W dalsze rejony miasta można dostać się metrem, tramwajem lub autobusem.

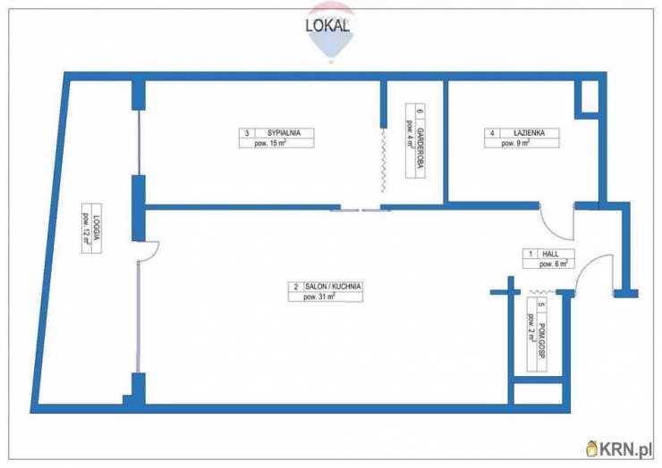
ROZKŁAD:
SALON (35m2) połączony, w pełni wyposażoną z KUCHNIĄ (meble wykonane na zamówienie z frontami lacobel, blat Corian wylewany w całości ze zlewem. Istnieje możliwość szlifowania blatu w celu odnowienia)
LOGGIA (12m2) z ekspozycją południowo-wschodnią, stanowiącą świetne miejsce do wypoczynku i na małe spotkania towarzyskie. Na podłodze deska tarasowa modrzew syberyjski impregnowany.
Dwie jasne rolety zewnętrzne typu screen, stanowiące doskonałą ochronę przed zbyt dużym nasłonecznieniem lub wiatrem.
SYPIALNIA (18,5m2) z GARDEROBĄ (meble na zamówienie)
ŁAZIENKA (7,5m2) z prysznicem i wanną, oraz toaletą i bidetem
HALL (5,5M2) z 2m2 pomieszczeniem gospodarczym (szafa na: buty, torby, walizki, chemię gospodarczą). Jedna ściana to lustro wykonane na zamówienie.

Apartament jest klimatyzowany (Gree) i wykończony został z najwyższej jakości materiałów: na podłodze deska naturalna - dąb bielony, na ścianach tapeta z tkaniny alcantara (materiał miękki jak zamsz, odporny na zabrudzenia, łatwy w utrzymaniu, nie pochłaniający zapachów), na podłodze balkonu - deska tarasowa - modrzew syberyjski.
Oświetlenie - lampy włoskie sprowadzane na zamówienie.
W oknach rolety sypialni rzymskie (możliwość czyszczenia)
Półki w garderobach wykonane na zamówienie.

Wejście do mieszkania zabezpieczone dodatkowym alarmem połączonym z ochroną (istnieje możliwość wyłączenia).

Budynek bardzo ładnie wykończony, z elewacją wykonaną z piakowca i granitu z kontrolą dostępu na każde piętro. Korytarze wyłożone wykładziną dywanową.

Miejsce postojowe w garażu podziemnym dodatkowo płatne (100 tys zł).
Miesięczny czynsz najmu za mieszkanie i garaż - 1670 zł.

Istnieje możliwość zakupu mieszkania z pełnym wyposażeniem ruchomym (dodatkowo płatnym).

Bardzo polecam!








W przypadku tej oferty wynagrodzenie naszego biura pokrywa właściciel nieruchomości.
Opis oferty zawarty na stronie internetowej sporządzany jest na podstawie oględzin nieruchomości oraz informacji uzyskanych od właściciela, może podlegać aktualizacji i nie stanowi oferty określonej w art. 66 i następnych K.C.

Oferta wysłana z programu dla biur nieruchomości ASARI CRM (asaricrm.com)



Kontakt:
Numer telefonu: Zobacz kontakt695 333 334
Adres email: Zobacz kontaktmagdalena.wierzbolowska@remax-polska.pl
Numer licencji pośrednika: 13104

Oceń ofertę


0


73 wydruk błąd schowek

Ostatnio przeglądane

 

 

 

pobieranie

Pobierz wzór umowy

Umowa przedwstępna sprzedaży

wybierz plik do pobrania
doc pdf

 

 

Deweloperzy

);