Prosimy, odblokuj wyświetlanie reklam w naszym serwisie, są one związane z rynkiem nieruchomości.
To dzięki nim masz darmowy dostęp do naszych treści.

Z pozdrowieniami zespół KRN.pl :)


telefon

wiadomość

mapa

Mieszkanie, Warszawa, Wola/Odolany, ul. Jana Kazimierza

Mieszkanie na sprzedaż Warszawa (woj. Mazowieckie), Wola/Odolany, ul. Jana Kazimierza

Lokalizacja:

Warszawa, Wola/Odolany, ul. Jana Kazimierza

Powierzchnia:

67.60 m2

Cena:

1 723 000 zł

Dane szczegółowe

lokalizacja:
Mazowieckie, Warszawa, Wola/Odolany, ul. Jana Kazimierza
typ obiektu:
mieszkanie na sprzedaż
cena:
1 723 000 zł
pokoi:
3
piętro:
5
ilość pięter w budynku:
7
powierzchnia:
67.60 m2
powierzchnia dodatkowa:
balkon
numer ogłoszenia:
N+857482
data dodania:
12-02-2026
data modyfikacji:
09-04-2026
jakość wypełnienia oferty:
82%

Szczegóły oferty

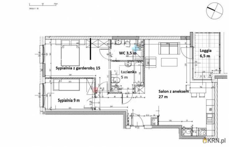
Zapraszam na prezentację przestronnego 3 pokojowego apartamentu w samym sercu warszawskiej Woli.Mieszkanie wykończone i gotowe do zamieszkana, wyposażone w sprzęt AGD- BOSCHW pełni rozkładowe mieszkanie wykańczane pod okiem architektaPowierzchnia mieszkania: 67,59 mÂ2- Salon z aneksem 27 mÂ2- Sypialnia z garderobą: 15 mÂ2- Prywatna wc 3,5 mÂ2- Pokój: 9 mÂ2- Łazienka: 5 mÂ2- Przedpokój: 8 mÂ2- Loggia 6,5 mÂ2Mieszkanie spełnia wszystkie wymagania pary oraz rodziny chcących mieszkać blisko centrum miasta.Dodatkowe informacje:Do mieszkania przynależy miejsce w garażu podziemnym płatne dodatkowo 80,000 zł.Zapraszam na prezentacje.Bartosz DąbrowaOsiedle Vola to butikowy apartamentowiec usytuowany na warszawskiej Woli, przy zbiegu ulic Studziennej i Jana Kazimierza zbudowany w latach 2022-2024. Oferuje 82 apartamenty. Na parterze znajdują się lokale usługowe.Budynek cechuje się innowacyjnym podejściem do projektowania i budowy mieszkań. Wyróżnia się oryginalnym kształtem i wysoką jakością materiałów. Harmonijna kolorystyka ścian i podłóg, połączona ze szlachetnymi materiałami, takimi jak drewno, stal nierdzewna i szkło, które nadają elegancji zarówno częściom wspólnym, jak i reprezentacyjnemu wejściu. Inwestycja posiada także wysoki parter o wysokości 286 cm, co nie tylko zwiększa możliwości aranżacyjne, ale również poprawia doświetlenie i mikroklimat wnętrz.

Oceń ofertę


9.99


620 wydruk błąd schowek

Ostatnio przeglądane

 

 

 

pobieranie

Pobierz wzór umowy

Umowa przedwstępna sprzedaży

wybierz plik do pobrania
doc pdf

 

 

Deweloperzy

);