Prosimy, odblokuj wyświetlanie reklam w naszym serwisie, są one związane z rynkiem nieruchomości.
To dzięki nim masz darmowy dostęp do naszych treści.

Z pozdrowieniami zespół KRN.pl :)


telefon

wiadomość

mapa

Mieszkanie, Kokotów

Mieszkanie na sprzedaż Kokotów (woj. Małopolskie)

Lokalizacja:

Kokotów, , ul.

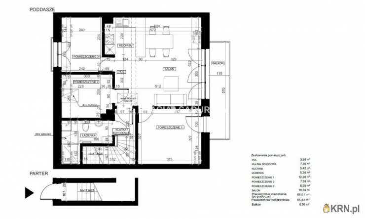
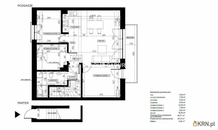
Powierzchnia:

65.78 m2

Cena:

590 000 zł

Dane szczegółowe

lokalizacja:
Małopolskie, Kokotów
typ obiektu:
mieszkanie na sprzedaż
cena:
590 000 zł
pokoi:
4
piętro:
parter
ilość pięter w budynku:
1
powierzchnia:
65.78 m2
numer ogłoszenia:
BS2-MS-311474-9
data dodania:
23-01-2026
data modyfikacji:
23-01-2026
jakość wypełnienia oferty:
76%

Szczegóły oferty


Prezentowana oferta to kameralne osiedle nowoczesnych mieszkań, położonych w doskonałej lokalizacji w Wieliczce
Nowoczesna architektura, kameralność oraz komfort to tylko jedne z nielicznych atutów wyróżniających tę inwestycje. Budynki wykonane z wysokiej jakości materiałów budowlanych z dbałością o najmniejsze detale.
Całość inwestycji obejmuje :
16 mieszkań na parterze z ogródkami ok 60m2
16 mieszkań na piętrze z balkonami
Pełen stan deweloperski: wszystkie instalacje, tynki, wylewki,
elewacja zewnętrzna , utwardzenia terenu, ogródki, ogrodzenie.
Położenie na granicy dwóch miast powoduje, iż jest to idealne miejsce dla osób pragnących ciszy i spokoju przy jednoczesnej bliskości centrum miasta. Jakość życia poprawi dopracowany w najmniejszych szczegółach projekt architektoniczny.
Doskonała komunikacja - bliskość Krakowa, obwodnicy miasta, drogi ekspresowej przechodzącej przez Wieliczkę. W pobliżu dużo terenów zielonych.
Zakończenie inwestycji: lipiec 2026
Zapraszam do kontaktu
Barbara Nazarewicz
tel: + Zobacz kontakt48 515 634 552
mail: Zobacz kontaktbasia@sdurscy.pl ::DODATKOWE INFORMACJE
Kategoria oferty: Mieszkania dla rodzin z dziećmi Rodzaj budynku: szeregowiec Widok: na osiedle Gaz: jest Woda: ciepła - piecyk gazowy Ogrzewanie: C.O. GAZOWE Winda: NIE Rozkład: dwustronne Opłaty wg liczników: woda, prąd, gaz Rodzaj mieszkania: jednopoziomowe Garaż: brak Stan lokalu: deweloperski Okna: PCV Instalacje: nowe Rok budowy: 2025 Liczba pokoi: 4 Liczba sypialni: 2
::LINK DO STRONY
https://sadurscy.pl/offer/BS2-MS-311474
::KONTAKT DO AGENTA
Barbara Nazarewicz + Zobacz kontakt48 515-634-552 Zobacz kontaktbasia@sadurscy.pl
::DANE BIURA
Oddział BS2, Rynek Pierwotny Przewóz
47 30-081 Kraków Zobacz kontakt12 630-90-45
--------------------------
::GRATIS | Nasza prowizja zawiera: koszt przedwstępnej notarialnej umowy sprzedaży nieruchomości z rynku wtórnego. ::GWARANCJA | Gwarancja zwrotu zadatku. Więcej informacji na sadurscy.pl/zwrot-zadatku/

Ogrzewanie: Gazowe

Kontakt do agenta:
Barbara Nazarewicz
Zobacz kontaktbasia@sadurscy.pl
+ Zobacz kontakt48 515-634-552

Oceń ofertę


0


40 wydruk błąd schowek

Ostatnio przeglądane

 

 

 

pobieranie

Pobierz wzór umowy

Umowa przedwstępna sprzedaży

wybierz plik do pobrania
doc pdf

 

 

Deweloperzy

);