Prosimy, odblokuj wyświetlanie reklam w naszym serwisie, są one związane z rynkiem nieruchomości.
To dzięki nim masz darmowy dostęp do naszych treści.

Z pozdrowieniami zespół KRN.pl :)


telefon

wiadomość

mapa

Mieszkanie, Kraków, Dębniki/Ruczaj, ul. Kobierzyńska

Mieszkanie na sprzedaż Kraków (woj. Małopolskie), Dębniki/Ruczaj, ul. Kobierzyńska

Lokalizacja:

Kraków, Dębniki/Ruczaj, ul. Kobierzyńska

Powierzchnia:

64.77 m2

Cena:

1 295 000 zł

Dane szczegółowe

lokalizacja:
Małopolskie, Kraków, Dębniki/Ruczaj, ul. Kobierzyńska
typ obiektu:
mieszkanie na sprzedaż
cena:
1 295 000 zł
pokoi:
3
piętro:
1
ilość pięter w budynku:
6
powierzchnia:
64.77 m2
powierzchnia dodatkowa:
balkon
numer ogłoszenia:
BS1-MS-312607-71
data dodania:
05-12-2025
data modyfikacji:
05-12-2025
jakość wypełnienia oferty:
94%

Szczegóły oferty


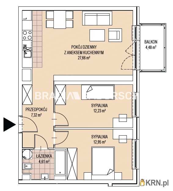
Na sprzedaż 3 pokojowe mieszkanie z balkonem, położone na nowym osiedlu na Ruczaju.
Mieszkanie usytuowane jest na pierwszym piętrze
w sześciopiętrowym bloku z 2022 roku, przy ulicy Kobierzyńskiej.
Na powierzchnię 64,77 m2 składa się :
- pokój dzienny połączony z aneksem kuchennym (27,66 m2) oraz wyjściem na balkon,
- dwie sypialnie (12,95 m2 12,23 m2,
- łazienka razem z WC (4,61m2),
- przedpokój (7,32m2).

Osiedle zamknięte blok z monitoringiem.
Mieszkanie wykończone i wyposażone w wysokim standardzie z dbałością o każdy szczegół. Meble w stałej zabudowie robione na wymiar.
Okna nowe PCV o ekspozycji na południowy- wschód.
Drzwi wejściowe antywłamaniowe.
Czynsz wraz z funduszem remontowym, wodą i ogrzewaniem wynosi 550 zł liczony na 1 osobe.

Dodatkowo płatny jest tylko prąd.

Ogrzewanie i ciepła woda - miejskie.
W budynku nie ma gazu.
Mieszkanie gotowe do zamieszkania bez ponoszenia nakładów finansowych.
Widok na osiedle

Mieszkanie jest wygodne i funkcjonalne, a okolica spokojna, zielona i bardzo przyjemna, z pełną infrastrukturą usługowo-handlową. W sąsiedztwie znajdują się liczne sklepy, restauracje, przedszkola, żłobki, szkoła, place zabaw, bank, przychodnia, a także rozległe tereny zielone z alejkami spacerowymi. Blisko jest do przystanków komunikacji miejskiej (autobusy, szybki tramwaj)
Doskonałe mieszkanie pary, a ze względu na sąsiedztwo Kampusu UJ, korporacji BUMA - idealne także jako inwestycja pod wynajem.
Obecny właściciel wynajmuje miejsce parkingowe w garażu podziemnym w budynku w cenie 350 zł/mies - istnieje możliwość przejęcia umowy najmu.

Biuro pomaga bezpiecznie przeprowadzić transakcję.
Zapraszamy do prezentacji.
Kontakt:
Małgorzata Baran-Michałowska
+ Zobacz kontakt48 782 390 455
Lub Zobacz kontaktgosia3@sadurscy.pl
Prezentacja nieruchomości po podpisaniu umowy pośrednictwa jest bezpłatna.
::DODATKOWE INFORMACJE
Rodzaj budynku: blok Dozór budynku: os. zamknięte Głośność: ciche Plac zabaw: TAK Widok: na inne budynki Gaz: brak Woda: ciepła - miejska Dojazd: asfalt Otoczenie: centrum miasta Ogrzewanie: C.O. miejskie Komunikacja publ.: autobus miejski, tramwaj Winda: TAK Liczba wind: 1 Rozkład: jednostronne Usytuowanie: jednostronne Drzwi antywłamaniowe: TAK Opłaty w czynszu: wywóz śmieci, wywóz nieczystości, woda ciepła, woda, Winda, monitoring, fundusz remontowy, Części wspólne, CO Opłaty wg liczników: prąd Rodzaj mieszkania: jednopoziomowe Garaż: miejsce garażowe Stan lokalu: bardzo dobry Okna: PCV Instalacje: dobre Balkon: średni Liczba balkonów: 1 Powierzchnia balkonów/tarasów [m2]: 3 Powierzchnia użytkowa [m2]: 64,7700 Rok budowy: 2022 Liczba pokoi: 3 Wysokość pomieszczeń [m]: 2,7000 Liczba sypialni: 2 Powierzchnia pokoi [m2]: 27,66 12,95 12,23 Podłogi pokoi: panele Ściany pokoi: gładzie gipsowe Wystawa okien - pokoje : Pd-Wsch Typ kuchni: aneks kuchenny - połączony z salonem Rodzaj kuchni: aneks kuchenny Podłoga kuchni: panele Typ łazienki: razem z wc Liczba łazienek: 1 Powierzchnia łazienki [m2]: 4,61 Glazura łazienki: glazura Podłoga łazienki: terakota Wyposażenie łazienki: WC, umywalka, lustro, kabina prysznicowa Ściany łazienki: glazura Liczba WC: 1 Glazura WC: glazura Podłoga WC: terakota Ściany WC: glazura Liczba przedpokoi: 1 Powierzchnia przedpokoi [m2]: 7,32 Podłoga przedpokoi: panele Ściany przedpokoi: gładzie gipsowe
::LINK DO STRONY
https://sadurscy.pl/offer/BS1-MS-312607
::KONTAKT DO AGENTA
Małgorzata Baran-Michałowska + Zobacz kontakt48 782-390-455 Zobacz kontaktgosia3@sadurscy.pl
::DANE BIURA
Oddział BS1, Kapelanka Kapelanka 1A/1 30-347 Kraków Zobacz kontakt12 429-25-12

Ogrzewanie: Miejskie

Kontakt do agenta:
Małgorzata Baran-Michałowska
Zobacz kontaktgosia3@sadurscy.pl
+ Zobacz kontakt48 782-390-455

Oceń ofertę


0


10 wydruk błąd schowek

Ostatnio przeglądane

 

 

 

pobieranie

Pobierz wzór umowy

Umowa przedwstępna sprzedaży

wybierz plik do pobrania
doc pdf

 

 

Deweloperzy

);