Prosimy, odblokuj wyświetlanie reklam w naszym serwisie, są one związane z rynkiem nieruchomości.
To dzięki nim masz darmowy dostęp do naszych treści.

Z pozdrowieniami zespół KRN.pl :)


telefon

wiadomość

mapa

Mieszkanie, Zielonki

Mieszkanie na sprzedaż Zielonki (woj. Małopolskie)

Lokalizacja:

Zielonki, , ul.

Powierzchnia:

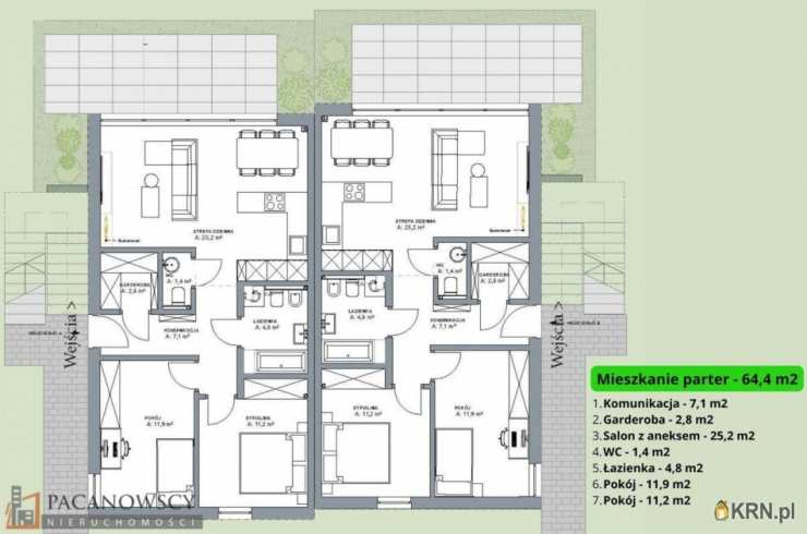
64.40 m2

Cena:

830 000 zł

Dane szczegółowe

lokalizacja:
Małopolskie, Zielonki
typ obiektu:
mieszkanie na sprzedaż
cena:
830 000 zł
pokoi:
3
piętro:
parter
powierzchnia:
64.40 m2
numer ogłoszenia:
PAC-MS-9028
data dodania:
02-12-2025
data modyfikacji:
02-12-2025
jakość wypełnienia oferty:
64%

Szczegóły oferty


! 0 % PROWIZJI - BRAK DODATKOWYCH KOSZTÓW!
MIEJSCE POSTOJOWE W CENIE!
Do sprzedania
atrakcyjne
trzypokojowe, jednopoziomowe mieszkanie
D1 zlokalizowane na nowo budowanym osiedlu w
Krakowie
-Prądniku Białym, rejon Witkowice.
Mieszkanie
o pow. 64,4m2
usytuowane na parterze w 3-kondygnacyjnym budynku w zabudowie bliźniaczej.
Nieruchomość położona na nowoczesnym, zamkniętym osiedlu, na które składa się 6 budynków mieszkalnych w zabudowie bliźniaczej.
Teren inwestycji w pełni zagospodarowany. B rak czynszu administracyjnego.

Media:
prąd, woda, gaz, szambo + przygotowana instalacja pod kanalizację.
Mieszkanie sprzedawane w stanie deweloperskim obejmującym:

podstawowy materiał budowlany: bloczki silikatowe,
podwójna izolacja stropu , z wełną mineralną 30 cm oraz płytą GK,
okna PCV 3-szybowe,
gwarantujące doskonałą izolację termiczną i akustyczną,
parapety zew.: stalowe,
elewacja: tynk silikonowy,
budynki ocieplone: styropian o gr. 20cm,
drzwi wejściowe antywłamaniowe,
pokrycie dachu: blachodachówka na rąbek,
tynki wew.: maszynowe, gipsowe, utwardzane,
ogrzewanie: gazowe, piec dwufunkcyjny,
ogrzewanie podłogowe,
zamontowane kasety pod rolety automatyczne,
teren osiedla ogrodzony,
taras: kostka brukowa,
miejsca parkingowe oraz dojścia do mieszkań
wyłożone kostką betonową,
teren wokół budynków wyrównany, obsiany trawą,
możliwość
postawienia komórki lokatorskiej na terenie osiedla,
światłowód.
Rozkład pomieszczeń:
komunikacja (7,1m2), garderoba (2,8m2), salon z aneksem (25,2m2), WC (1,4m2), łazienka (4,8m2), pokój (11,9m2), pokój (11,2m2)
LOKALIZACJA
Nieruchomość usytuowana w spokojnej okolicy w sąsiedztwie luźnej zabudowy domów jednorodzinnych. Dobra komunikacja z resztą miasta -
przystanek MPK zaledwie 270m dalej . Nieopodal: żłobek, sklep, myjnia samochodowa, szkoła językowa, paczkomat (350m), gabinet kosmetyczny, klub fitness, fizjoterapia,
Park Leśny Witkowice
(2,5km), szkoła, kościół, gabinety lekarskie (2,8km). Ponadto komunikację usprawnia
Północna Obwodnica Krakowa - ok. 2,5km

PLANOWANY ODBIÓR: czerwiec 2026 r.

Cena: 830.000 zł. Kupujący nie płaci 2 % podatku PCC.

Serdecznie polecamy i zachęcamy do bezpłatnej prezentacji !!! Więcej podobnych ofert na naszej stronie www.pacanowscy.pl
Kontakt do opiekuna oferty: Zobacz kontakt503-604-108 Mieszko Pacanowski
Pośrednik odpowiedzialny zawodowo za wykonanie umowy pośrednictwa: Mieszko Pacanowski (licencja nr: 21215)
Oferta wysłana z systemu Galactica Virgo
Ogrzewanie: Gazowe

Kontakt do agenta:
Mieszko Pacanowski
Zobacz kontaktmieszko@pacanowscy.pl
Zobacz kontakt504-112-605
Zobacz kontakt503-604-108

Oceń ofertę


3


194 wydruk błąd schowek

Ostatnio przeglądane

 

 

 

pobieranie

Pobierz wzór umowy

Umowa przedwstępna sprzedaży

wybierz plik do pobrania
doc pdf

 

 

Deweloperzy

);