Prosimy, odblokuj wyświetlanie reklam w naszym serwisie, są one związane z rynkiem nieruchomości.
To dzięki nim masz darmowy dostęp do naszych treści.

Z pozdrowieniami zespół KRN.pl :)


telefon

wiadomość

mapa

Mieszkanie, Kraków, Bieżanów-Prokocim

Mieszkanie na sprzedaż Kraków (woj. Małopolskie), Bieżanów-Prokocim

Lokalizacja:

Kraków, Bieżanów-Prokocim, ul.

Powierzchnia:

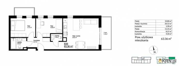
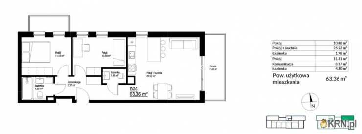
63.36 m2

Cena:

887 040 zł

Dane szczegółowe

lokalizacja:
Małopolskie, Kraków, Bieżanów-Prokocim
typ obiektu:
mieszkanie na sprzedaż
cena:
887 040 zł
pokoi:
3
piętro:
4
ilość pięter w budynku:
4
powierzchnia:
63.36 m2
numer ogłoszenia:
BS2-MS-300149-7
data dodania:
25-05-2024
data modyfikacji:
25-05-2024
jakość wypełnienia oferty:
76%

Szczegóły oferty


Bracia Sadurscy to oficjalny przedstawiciel handlowy dewelopera - kupując z nami nie płacisz prowizji i ukrytych kosztów.

NOWA INWESTYCJA DEWELOPERSKA

Kraków- Bieżanów

Prezentowana kameralna
inwestycja składa się z dwóch czteropiętrowych
budynków mieszkalnych.
Dostępne mieszkania 2, 3 oraz 4 pokojowe w metrażach od 32m2 do 72m2
DOSKONAŁA KOMUNIKACJA Z CENTRUM MIASTA:
TRAMWAJ:
250m
AUTOBUS : 134m
STACJA KOLEJOWA :800m
WĘZEŁ AUTOSTRADY : 1,5km
DODATKOWE INFORMACJE :

- miejsca postojowe w garażu podziemnym
- rowerowania i wózkownia
- całodobowy monitoring osiedla
- woda ciepła oraz ogrzewanie z sieci miejskiej MPEC
-wysoki standard inwestycji :m.in. drzwi wejściowe antywłamaniowe, windy cichobieżne.
- niskie koszty utrzymania
-lokale usługowe w części parterowej
- termin realizacji : II kw.2025r.
PO WIĘCEJ INFORMACJI ZAPRASZAM DO KONTAKTU
Barbara Nazarewicz
Tel: + Zobacz kontakt48 515-634-552
Zobacz kontaktbasia@sadurscy.pl
::DODATKOWE INFORMACJE
Rodzaj budynku: blok Dozór budynku: możliwy Głośność: ciche Widok: na osiedle Gaz: brak Woda: jest Dojazd: asfalt Otoczenie: zabudowa mieszana Ogrzewanie: C.O. miejskie Internet: TAK Komunikacja publ.: kolej, tramwaj, autobus Odległość do komunikacji publicznej [m]: 200 Odl. do sklepu [m]: 100 Odl. do szkoły [m]: 405 Odl. do przedszkola [m]: 400 Winda: TAK Liczba wind: 1 Rozkład: rozkładowe Usytuowanie: dwustronne Drzwi antywłamaniowe: TAK Przystosowania dla niepełnosprawnych: TAK Opłaty w czynszu: - Rodzaj mieszkania: jednopoziomowe Garaż: garaż podziemny Stan lokalu: deweloperski Okna: PCV Instalacje: nowe Balkon: jest Rok budowy: 2025 Liczba pokoi: 3 Wysokość pomieszczeń [m]: 2,6000 Liczba sypialni: 2 Podłogi pokoi: wylewka Ściany pokoi: zwykłe Typ kuchni: aneks kuchenny - połączony z salonem Rodzaj kuchni: otwarta na salon Podłoga kuchni: wylewka Typ łazienki: razem z wc Liczba łazienek: 1 Glazura łazienki: bez glazury Podłoga łazienki: wylewka Ściany łazienki: zwykłe Liczba przedpokoi: 1 Podłoga przedpokoi: wylewka Ściany przedpokoi: zwykłe
::LINK DO STRONY
https://sadurscy.pl/offer/BS2-MS-300149
::KONTAKT DO AGENTA
Barbara Nazarewicz + Zobacz kontakt48 515-634-552 Zobacz kontaktbasia@sadurscy.pl
::DANE BIURA
Oddział BS2, Rynek Pierwotny Królewska 67 30-081 Kraków Zobacz kontakt12 630-90-45
--------------------------
::GRATIS | Nasza prowizja zawiera: koszt przedwstępnej notarialnej umowy sprzedaży nieruchomości z rynku wtórnego. ::GWARANCJA | Gwarancja zwrotu zadatku. Więcej informacji na sadurscy.pl/zwrot-zadatku/

Ogrzewanie: Miejskie

Kontakt do agenta:
Barbara Nazarewicz
Zobacz kontaktbasia@sadurscy.pl
+ Zobacz kontakt48 515-634-552

Oceń ofertę


3


153 wydruk błąd schowek

Ostatnio przeglądane

 

 

 

pobieranie

Pobierz wzór umowy

Umowa przedwstępna sprzedaży

wybierz plik do pobrania
doc pdf

 

 

Deweloperzy

);