Prosimy, odblokuj wyświetlanie reklam w naszym serwisie, są one związane z rynkiem nieruchomości.
To dzięki nim masz darmowy dostęp do naszych treści.

Z pozdrowieniami zespół KRN.pl :)


telefon

wiadomość

mapa

Mieszkanie, Warszawa, Ursynów, ul. Komisji Edukacji Narodowej

Mieszkanie na sprzedaż Warszawa (woj. Mazowieckie), Ursynów, ul. Komisji Edukacji Narodowej

Lokalizacja:

Warszawa, Ursynów, ul. Komisji Edukacji Narodowej

Powierzchnia:

63.00 m2

Cena:

1 450 000 zł

Dane szczegółowe

lokalizacja:
Mazowieckie, Warszawa, Ursynów, ul. Komisji Edukacji Narodowej
typ obiektu:
mieszkanie na sprzedaż
cena:
1 450 000 zł
pokoi:
4
piętro:
4
ilość pięter w budynku:
5
powierzchnia:
63.00 m2
powierzchnia dodatkowa:
balkon
numer ogłoszenia:
24396
data dodania:
01-04-2026
data modyfikacji:
01-04-2026
jakość wypełnienia oferty:
88%

Szczegóły oferty

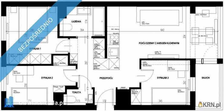
OGŁOSZENIE BEZPOŚREDNIE - BEZ PROWIZJI Do sprzedania bezpośrednio od właściciela mieszkanie 4 pokojowe o pow. 63.5m2 z balkonem, znajdujące się na 4 piętrze, w bloku z 2000r. z windą. To idealna propozycja dla rodzin z dziećmi oraz osób ceniących sobie funkcjonalną przestrzeń oraz lokalizację w pobliżu parków, szkół, przedszkoli, żłobków etc. Do mieszkania przynależy duża komórka lokatorska na poziomie -1 o pow. 4,53m2. Miejsce parkingowe płatne osobno 45.000 zł lub wynajem 300 zł. Lokalizacja → róg al. KEN oraz ul. Jeżewskiego. Mieszkanie jest ciche i słoneczne, okna z dwóch sypialni wychodzą na ul. Wańkowicza ( ekspozycja wschodnia), okna salonu i trzeciej sypialni na wewnętrzny dziedzinie (ekspozycja zachodnio-południowa). W sąsiedztwie liczne punkty handlowe i usługowe ( Sklepy spożywcze, bary, restauracje ), tereny zielone ( park przy Bażantarni, las Kabacki). W pobliżu przystanek metra - Kabaty - 5min na piechoty. UKŁAD POMIESZCZEŃ: Pokój dzienny z aneksem kuchennym ok. 20,5m2, sypialnia 1 ok. 10m2, sypialnia 2 ok. 8,5m2, sypialnia 3 ok. 8m2, łazienka 4,5m2, wc 1,5m2, korytarz ok. 8,5m2. STANDARD I WYPOSAŻENIE Mieszkanie jest świeżo po generalnym remoncie ( 2024r.) - nowe instalacje wod-kan, elektryka, ściany, podłogi. Podłoga wykończona jest drewnianą deska berlinecka, wysokiej jakości płytki na podłodze i w łazienkach, oraz gładzie na ścianach. Każde z pomieszczeń posiada kompletne, funkcjonalne zabudowy meblowe wykonywane na zamówienie. Projekt mieszkania wykonany był we współpracy z architektem. Wyposażenie pomieszczeń: Kuchnia w pełni wyposażona w sprzęt agd - lodówka z zamrażarką, kuchenka indukcyjna, piekarnik, okap, zmywarka. Salon: duża kanapa rozkładana, telewizor Samsung "The Frame" z okablowaniem w ścianie, komoda RTV, stół z krzesłami oraz miejsce do pracy - biurko. Sypialnia 1 - szafa w zabudowie dł. 240cm, oraz łóżko 160x200cm Sypialnia 2 - szafa w zabudowie dł. 80cm, komoda z lustrem, biurko oraz łózko 90x200cm Sypialnia 3 - szafa w zabudowie dł. 80cm, szafki scienne, biurko oraz łózko Przedpokój - szafy w zabudowie, które mieszczą przestrzeń na ubrania wierzchnie, szafę porządkową oraz szafę mieszczącą pralkę z suszarką. Łazienka - wyposażona jest w wannę z kolumna prysznicową oraz wannową, dużą umywalkę, wc w zabudowie, lustro, zabudowę szafek nad wc i pod umywalką Wc - wyposażone jest w małą umywalkę, wc w zabudowie wraz z szafkami. OPŁATY : Czynsz ok 850 zł ( przy użytkowaniu mieszkania przez 3 osoby) Ogłoszenie dodane do wielu portali nieruchomości przez portal www.odwlasciciela.pl

Oceń ofertę


0


29 wydruk błąd schowek

Ostatnio przeglądane

 

 

 

pobieranie

Pobierz wzór umowy

Umowa przedwstępna sprzedaży

wybierz plik do pobrania
doc pdf

 

 

Deweloperzy

);