Prosimy, odblokuj wyświetlanie reklam w naszym serwisie, są one związane z rynkiem nieruchomości.
To dzięki nim masz darmowy dostęp do naszych treści.

Z pozdrowieniami zespół KRN.pl :)


telefon

wiadomość

mapa

Mieszkanie, Wilczyce, ul. Wrocławska

Mieszkanie na sprzedaż Wilczyce (woj. Dolnośląskie), ul. Wrocławska

Lokalizacja:

Wilczyce, , ul. Wrocławska

Powierzchnia:

62.20 m2

Cena:

597 120 zł

Dane szczegółowe

lokalizacja:
Dolnośląskie, Wilczyce, ul. Wrocławska
typ obiektu:
mieszkanie na sprzedaż
cena:
597 120 zł
pokoi:
3
piętro:
1
ilość pięter w budynku:
1
powierzchnia:
62.20 m2
powierzchnia dodatkowa:
balkon
numer ogłoszenia:
217260
data dodania:
01-04-2026
data modyfikacji:
01-04-2026
jakość wypełnienia oferty:
82%

Szczegóły oferty

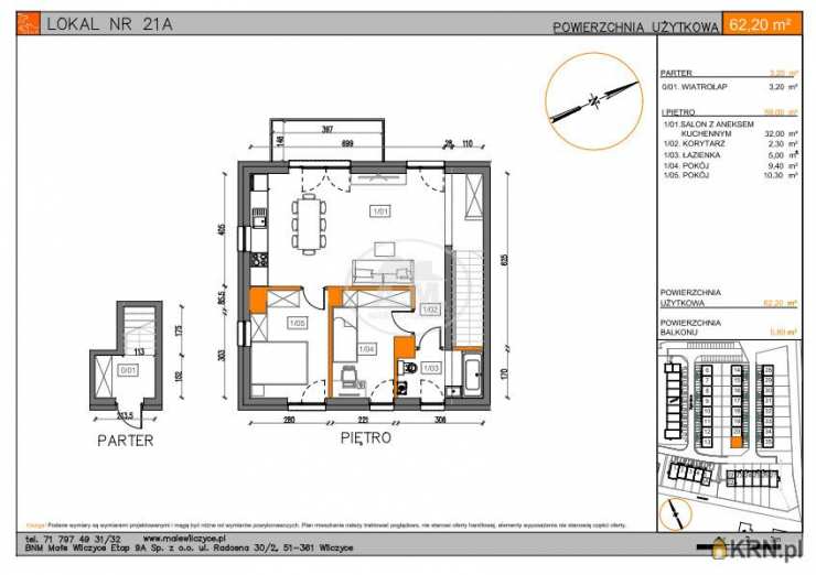
Remigiusz Pawlickitel. Zobacz kontakt577 677 808* kupujący nie płaci prowizji, ani PCC* stan deweloperski do wykończenia* Gotowe w III kwartale 2027* Mieszkanie w modułach szeregowychMieszkanie zlokalizowane na dwóch kondygnacjach. Na parterze znajduje się prywatne wejście, piętro to część dzienna z aneksem kuchennym oraz dwie sypialnie i łazienka; na nieużytkowym strychu - po własnej aranżacji można przechowywać sezonowe rzeczy. Wszystkie kondygnacje oprócz strychu wykończone są w standardzie deweloperskim.Mieszkanie wyróżniają bardzo niskie koszty utrzymania. salon z aneksem kuchennym 32,00korytarz 2,30łazienka 5,00pokój 9,40pokój 10,3059,00 mÂ2wiatrołap 3,20DodatkowoMIEJSCE POSTOJOWE Osiedle położone jest tuż przy północnej granicy Wrocławia, w bliskim otoczeniu rozległych terenów zielonych i rekreacyjnych. Ustronne usytuowanie osiedla gwarantuje ciszę i spokój.Cena praw niezbędnychZakup udziału w drodze106,92 złDostępne inne metraże i układytel. Zobacz kontakt577 677 808Remigiusz PawlickiW ramach usługi pośrednictwa, dla naszych klientów zapewniamy profesjonalnych doradców finansowych z ofertą kredytową wielu banków.Interesują cię inne lokalizacje? Zadzwoń, w swojej ofercie posiadam około 80 inwestycji na rynku pierwotnym we Wrocławiu!ZDJĘCIA PRZEDSTAWIAJĄ ETAP JUŻ GOTOWY.********Zamieszczona oferta nie stanowi oferty w rozumieniu Kodeksu Cywilnego, a dane w nich zawarte mają jedynie charakter informacyjny.21A

Oceń ofertę


0


25 wydruk błąd schowek

Ostatnio przeglądane

 

 

 

pobieranie

Pobierz wzór umowy

Umowa przedwstępna sprzedaży

wybierz plik do pobrania
doc pdf

 

 

Deweloperzy

);