Prosimy, odblokuj wyświetlanie reklam w naszym serwisie, są one związane z rynkiem nieruchomości.
To dzięki nim masz darmowy dostęp do naszych treści.

Z pozdrowieniami zespół KRN.pl :)


telefon

wiadomość

mapa

Mieszkanie, Łężyca, ul. Ciesielska

Mieszkanie na sprzedaż Łężyca (woj. Lubuskie), ul. Ciesielska

Lokalizacja:

Łężyca, , ul. Ciesielska

Powierzchnia:

61.70 m2

Cena:

481 260 zł

Dane szczegółowe

lokalizacja:
Lubuskie, Łężyca, ul. Ciesielska
typ obiektu:
mieszkanie na sprzedaż
cena:
481 260 zł
pokoi:
3
piętro:
3
ilość pięter w budynku:
4
powierzchnia:
61.70 m2
powierzchnia dodatkowa:
balkon, piwnica
media:
prąd, siła, woda
numer ogłoszenia:
2147/4KZ/MS
data dodania:
05-11-2025
data modyfikacji:
05-11-2025
jakość wypełnienia oferty:
88%

Szczegóły oferty

4 Kąty - Nieruchomości
Cena specjalna dla Klienta gotówkowego - 481 260 zł ! Oferta standard - 524 450 zł
Słoneczne 3-pokojowe mieszkanie z balkonem | Zielona Góra, ul. Łężyca-Ciesielska
Gotowe do odbioru, pełne światła i z niepowtarzalnym układem - to mieszkanie, które łączy nowoczesny standard z funkcjonalnością i stylem. Położone na 3. piętrze nowego budynku z windą, z ekspozycją od południa i północy, zapewnia idealne doświetlenie przez cały dzień. Dla osób gotowych ( środki własne ) na szybką decyzję - specjalna cena promocyjna: 481 260 zł (brutto).
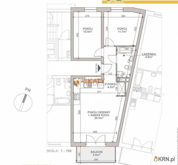
Układ pomieszczeń:
Salon z aneksem kuchennym - 28,5 m z wyjściem na balkon 5,8 m Sypialnia I - 12,5 m Sypialnia II - 11,7 m Łazienka - 4,8 m Przedpokój - 4,2 m
Układ jest klasyczny i funkcjonalny, a nietypowy kształt salonu daje duże możliwości aranżacyjne - idealny dla tych, którzy lubią wnętrza z charakterem.
Najważniejsze atuty:
Mieszkanie oddane do użytkowania - klucze możesz odebrać od razu
Słoneczny salon z ekspozycją południową
Nowoczesny budynek z windą i cichym wykończeniem części wspólnych
Brak podatku PCC (2%) - zakup na fakturę VAT
Atrakcyjna cena promocyjna: 481 260 zł (cena brutto)
Możliwość zakupu miejsca postojowego w hali garażowej
Ogólnodostępne miejsca parkingowe przy budynku
Idealna propozycja dla klienta gotówkowego lub inwestora
Lokalizacja - Łężyca-Ciesielska
Jedna z najchętniej wybieranych dzielnic Zielonej Góry - spokojna, zielona, z doskonałą infrastrukturą. W pobliżu znajdują się sklepy (Biedronka, Dino, Aldi), piekarnie, punkty usługowe, szkoła, przedszkole, żłobek i przystanek MZK. To okolica, która łączy miejski komfort z harmonią natury - idealna dla rodzin, par i osób szukających przestrzeni do życia z dala od zgiełku centrum.
Cena promocyjna: 481 260 zł (brutto) Miejsce w hali garażowej - opcjonalnie Kontakt: Alicja Halczak-Rożnowska
Zobacz kontakt602 677 789 | Zobacz kontaktalicja@4katy.zgora.pl
Zainteresowała Cię ta oferta? Zadzwoń i umów się na prezentację - to mieszkanie łączy nowoczesny komfort, funkcjonalny układ i świetną lokalizację!
Agent Alicja Halczak-Rożnowska
Zobacz kontakt602 677 789
Zobacz kontaktalicja@4katy.zgora.pl
:: Oferta wysłana z programu mediaRent (media-rent.eu) ::
Ogrzewanie: Miejskie

Informacje dodatkowe:
KUCHNIA:
POŁĄCZONA Z SALONEM,ANEKS KUCHENNY
ŁAZIENKA:
4,80
Internet: Jest

Kontakt do agenta:
Alicja Halczak-Rożnowska
Zobacz kontakt602677789
Zobacz kontaktalicja@4katy.zgora.pl

Oceń ofertę


0


159 wydruk błąd schowek

Ostatnio przeglądane

 

 

 

pobieranie

Pobierz wzór umowy

Umowa przedwstępna sprzedaży

wybierz plik do pobrania
doc pdf

 

 

Deweloperzy

);