Prosimy, odblokuj wyświetlanie reklam w naszym serwisie, są one związane z rynkiem nieruchomości.
To dzięki nim masz darmowy dostęp do naszych treści.

Z pozdrowieniami zespół KRN.pl :)


telefon

wiadomość

mapa

Mieszkanie, Kielce, Pod Telegrafem, ul. J. Karskiego

Mieszkanie na sprzedaż Kielce (woj. Świętokrzyskie), Pod Telegrafem, ul. J. Karskiego

Lokalizacja:

Kielce, Pod Telegrafem, ul. J. Karskiego

Powierzchnia:

61.67 m2

Cena:

740 040 zł

Dane szczegółowe

lokalizacja:
Świętokrzyskie, Kielce, Pod Telegrafem, ul. J. Karskiego
typ obiektu:
mieszkanie na sprzedaż
cena:
740 040 zł
pokoi:
3
piętro:
parter
ilość pięter w budynku:
3
powierzchnia:
61.67 m2
numer ogłoszenia:
PRP-MS-72632
data dodania:
30-03-2024
data modyfikacji:
06-04-2026
jakość wypełnienia oferty:
82%

Szczegóły oferty


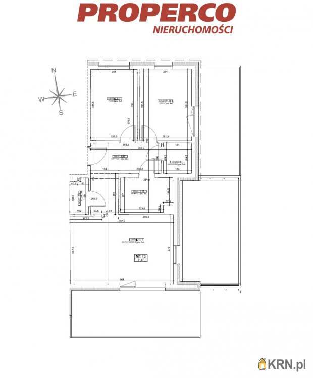
Nowe,
3-pokojowe
mieszkanie o powierzchni
61,67
m2
dostępne na
parterze
w budynku przy ul. Karskiego, na osiedlu Pod Telegrafem. Mieszkanie z dwoma
tarasami o łącznej
powierzchni 31,50m2 oraz dwoma ogródkami o łącznej powierzchni 74,69m2 .
W skład pomieszczeń wchodzą:
- kuchnia z salonem (21,11 m2),
- 2 sypialnie (9,93 m2, 11,06 m2),
- garderoba (2,61 m2),
- łazienka (5,16 m2),
- WC (1,95 m2),
- korytarz (9,85 m2).
Miejsca parkingowe w garażu podziemnym w cenie 50 000 PLN. Komórka lokatorska - 12 000 PLN. Ogrzewanie i ciepła woda za pomocą piecyka gazowego dwufunkcyjnego. W budynku przewidziano instalację światłowodową.

Inwestycja oddana do użytkowania.
Kameralny, trzypiętrowy blok, składający się z 22 lokali (wyłącznie mieszkalnych), o metrażach od 41,44 m2 do 75,76 m2, zlokalizowany na osiedlu Pod Telegrafem. Teren wokół budynku zostanie częściowo ogrodzony.
W pobliżu inwestycji znajduje się duży kompleks leśny, Góra Telegraf z wyciągiem narciarskim, tereny rekreacyjne, rezerwat Wietrznia.

>>Kupujący zwolniony z kosztów obsługi biura i podatku PCC. Wynagrodzenie biura pokrywa strona sprzedająca.<<

Sprzedaż inwestycji prowadzi biuro PROPERCO.pl Nieruchomości - Kielce, ul. Kozia 3A/1

Dane kontaktowe do agenta: Jacek Kotlarz, tel: Zobacz kontakt888 889 441, e-mail:
Zobacz kontaktjacek.kotlarz@properco.pl
For more information in English please call: Zobacz kontakt888 889 441, e-mail:
Zobacz kontaktjacek.kotlarz@properco.pl
--------------------------
Biuro Nieruchomości PROPERCO sp. z o.o. sp.k. współpracuje z doświadczonymi specjalistami finansowymi, oferującymi sprawdzenie zdolności kredytowej oraz przedstawienie oferty finansowania nieruchomości /// Informacje dotyczące opisu nieruchomości podane są przez właściciela, mają charakter wyłącznie informacyjny i mogą podlegać aktualizacji. Oferta dotycząca nieruchomości nie stanowi oferty określonej w art. 66 i następnych KC. ///Nasze usługi świadczymy w oparciu o umowę pośrednictwa, która gwarantuje Państwu opiekę naszego doradcy przez cały okres trwania współpracy. Za wykonaną usługę pobieramy wynagrodzenie zgodnie z warunkami uzgodnionymi w zawartej umowie. Możemy pośredniczyć na rzecz obu stron transakcji i pobierać wynagrodzenie od obu stron /// The real estate agency PROPERCO sp. z o.o. sp.k. collaborates with experienced financial specialists, offering creditworthiness assessment and presenting property financing offers. Information regarding property descriptions is provided by the owner, is purely informational, and may be subject to updates. The property offer does not constitute a specific offer as defined in Art. 66 and subsequent articles of the Civil Code. Our services are provided based on a brokerage agreement, ensuring you the care of our advisor throughout the entire collaboration period. We charge a fee for the services rendered according to the terms agreed upon in the concluded agreement. We may act as an intermediary for both parties to the transaction and charge remuneration from both parties.
Zapraszamy do siedziby naszego biura w Kielcach przy ul. Koziej 3a/1. /// We invite you to visit our office located in Kielce at 3a/1 Kozia Street.
Dane adresowe /// Address details:
PROPERCO sp. z o.o. sp.k ul. Kozia 3a/1 25-514 Kielce tel. kom: + Zobacz kontakt48 692-024-827 https://www.properco.pl/

Ogrzewanie: PIEC DWUFUNKCYJNY

Kontakt do agenta:
Jacek Kotlarz
Zobacz kontaktjacek.kotlarz@properco.pl
+ Zobacz kontakt48 41 310 90 71
+ Zobacz kontakt48 888 889 441

Oceń ofertę


9.99


1107 wydruk błąd schowek

Ostatnio przeglądane

 

 

 

pobieranie

Pobierz wzór umowy

Umowa przedwstępna sprzedaży

wybierz plik do pobrania
doc pdf

 

 

Deweloperzy

);