Prosimy, odblokuj wyświetlanie reklam w naszym serwisie, są one związane z rynkiem nieruchomości.
To dzięki nim masz darmowy dostęp do naszych treści.

Z pozdrowieniami zespół KRN.pl :)


telefon

wiadomość

mapa

Mieszkanie, Kraków, Bieżanów-Prokocim/Złocień

Mieszkanie na sprzedaż Kraków (woj. Małopolskie), Bieżanów-Prokocim/Złocień

Lokalizacja:

Kraków, Bieżanów-Prokocim/Złocień, ul.

Powierzchnia:

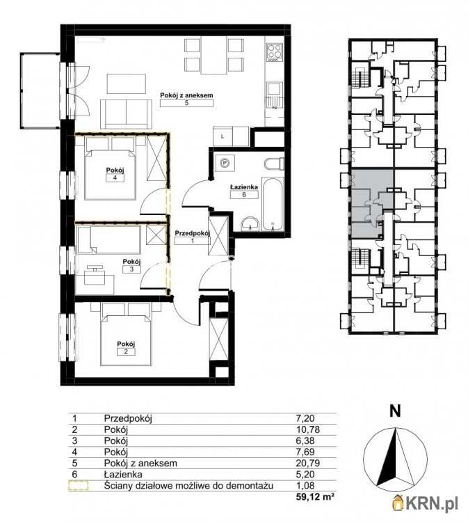
59.12 m2

Cena:

709 440 zł

Dane szczegółowe

lokalizacja:
Małopolskie, Kraków, Bieżanów-Prokocim/Złocień
typ obiektu:
mieszkanie na sprzedaż
cena:
709 440 zł
pokoi:
4
piętro:
3
ilość pięter w budynku:
4
powierzchnia:
59.12 m2
media:
woda
numer ogłoszenia:
BS2-MS-314557-135
data dodania:
03-04-2026
data modyfikacji:
03-04-2026
jakość wypełnienia oferty:
82%

Szczegóły oferty


ZŁOCIEŃ - nowoczesne osiedle mieszkaniowe
Przedstawiamy wyjątkowe osiedle położone w południowo-wschodniej części miasta, które łączy nowoczesną architekturę, komfort mieszkania i bliskość zielonych przestrzeni.
O mieszkaniach
W ofercie znajdują się funkcjonalne dwu-, trzy- i czteropokojowe mieszkania o powierzchni od 33 do 60 m². Lokale na parterze posiadają prywatne ogródki, a mieszkania na wyższych piętrach - przestronne balkony. Najwyższe kondygnacje wyróżniają się dużymi tarasami na dachu, zapewniającymi relaks i piękne widoki. Budynek powstaje w tradycyjnej technologii i oferowany jest w stanie deweloperskim, z tynkami, wylewkami i kompletnymi instalacjami.
Architektura i infrastruktura osiedla
Osiedle składa się z czteropiętrowych budynków o nowoczesnej, jasnej elewacji. Teren jest ogrodzony, z zaplanowaną zielenią, wspólną strefą rekreacyjną oraz drogami dojazdowymi. Budynki wyposażone są w cichobieżne windy, a miejsca postojowe znajdują się zarówno w garażu podziemnym, jak i w garażach na parterze.
Okolica i udogodnienia
W sąsiedztwie osiedla znajduje się bogata infrastruktura handlowo-usługowa: sklepy spożywcze (Biedronka, Lidl, Żabka), drogeria Rossmann, restauracje, kawiarnie, a w odległości 2 km - bazarek miejski. Do centrum handlowego „Targowe” dojazd zajmuje około 15 minut.

Edukacja i opieka medyczna
W okolicy działają przedszkola i żłobki, m.in. „Akademia Smyka” i „Krasnal”, szkoły podstawowe nr 111 i 124 oraz XXV Liceum Ogólnokształcące im. Stefana Żeromskiego (ok. 3 km). Dostępna jest również opieka medyczna, apteki i przychodnie rodzinne.
Sport i rekreacja
Osiedle oferuje łatwy dostęp do siłowni plenerowych, fitness centrów i basenów, umożliwiając aktywny tryb życia.
Komunikacja
Doskonała lokalizacja zapewnia szybki dojazd do różnych części miasta dzięki bliskości ulic Agatowej, Henryka i Karola Czeczów oraz drogi krajowej S7. W odległości ok. 450 m znajduje się przystanek autobusowy linii 125 i 183, a stacja kolejowa - 2,3 km od osiedla.
Kontakt
Marek Popiela
+ Zobacz kontakt48 518 967 677
Zobacz kontaktmarek@sadurscy.pl

::DODATKOWE INFORMACJE
Rodzaj budynku: budynek wielorodzinny Dozór budynku: brak Głośność: ciche Widok: na inne budynki Gaz: brak Woda: tak - miejska Dojazd: asfalt Otoczenie: zabudowa wielorodzinna Ogrzewanie: C.O. miejskie Linie telefoniczne: TAK Komunikacja publ.: autobus miejski, tramwaj Winda: TAK Liczba wind: 1 Rozkład: rozkładowe Usytuowanie: jednostronne Drzwi antywłamaniowe: TAK Opłaty w czynszu: - Rodzaj mieszkania: jednopoziomowe Garaż: możliwość kupna Stan lokalu: deweloperski Okna: PCV Instalacje: nowe Rok budowy: 2026 Liczba pokoi: 4 Liczba sypialni: 3 Podłogi pokoi: wylewka Ściany pokoi: zwykłe Typ kuchni: aneks kuchenny - połączony z salonem Rodzaj kuchni: otwarta na salon Podłoga kuchni: wylewka Typ łazienki: razem z wc Liczba łazienek: 1 Glazura łazienki: bez glazury Podłoga łazienki: wylewka Ściany łazienki: zwykłe Liczba przedpokoi: 1 Podłoga przedpokoi: wylewka Ściany przedpokoi: zwykłe
::LINK DO STRONY
https://sadurscy.pl/offer/BS2-MS-314557
::KONTAKT DO AGENTA
Marek Popiela + Zobacz kontakt48 518-967-677 Zobacz kontaktmarek@sadurscy.pl
::DANE BIURA
Oddział BS2, Rynek Pierwotny Przewóz
47 30-081 Kraków Zobacz kontakt12 630-90-45
--------------------------
::GRATIS | Nasza prowizja zawiera: koszt przedwstępnej notarialnej umowy sprzedaży nieruchomości z rynku wtórnego. ::GWARANCJA | Gwarancja zwrotu zadatku. Więcej informacji na sadurscy.pl/zwrot-zadatku/

Ogrzewanie: Miejskie

Kontakt do agenta:
Marek Popiela
Zobacz kontaktmarek@sadurscy.pl
+ Zobacz kontakt48 518-967-677

Oceń ofertę


0


26 wydruk błąd schowek

Ostatnio przeglądane

 

 

 

pobieranie

Pobierz wzór umowy

Umowa przedwstępna sprzedaży

wybierz plik do pobrania
doc pdf

 

 

Deweloperzy

);