Prosimy, odblokuj wyświetlanie reklam w naszym serwisie, są one związane z rynkiem nieruchomości.
To dzięki nim masz darmowy dostęp do naszych treści.

Z pozdrowieniami zespół KRN.pl :)


telefon

wiadomość

mapa

Mieszkanie, Namysłów

Mieszkanie na sprzedaż Namysłów (woj. Opolskie)

Lokalizacja:

Namysłów, , ul.

Powierzchnia:

58.00 m2

Cena:

458 000 zł

Dane szczegółowe

lokalizacja:
Opolskie, Namysłów
typ obiektu:
mieszkanie na sprzedaż
cena:
458 000 zł
pokoi:
3
piętro:
2
powierzchnia:
58.00 m2
numer ogłoszenia:
KOS-MS-4894
data dodania:
23-04-2026
data modyfikacji:
23-04-2026
jakość wypełnienia oferty:
58%

Szczegóły oferty


Kupujący nie płacą prowizji.
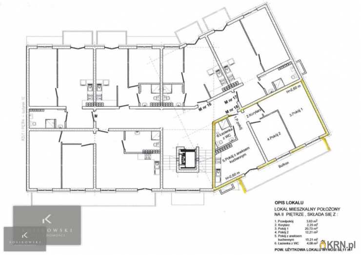
58,11 m² | MIESZKANIE POD KLUCZ - Gotowe do zamieszkania | W pełni umeblowane | Nowe budownictwo z windą
Szukasz nowego mieszkania, do którego możesz wejść od razu z walizką?
Ta oferta jest dla Ciebie!
Prezentowane mieszkanie o powierzchni
58,11 m²
zostało wykończone
pod klucz z wysokiej jakości materiałów
i jest w pełni umeblowane oraz wyposażone.
W skład mieszkania wchodzą:

przestronny salon z aneksem kuchennym
2 komfortowe pokoje
łazienka
przedpokój
duży balkon
- idealny do relaksu

STANDARD I WYPOSAŻENIE

nowoczesna zabudowa kuchenna + sprzęt AGD
umeblowany salon i sypialnia
stylowa, w pełni wykończona łazienka
rolety zewnętrzne
zapewniające prywatność i komfort
wysokiej jakości podłogi, drzwi i oświetlenie
funkcjonalny układ pomieszczeń

Kupujesz - wprowadzasz się - mieszkasz. Bez remontu i stresu.

INWESTYCJA

nowoczesne budynki z
windami
lokale usługowe na parterze
estetyczne części wspólne
spokojna, rozwijająca się okolica

LOKALIZACJA
Mieszkanie zlokalizowane jest w atrakcyjnej części miasta Namysłów co zapewnia:

bliskości sklepów, szkoły i usług
szybkiego dojazdu do centrum
spokojnej okolicy z dostępem do natury

DODATKOWE INFORMACJE

brak PCC (2%) - oszczędzasz 9 160 złotych!
brak prowizji przy zakupie
możliwość zakupu
garażu
znajdującego się w przyziemiu bloku: 60 000 zł brutto
dostępne miejsca postojowe na zamkniętym osiedlu

Zamieszkaj w nowym, w pełni urządzonym mieszkaniu bez czekania i wykańczania lub kup jako świetną inwestycję.
Skontaktuj się i umów na prezentację! Kliencie nic nam nie zapłacisz, a otrzymasz:

kilkaset ofert w jednym miejscu,
pomoc przy załatwieniu kredytu na zakup nieruchomości,
rzetelną informacje o każdej ofercie,
sprawdzony stan prawny nieruchomości,
możliwość obejrzenia każdej oferty w uzgodnionym wspólnie terminie,
uzgodnione warunki i dokumentację do zawarcia umowy przedwstępnej,
pełną dokumentację i koordynację
aktu notarialnego,
protokoły przekazania nieruchomości i liczników,
zapłatą dla nas ma być Twój uśmiech.
Oferujemy skuteczną, nieodpłatną pomoc w uzyskaniu kredytu na zakup nieruchomości. Zapraszamy do naszego biura w celu omówienia szczegółów oferty oraz ustalenia dogodnego dla Państwa terminu prezentacji.
Nota prawna: Informacje dotyczące opisu nieruchomości podane są przez właściciela, mają charakter wyłącznie informacyjny i mogą podlegać aktualizacji. Oferta dotycząca nieruchomości stanowi zaproszenie do rokowań zgodnie z art. 71 Kodeksu Cywilnego i nie stanowi oferty określonej w art. 66 i następnych KC.
Adres www oferty
https://www.kosikowski.com.pl/ad/4966/
Pośrednik odpowiedzialny zawodowo za wykonanie umowy pośrednictwa: Kosikowski Nieruchomości - Biuro Namysłów (licencja nr: 11884)
Oferta wysłana z systemu Galactica Virgo
Ogrzewanie: Gazowe

Kontakt do agenta:
Kosikowski Nieruchomości - Biuro Namysłów
Zobacz kontaktkontakt@kosikowski.com.pl
Zobacz kontakt774105060

Oceń ofertę


0


38 wydruk błąd schowek

Ostatnio przeglądane

 

 

 

pobieranie

Pobierz wzór umowy

Umowa przedwstępna sprzedaży

wybierz plik do pobrania
doc pdf

 

 

Deweloperzy

);