Prosimy, odblokuj wyświetlanie reklam w naszym serwisie, są one związane z rynkiem nieruchomości.
To dzięki nim masz darmowy dostęp do naszych treści.

Z pozdrowieniami zespół KRN.pl :)


telefon

wiadomość

mapa

Mieszkanie, Rumia

Mieszkanie na sprzedaż Rumia (woj. Pomorskie)

Lokalizacja:

Rumia, , ul.

Powierzchnia:

56.58 m2

Cena:

475 272 zł

Dane szczegółowe

lokalizacja:
Pomorskie, Rumia
typ obiektu:
mieszkanie na sprzedaż
cena:
475 272 zł
pokoi:
3
piętro:
3
ilość pięter w budynku:
4
powierzchnia:
56.58 m2
powierzchnia dodatkowa:
balkon
numer ogłoszenia:
DJ901509
data dodania:
20-10-2023
data modyfikacji:
16-03-2026
jakość wypełnienia oferty:
76%

Szczegóły oferty

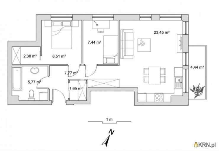
Odbiór wrzesień 2026r.Nowoczesna i stylowa inwestycja z 2026r. w Rumi z windą.Mieszkanie o pow.całkowitej 56,58mÂ2 składa się z : salonu z aneksem kuchennym (23,45mÂ2), dwóch pokoi ( 8.51mÂ2, 7,44mÂ2), łazienki (5,77mÂ2), dwóch garderób (2,38mÂ2 i 1,65mÂ2) i przedpokoju ( 7,77mÂ2).Z salonu wyjście nabalkon (4,44 mÂ2).Standard wykończenia:DEWELOPERSKI.Na osiedlu będzie rekreacyjne patio, plac zabaw i miejsca parkingowe.Ekspozycja okienna z północy, wschodu i zachodu.Dogodna lokalizacja!Spokojna i dobrze SKOMUNIKOWANA okolica!Wokół tereny zielone i spacerowe.Łatwy i sprawny dojazd do każdej części Trójmiasta.W pobliżu przystanki autobusowe.Nieopodal topowe hipermarkety, sklepy i wszelkie punkty handlowo-usługowe.Istnieje możliwość zakupu garażu w cenie 96.000 PLN o pow. 17,38mÂ2 .Spójny wygląd inwestycji trafi nawet do wymagającego klienta!Okazyjna i niepowtarzalna oferta!Oferta przedstawia wizualizację.W tej inwestycji dostępne jest także wiele innych mieszkań o pow. od 44,49mÂ2 do 56,97mÂ2!

Oceń ofertę


9.99


1452 wydruk błąd schowek

Ostatnio przeglądane

 

 

 

pobieranie

Pobierz wzór umowy

Umowa przedwstępna sprzedaży

wybierz plik do pobrania
doc pdf

 

 

Deweloperzy

);