Prosimy, odblokuj wyświetlanie reklam w naszym serwisie, są one związane z rynkiem nieruchomości.
To dzięki nim masz darmowy dostęp do naszych treści.

Z pozdrowieniami zespół KRN.pl :)


telefon

wiadomość

mapa

Mieszkanie, Gdańsk, Letnica

Mieszkanie na sprzedaż Gdańsk (woj. Pomorskie), Letnica

Lokalizacja:

Gdańsk, Letnica, ul.

Powierzchnia:

56.17 m2

Cena:

1 149 000 zł

Dane szczegółowe

lokalizacja:
Pomorskie, Gdańsk, Letnica
typ obiektu:
mieszkanie na sprzedaż
cena:
1 149 000 zł
pokoi:
3
piętro:
1
ilość pięter w budynku:
5
powierzchnia:
56.17 m2
powierzchnia dodatkowa:
balkon
numer ogłoszenia:
HEX472400
data dodania:
27-12-2025
data modyfikacji:
27-12-2025
jakość wypełnienia oferty:
76%

Szczegóły oferty

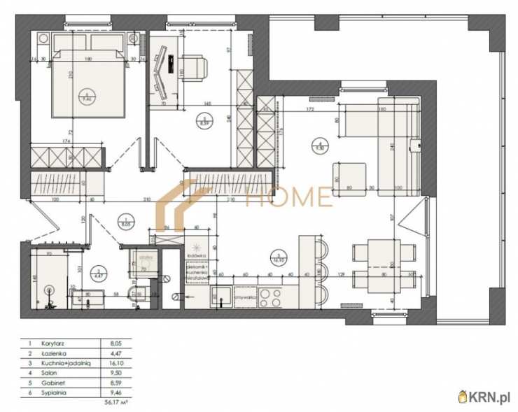
Na sprzedaż komfortowe 3-pokojowe mieszkanie, o powierzchni 56,17 m2, mieszczące się na 1 piętrze, 5- piętrowego budynku będącego częścią osiedlaPorto dewelopera Robyg stanowiącego zespół nowoczesnych budynków usytuowanych na granicy Letnicy i Brzeźna. Doskonała lokalizacja zapewnia bliskość świetnie rozwiniętej infrastruktury miejskiej, a także sieci komunikacyjnej i drogowej, gwarantującej sprawny dojazd zarówno do centrum miasta, gdańskich plaż oraz Obwodnicy Trójmiasta, tak środkami komunikacji miejskiej, jak i własnym samochodem. Do najbliższego przystanku autobusowego i przystanku tramwajowego dotrzemy spacerem w ciągu kilku minut (przystanek tramwajowy ok. 700 m, przystanek autobusowy ok. 400 m). Osiedle położone niedaleko urokliwej plaży oraz Parku Brzeźnieńskiego, do których dotrzemy spacerem w ciągu ok. 8 minut (rowerem ok. 3 minuty).W pobliżu istnieje bogate zaplecze handlowo usługowe (szkoła, przedszkole, żłobek, boisko, place zabaw, sklepy spożywcze, piekarnia, apteka, restauracje i wiele innych przydatnych punktów usługowych). Mieszkanie znajduje się w jednej z najbardziej perspektywicznych inwestycji nad morzem w Gdańsku. OsiedlePorto wyróżnia się:• dużą ilością zieleni i pięknie zagospodarowanym patio,• kameralną niską zabudową zapewniającą spokój i prywatność,• komfortową siłowniądostępną włącznie dla mieszkańców,• idealnym położeniem: 8 minut spacerem do plaży, 3 minuty rowerem, szybki wyjazd na obwodnicę i 12-15 minut do Starówki.Budynek wykończony został z wykorzystaniem solidnych materiałów, wyposażony jest w cichobieżne windy i domofon, a także dostępną wyłącznie dla mieszkańców siłownię.Lokal składa się z:✅ Przestronnego salonu z aneksem kuchennym (ok. 26 m2) z wyjściem na duży (ok. 17 m2) słoneczny i zapewniający prywatność balkon/loggię, z widokiem na estetycznie zagospodarowane osiedlowe tereny zielone.✅ Komfortowej głównej sypialni z pełnowymiarową pojemną zabudową i tapicerowanym łóżkiem.✅ Dodatkowego pokoju - doskonałego na gabinet, drugą sypialnię lub pokój dziecięcy.✅ Eleganckiej łazienki z prysznicem i WC, wyposażonej w wysokiej klasy armaturę.✅ Przedpokoju z głębokimi, pojemnymi szafami w zabudowie.✅ Praktycznej komórki lokatorskiej- stanowiącej dodatkową przestrzeń do przechowywania.Całość została wykończona według aranżacji architekta w nowoczesnym, ale przytulnym stylu, z dbałością o każdy detal i przy wykorzystaniu wysokiej klasy materiałówSalon:✅Drewniany sufit i belki z litego dębu, fornirowane orzechem amerykańskim.✅Zabudowa RTV na wymiar, z płyty stolarskiej malowanej na antracyt, granitowy blat 4 cm.✅Stolik kawowy z litego bielonego dębu.✅Zasłony i firany szyte na wymiar z wysokiej jakości materiałów.Kuchnia:✅Fronty z płyty stolarskiej - malowane i fornirowane orzechem amerykańskim.✅Korpusy szafek i półki na wino z litego drewna.✅Blat granitowy, trwały i łatwy w utrzymaniu.✅Uchwyty z litego drewna, malowane w stylu szczotkowanej stali.✅Wysokiej klasy sprzęt AGDSypialnia:✅ Pojemna szafa, wykonana z płyty stolarskiej fornirowanej orzechem amerykańskim, z oświetleniem LED.✅ Ściany wykończone płytą stolarską z fornirowanym orzechem i czarnym hartowanym szkłem.✅ Łóżko na wymiar, z wysokiej jakości tapicerką.✅ Zabudowa grzejnika (z możliwością dostępu) z litego drewna- orzech amerykański.Gabinet:✅ Wykonane na zamówienie biurko z bardzo dużym blatem wykonanym z podwójnej płyty stolarskiej fornir amerykański, wykończone litym drewnem✅ Różnorodne oświetlenie gwarantujące komfort pracy o każdej porze dnia i nocyŁazienka:✅Prysznic ze spadkiem i odpływem liniowym, kabina wykonana na zamówienie z hartowanego szkła.✅ Szafa malowana na kolor ścian, z miejscem na pralkę.✅ Duże lustro, z podświetleniem LED, które dodaje przestrzeni i elegancji.✅ Ściany malowane farbami całkowicie odpornymi na wodę.Drzwi: ✅ Ukryte, malowane na kolor ścian, harmonijnie wkomponowane w wystrój wnętrza.Podłogi:✅ Wysokiej jakości paneleQuick-Step.Do mieszkania przynależy praktyczna, komórka lokatorska oraz miejsce postojowe w hali garażowej, dodatkowo płatne: 50 000,00 zł.Mieszkanie ze względu na swoje usytuowanie, duże przeszklenia i odległość od innych budynków jest doskonale doświetlone. Powyższe zapewnia dużą ilość naturalnego światła zarówno w pomieszczeniu, jak i na przylegającym do niego balkonie/loggi. Umiejscowienie lokalu w budynku zapewnia dużą prywatność oraz przyjemny niezakłócony widok z okien.Lokalizacja:Budynek, w którym znajduje się prezentowany lokal stanowi część nowoczesnego, doskonale skomunikowanego osiedla usytuowanego na gdańskiej Letnicy na granicy z Brzeźnem:✅ Komunikacja miejsca: przystanek tramwajowy i autobusowy w zasięgu kilkuminutowego spaceru (tramwaj ok. 700 m, autobus ok. 400 m)✅ Dojazd: wygodny dostęp do Obwodnicy Trójmiasta, centrum Gdańska, a także gdańskich plaż.✅ Otoczenie: bliskość plaży i Parku Brzeźnieńskiego, dużo zieleni, place zabaw, boisko, tereny spacerowe i rekreacyjne.✅ Zaplecze handlowo- usługowe: w pobliżu: szkoła, przedszkole, żłobek, sklepy spożywcze, piekarnia, apteka, restauracja, przychodnia lekarska i inne najpotrzebniejsze punkty usługowe.Podsumowanie:• Powierzchnia 56,17 mÂ2 - przestronne, 3-pokojowe wnętrze,• 1. piętro,• Duży balkon/loggia (17 m2) z widokiem na osiedlową zieleń,• Wysokiej jakości wykończenie,• Zabudowy stolarskie na wymiar• Nowoczesne AGD• Dobre nasłonecznienie,• Komórka lokatorska,• 8 minut do plaży,• Doskonała komunikacja - kilkuminutowy spacer do przystanków komunikacji miejskiej, sprawny dojazd do obwodnicy i centrum,• Pełna infrastruktura - sklepy, usługi, szkoła, przedszkole• Cena: 1150 000,00 zł + miejsce postojowe w hali garażowej (50 000,00 zł)Mieszkanie jest czyste i schludne, wykończone wysokiej klasy materiałami, gotowe do zamieszkania. Nie wymaga żadnego wkładu finansowego. Jest idealne do zamieszkania, a ponadto stanowić może skuteczną lokatę kapitału.To wyjątkowe mieszkanie czeka na nowego właściciela! Zapraszam do kontaktu i umówienia się na prezentację.

Oceń ofertę


9.99


321 wydruk błąd schowek

Ostatnio przeglądane

 

 

 

pobieranie

Pobierz wzór umowy

Umowa przedwstępna sprzedaży

wybierz plik do pobrania
doc pdf

 

 

Deweloperzy

);