Prosimy, odblokuj wyświetlanie reklam w naszym serwisie, są one związane z rynkiem nieruchomości.
To dzięki nim masz darmowy dostęp do naszych treści.

Z pozdrowieniami zespół KRN.pl :)


telefon

wiadomość

mapa

Mieszkanie, Warszawa, Praga Północ

Mieszkanie na sprzedaż Warszawa (woj. Mazowieckie), Praga Północ

Lokalizacja:

Warszawa, Praga Północ, ul.

Powierzchnia:

55.25 m2

Cena:

939 000 zł

Dane szczegółowe

lokalizacja:
Mazowieckie, Warszawa, Praga Północ
typ obiektu:
mieszkanie na sprzedaż
cena:
939 000 zł
pokoi:
3
piętro:
1
ilość pięter w budynku:
3
powierzchnia:
55.25 m2
powierzchnia dodatkowa:
balkon, komórka lokatorska
numer ogłoszenia:
510/3992/OMS
data dodania:
21-04-2026
data modyfikacji:
21-04-2026
jakość wypełnienia oferty:
82%

Szczegóły oferty

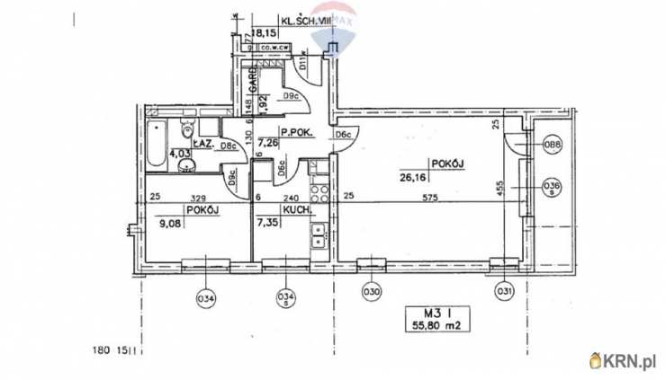
3‑pokojowe mieszkanie z garderobą, dużym balkonem i garażem – gotowe do wprowadzenia.

Szukasz mieszkania, które łączy wygodę nowoczesnego wnętrza z energią Pragi‑Północ?

To 3‑pokojowe mieszkanie przy ul. Siedleckiej to idealna propozycja dla osób, które chcą mieszkać komfortowo, funkcjonalnie i blisko wszystkiego, co ważne na co dzień. Gotowe do wprowadzenia, z dużym balkonem, garderobą, miejscem w garażu i komórką lokatorską — świetne zarówno dla rodziny, jak i jako pewna inwestycja pod wynajem.

Najważniejsze ATUTY mieszkania:
• 3 pokoje – idealny układ dla rodziny, pary lub inwestora
• salon z nowoczesnym aneksem kuchennym – meble i zabudowa w cenie
• oddzielna garderoba (ok. 2 mÂ2) – rzadko spotykana w tej okolicy
• duży balkon (ok. 6 mÂ2) – idealny na poranną kawę
• łazienka + funkcjonalny hol
• komórka lokatorska – dodatkowo płatna 15 000 zł
• szerokie, murowane miejsce w garażu podziemnym – dodatkowo 45 000 zł (idealne dla dużego auta, bez ryzyka obicia drzwi)

OSIEDLE i BUDYNEK:
• teren ogrodzony, bezpieczny i zadbany
• dwa wejścia do budynku – od ul. Siedleckiej i Łochowskiej
• spokojna, kameralna okolica z szybkim dostępem do centrum

LOKALIZACJA – wszystko w zasięgu spaceru:
Mieszkanie znajduje się w jednej z najbardziej dynamicznie rozwijających się części Pragi‑Północ. Wokół pełna infrastruktura, kultura, zieleń i świetna komunikacja.

KOMUNIKACJA:
• przystanek tramwajowy – 300 m
• szybki dojazd do centrum i metra

ZIELEŃ i REKREACJA:
• zielone skwery – 200 m
• tereny sportowe – 500 m
• plac zabaw – 500 m

KULTURA i ROZRYWKA:
• Teatr Mała Warszawa – 200 m
• Teatr Oratorium – 450 m
• Centrum Praskie Koneser – 1,3 km

EDUKACJA:
• szkoła podstawowa – 200 m
• szkoła średnia – 400 m
• szkoła muzyczna – 700 m
• uczelnia wyższa – 250 m

To lokalizacja, która daje przewagę — niezależnie od tego, czy kupujesz dla siebie, czy inwestycyjnie.



W przypadku tej oferty wynagrodzenie naszego biura pokrywa właściciel nieruchomości.
Opis oferty zawarty na stronie internetowej sporządzany jest na podstawie oględzin nieruchomości oraz informacji uzyskanych od właściciela, może podlegać aktualizacji i nie stanowi oferty określonej w art. 66 i następnych K.C.

Oferta wysłana z programu dla biur nieruchomości ASARI CRM (asaricrm.com)



Kontakt:
Numer telefonu: Zobacz kontakt507 071 887
Adres email: Zobacz kontaktagnieszka.szczepaniak@remax-polska.pl
Numer licencji pośrednika: 13104

Oceń ofertę


0


16 wydruk błąd schowek

Ostatnio przeglądane

 

 

 

pobieranie

Pobierz wzór umowy

Umowa przedwstępna sprzedaży

wybierz plik do pobrania
doc pdf

 

 

Deweloperzy

);