Prosimy, odblokuj wyświetlanie reklam w naszym serwisie, są one związane z rynkiem nieruchomości.
To dzięki nim masz darmowy dostęp do naszych treści.

Z pozdrowieniami zespół KRN.pl :)


telefon

wiadomość

mapa

Mieszkanie, Warszawa, Praga Północ

Mieszkanie na sprzedaż Warszawa (woj. Mazowieckie), Praga Północ

Lokalizacja:

Warszawa, Praga Północ, ul.

Powierzchnia:

55.25 m2

Cena:

939 000 zł

Dane szczegółowe

lokalizacja:
Mazowieckie, Warszawa, Praga Północ
typ obiektu:
mieszkanie na sprzedaż
cena:
939 000 zł
pokoi:
3
piętro:
1
ilość pięter w budynku:
3
powierzchnia:
55.25 m2
powierzchnia dodatkowa:
balkon, komórka lokatorska
numer ogłoszenia:
480/3992/OMS
data dodania:
09-02-2026
data modyfikacji:
12-03-2026
jakość wypełnienia oferty:
82%

Szczegóły oferty

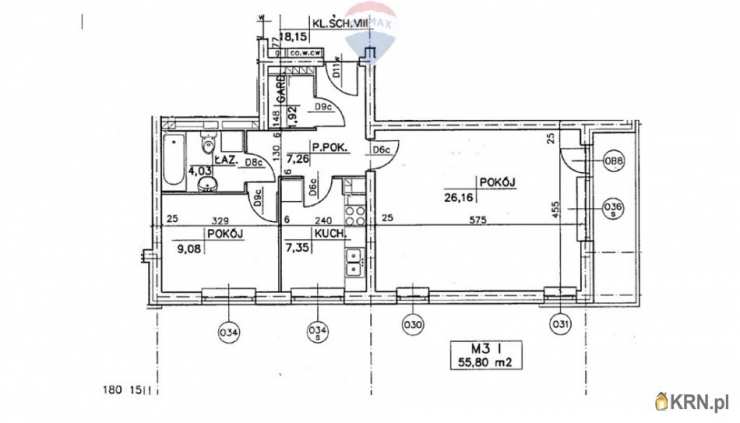
Na sprzedaż mieszkanie przy ulicy Siedleckiej w Warszawie o powierzchni 55,80 m2 z aneksem kuchennym, miejscem parkingowym i komórką lokatorską.
Wyjątkowa lokalizacja w bezpośredniej bliskości znajdują się tereny zielone i sportowe, przedszkole i szkoły na każdym poziomie, punkty handlowo-usługowe, kawiarnie i komunikacja miejska. Nieruchomość położona jest na pierwszym piętrze, posiada księgę wieczystą i można kupić ją na kredyt.

OPIS MIESZKANIA:
- salon z aneksem kuchennym - powierzchnia ponad 26 m2 - meble i sprzęt AGD w cenie mieszkania
- osobna garderoba o powierzchni ok 2 m2
- dwa pokoje - obecnie stanowiące sypialnie
- przedpokój z miejscem na pojemną szafę
- łazienka z WC z wanną i umywalką
- balkon z widokiem na zieleń

Do mieszkania przynależy komórka lokatorska - płatna dodatkowo – 15 000 zł
Miejsce parkingowe w garażu podziemnym - płatne dodatkowo – 45 000 zł

Aktualny czynsz i opłaty eksploatacyjne ok 850 zł miesięcznie.

LOKALIZACJA:
Mieszkanie znajduję się zaledwie 3 min pieszo od przystanku tramwajowego i autobusowego. Niedaleko znajdują się tereny zielone: skwer Judyty, skwer Radziwiłłów, Park Michałowski. W bliskiej odległości znajdziemy sklepy, szkoły w tym muzyczna, lokale usługowe czy tereny sportowe.
Teatr Mała Warszawa 200m. Teatr Oratorium 450 m. Centrum Praskie Koneser 1,3 km.

To mieszkanie to idealne połączenie komfortu, świetnej lokalizacji i zielonego otoczenia.
Doskonałe dla rodzin, par, singli oraz inwestorów.

Kupujący nie płaci prowizji!
Zapraszam na prezentację osoby zainteresowane oraz Agentów z Klientami.




W przypadku tej oferty wynagrodzenie naszego biura pokrywa właściciel nieruchomości.
Opis oferty zawarty na stronie internetowej sporządzany jest na podstawie oględzin nieruchomości oraz informacji uzyskanych od właściciela, może podlegać aktualizacji i nie stanowi oferty określonej w art. 66 i następnych K.C.

Oferta wysłana z programu dla biur nieruchomości ASARI CRM (asaricrm.com)



Kontakt:
Numer telefonu: Zobacz kontakt507 071 887
Adres email: Zobacz kontaktagnieszka.szczepaniak@remax-polska.pl
Numer licencji pośrednika: 13104

Oceń ofertę


0


165 wydruk błąd schowek

Ostatnio przeglądane

 

 

 

pobieranie

Pobierz wzór umowy

Umowa przedwstępna sprzedaży

wybierz plik do pobrania
doc pdf

 

 

Deweloperzy

);