Prosimy, odblokuj wyświetlanie reklam w naszym serwisie, są one związane z rynkiem nieruchomości.
To dzięki nim masz darmowy dostęp do naszych treści.

Z pozdrowieniami zespół KRN.pl :)


telefon

wiadomość

mapa

Mieszkanie, Kraków, Wzgórza Krzesławickie, ul. Polskich

Mieszkanie na sprzedaż Kraków (woj. Małopolskie), Wzgórza Krzesławickie, ul. Polskich

Lokalizacja:

Kraków, Wzgórza Krzesławickie, ul. Polskich

Powierzchnia:

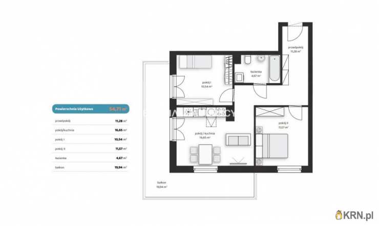
54.71 m2

Cena:

809 708 zł

Dane szczegółowe

lokalizacja:
Małopolskie, Kraków, Wzgórza Krzesławickie, ul. Polskich
typ obiektu:
mieszkanie na sprzedaż
cena:
809 708 zł
pokoi:
3
piętro:
2
ilość pięter w budynku:
4
powierzchnia:
54.71 m2
powierzchnia dodatkowa:
piwnica
numer ogłoszenia:
BS2-MS-312456-5
data dodania:
19-12-2025
data modyfikacji:
19-12-2025
jakość wypełnienia oferty:
88%

Szczegóły oferty


Nowoczesne mieszkania na Prądniku Białym - komfort, funkcjonalność i zieleń
Zapraszamy do zapoznania się z ofertą nowoczesnego, kameralnego osiedla zlokalizowanego
na Prądniku Białym w Krakowie . To wyjątkowe miejsce stworzone z myślą o osobach, które cenią
komfort życia, funkcjonalne rozwiązania i bliskość natury , nie rezygnując z wygody miejskiej infrastruktury.

Oferta mieszkań
W sprzedaży dostępne są
mieszkania od 1 do 4 pokoi , o powierzchni od
28 do 73 m² .
Każdy lokal posiada
balkon, taras lub ogródek , stanowiący doskonałą przestrzeń do wypoczynku w otoczeniu zieleni.
Duże przeszklenia gwarantują
naturalne doświetlenie wnętrz , a możliwość wykończenia
„pod klucz”
lub w ramach
projektu indywidualnego
pozwala stworzyć przestrzeń idealnie dopasowaną do potrzeb mieszkańców.

Udogodnienia dla mieszkańców

garaż podziemny i miejsca postojowe naziemne

komórki lokatorskie, wózkownia i stojaki na rowery

stacje ładowania samochodów elektrycznych

cichobieżne windy
oraz
wideodomofon
zapewniające komfort i bezpieczeństwo

Lokalizacja i komunikacja
Osiedle położone jest w miejscu z doskonałym dostępem do komunikacji i miejskiej infrastruktury:

przystanek autobusowy -
1 minuta spacerem (ok. 9 m)

przystanek tramwajowy przy ul. Pachońskiego -
ok. 5 minut samochodem

centrum Krakowa -
ok. 18 minut jazdy autem

W pobliżu znajdują się:

Lidl (374 m)
i
Biedronka (427 m)

przedszkole - 68 m ,
żłobek - 635 m

Galeria Bronowice i IKEA - ok. 8 minut samochodem

dogodny dojazd do
IV Obwodnicy Krakowa - 10 minut autem
Otoczenie i rekreacja
Mieszkańcy mogą cieszyć się bliskością terenów zielonych sprzyjających aktywnemu wypoczynkowi:

Dolina Prądnika
- ok. 15 minut pieszo (1,2 km)

Park Białoprądnicki im. T. Kościuszki
- ok. 20 minut pieszo (1,5 km)

To inwestycja, która łączy
zalety spokojnej, zielonej okolicy
z
wygodnym dostępem do miejskiej infrastruktury i komunikacji .
Miejsce stworzone, byś mógł poczuć się
naprawdę „jak w domu”
i cieszyć się każdym dniem w harmonii z otoczeniem.
Zapraszam do kontaktu
Dariusz Zieliński
tel
Zobacz kontakt503-112-787
email
Zobacz kontaktdarek.zielinski@sadurscy.pl
::DODATKOWE INFORMACJE
Kategoria oferty: Mieszkania dla rodzin z dziećmi Rodzaj budynku: apartamentowiec Dozór budynku: możliwy Głośność: średnio głośne Widok: na osiedle Gaz: brak Woda: ciepła - miejska Dojazd: ASFALTOWA Otoczenie: osiedle Ogrzewanie: C.O. miejskie Komunikacja publ.: MPK, miejska, autobus miejski, tramwaj, autobus Winda: TAK Rozkład: 1 Usytuowanie: jednostronne Rodzaj mieszkania: jednopoziomowe Garaż: jest Piwnica: TAK Stan lokalu: deweloperski Okna: PCV Instalacje: nowe Rok budowy: 2025 Liczba pokoi: 3 Liczba sypialni: 2 Typ kuchni: aneks kuchenny Rodzaj kuchni: aneks kuchenny Typ łazienki: nowa
::LINK DO STRONY
https://sadurscy.pl/offer/BS2-MS-312456
::KONTAKT DO AGENTA
Dariusz Zieliński + Zobacz kontakt48 503-112-787 Zobacz kontaktdarek.zielinski@sadurscy.pl
::DANE BIURA
Oddział BS2, Rynek Pierwotny Przewóz
47 30-081 Kraków Zobacz kontakt12 630-90-45
Pośrednik odpowiedzialny zawodowo za wykonanie umowy pośrednictwa: Dariusz Sadurski (licencja nr: 803)
--------------------------
::GRATIS | Nasza prowizja zawiera: koszt przedwstępnej notarialnej umowy sprzedaży nieruchomości z rynku wtórnego. ::GWARANCJA | Gwarancja zwrotu zadatku. Więcej informacji na sadurscy.pl/zwrot-zadatku/

Ogrzewanie: Miejskie

Kontakt do agenta:
Dariusz Zieliński
Zobacz kontaktdarek.zielinski@sadurscy.pl
+ Zobacz kontakt48 503-112-787

Oceń ofertę


0


8 wydruk błąd schowek

Ostatnio przeglądane

 

 

 

pobieranie

Pobierz wzór umowy

Umowa przedwstępna sprzedaży

wybierz plik do pobrania
doc pdf

 

 

Deweloperzy

);