Prosimy, odblokuj wyświetlanie reklam w naszym serwisie, są one związane z rynkiem nieruchomości.
To dzięki nim masz darmowy dostęp do naszych treści.

Z pozdrowieniami zespół KRN.pl :)


telefon

wiadomość

mapa

Mieszkanie, Pelplin

Mieszkanie na sprzedaż Pelplin (woj. Pomorskie)

Lokalizacja:

Pelplin, , ul.

Powierzchnia:

54.66 m2

Cena:

92 230 zł

Dane szczegółowe

lokalizacja:
Pomorskie, Pelplin
typ obiektu:
mieszkanie na sprzedaż
cena:
92 230 zł
pokoi:
2
piętro:
parter
powierzchnia:
54.66 m2
numer ogłoszenia:
12283/3186/OMS
data dodania:
23-04-2026
data modyfikacji:
23-04-2026
jakość wypełnienia oferty:
58%

Szczegóły oferty

RPŚ.680.5.2026.KR

Pelplin, 20 kwietnia, 2026 r.

O G Ł O S Z E N I E


Na podstawie art. 30 ust. 2 pkt. 3 ustawy z dnia 8 marca 1990 r. o samorządzie gminnym (Dz. U. z 2025 r. poz. 1153 ze zmianami), art. 37 ust. 1, art. 38 ust. 1 i 2, art. 40 ust. 1 pkt. 1 ustawy z dnia 21 sierpnia 1997 r., o gospodarce nieruchomościami (Dz. U z 2026 poz. 399 ze zmianami) oraz §3 ust. 1 rozporządzenia Rady Ministrów z dnia 14 września 2004 r., w sprawie sposobu i trybu przeprowadzania przetargów oraz rokowań na zbycie nieruchomości (Dz. U. 2021 poz. 2213) §8 Uchwały XVII/150/12 Rady Miejskiej w Pelplinie z dnia 29 marca 2012r., w sprawie zasad gospodarowania nieruchomościami stanowiącymi własność Gminy Pelplin (Dziennik Urzędowy Województwa Pomorskiego z dnia 27 kwietnia 2012r., poz. 1534), Burmistrz Miasta i Gminy Pelplin ogłasza pierwszy nieograniczony przetarg ustny na sprzedaż prawa własności niżej opisanej nieruchomości:

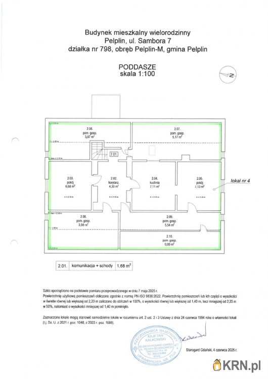
1. OPIS NIERUCHOMOŚCI: lokal mieszkalny nr 4, mieszczący się w budynku mieszkalnym wielorodzinnym w Pelplinie przy ul. Sambora 7 wraz z udziałem w nieruchomości gruntowej oraz częściach wspólnych budynku - Zobacz kontakt3351/10000. Lokal mieszkalny o powierzchni użytkowej 54,66 m2, położony na dwóch kondygnacjach tj na parterze i poddaszu (I i II kondygnacja naziemna budynku). Lokal składa się z korytarza i WC położonych na parterze budynku oraz z 2 pokoi, kuchni, korytarza, komunikacji ze schodami i pięciu pomieszczeń gospodarczych mieszczących się na poddaszu. Do przedmiotowego lokalu przypisane są dwa pomieszczenia gospodarcze o łącznej powierzchni 8,05 m2 mieszczące się w budynku gospodarczym. Budynek w którym mieści się przedmiotowy lokal jest obiektem parterowym z poddaszem mieszkalnym, bez podpiwniczenia. Budynek przyłączony jest sieci gazowej, elektroenergetycznej, wodociągowej, kanalizacji sanitarnej i teletechnicznej.
Obecny zły stan techniczny lokalu nie pozwala na jego zamieszkanie, wymaga przeprowadzenia kompleksowych prac remontowych. Dla lokalu mieszkalnego nie została urządzona księga wieczysta.

1) Lokal udostępniony będzie do oglądania w czasie publikacji ogłoszenia w godzinach pracy Urzędu, po uprzednim uzgodnieniu terminu pod numerem telefonu: Zobacz kontakt58 536-12-61 wew.12

2. WARUNKI PRZETARGU:
1) CENA WYWOŁAWCZA – 92 230,00 zł (słownie: siedemdziesiąt dziewięćdziesiąt dwa tysiące dwieście trzydzieści 00/100)

2) Na podst. art. 43 ust. 1 pkt 10b i art. 29a ust. 8 ustawy z dnia 11 marca 2004 r. o podatku od towarów i usług (t. j. Dz. U. 2025, poz. 775 ze zm.) sprzedaż prawa własności do lokalu mieszkalnego zwolniona jest z podatku VAT.

3) Minimalne postąpienie przetargowe – 922,00 zł (słownie: dziewięćset dwadzieścia dwa 00/100).

4) Warunkiem przystąpienia do przetargu jest wniesienie wadium w pieniądzu w wysokości 18 000,00 zł (słownie: osiemnaście tysięcy 00/100) na rachunek Urzędu Miasta i Gminy w Pelplinie BS Skórcz 0/Pelplin Zobacz kontakt62 8342 000 Zobacz kontakt9 2000 0358 2000 0004, w terminie do dnia 15 maja 2026 r. W tytule przelewu należy wpisać „wadium na przetarg RPŚ.680.5.2026.KR” oraz podać nazwę podmiotu, który będzie nabywał nieruchomość. Za termin wniesienia wadium uważa się dzień wpływu wadium na wskazany rachunek bankowy.

5) Przetarg odbędzie się dnia 21 maja 2026 r., o godz. 8.30 w Urzędzie Miasta i Gminy w Pelplinie przy ul. Plac Grunwaldzki 4, II piętro budynku, sala ślubów.

6) Warunkiem udziału w przetargu jest:
a) przedstawienie Komisji przetargowej dowodu niesienia wadium;
b) osobiste stawiennictwo w dniu przetargu z dowodem tożsamości lub reprezentowanie przez pełnomocnika na podstawie pełnomocnictwa z poświadczeniem podpisu;
c) w przypadku udziału w przetargu osób pozostających w związku małżeńskim, które obowiązuje ustawowa wspólność majątkowa konieczne jest stawiennictwo obojga małżonków lub w przypadku udziału jednego z nich przedłożenie pisemnej zgody współmałżonka z poświadczeniem podpisu; w przypadku rozdzielności majątkowej - przedstawienie dokumentu ustanawiającego rozdzielność;
d) w przypadku przedsiębiorców, przedłożenie aktualnego wypisu z właściwego dla danego podmiotu rejestru oraz dokumentów upoważniających do działania w ich imieniu.
e) w przypadku cudzoziemcy (w rozumieniu ustawy z dnia 24 marca 1920r. o nabywaniu nieruchomości przez cudzoziemców) w przypadku wygrania przetargu, zobowiązani są przed zawarciem umowy notarialnej, uzyskać zgodę Ministra Spraw Wewnętrznych i Administracji na nabycie nieruchomości w przypadku, gdy zgoda jest wymagana.

7) Wadium wpłacone przez uczestnika, który przetarg wygra, zalicza się na poczet ceny nabycia.

8) O wysokości postąpienia decydują uczestnicy przetargu, z tym, że postąpienie nie może wynosić mniej niż 1% ceny wywoławczej z zaokrągleniem w górę do pełnych dziesiątek złotych.

9) Osobom, które nie wygrały przetargu, wadium zwraca się niezwłocznie po odwołaniu lub zamknięciu przetargu, nie później niż przed upływem 3 dni od dnia odwołania, zamknięcia, unieważnienia przetargu lub zakończenia przetargu wynikiem negatywnym.

10) Nabywca przejmuje lokal mieszkalny w stanie istniejącym. Z chwilą zawarcia umowy notarialnej przechodzą na kupującego wszelkie korzyści i ciężary związane z lokalem, w tym obowiązek ponoszenia kosztów zarządu.

11) Lokal znajduje się w budynku administrowanym przez Spółkę Pelkom.

12) Jeżeli osoba ustalona jako nabywca nieruchomości objętej niniejszym przetargiem nie przystąpi bez usprawiedliwienia do zawarcia umowy w miejscu i w terminie podanych w zawiadomieniu, Burmistrz Miasta i Gminy Pelplin, może odstąpić od zawarcia umowy, a wpłacone wadium nie podlega zwrotowi.

13) Nabywca ponosi koszty notarialne i sądowe związane z zawarciem umowy sprzedaży.

14) Burmistrz Miasta i Gminy Pelplin zastrzega sobie prawo odwołania lub unieważnienia przetargu z uzasadnionych przyczyn.

15) Dodatkowych informacji dotyczących przetargu udzielają pracownicy Referatu Gospodarki Przestrzennej i Środowiska, Urzędu Miasta i Gminy w Pelplinie, 83-130 Pelplin, Plac Grunwaldzki 4, pokój nr 30B, tel. nr Zobacz kontakt58 536-12-61 wew. 12.

16) Niniejsze ogłoszenie podlega wywieszeniu na tablicy ogłoszeń w siedzibie Urzędu Miasta i Gminy na okres od dnia 20 kwietnia 2026 r. do dnia 21 maja 2026 r., oraz na stronie internetowej bip.pelplin.pl.


W załączeniu:
1. Rzut lokalu oraz piwnicy;
2. Zdjęcia lokalu


Burmistrz Miasta i Gminy Pelplin
/-/ Mirosław Chyła




Kontakt:
Urząd Miasta i Gminy Pelplin
tel: Zobacz kontakt58 536-12-61 wew. 12
Zobacz kontaktkrog@pelplin.pl


Oferta wysłana z programu dla biur nieruchomości ASARI CRM (asaricrm.com)



Kontakt:
Numer telefonu: Zobacz kontakt58 536-12-61 wew. 12
Adres email: Zobacz kontaktkrog@pelplin.pl

Oceń ofertę


0


16 wydruk błąd schowek

Ostatnio przeglądane

 

 

 

pobieranie

Pobierz wzór umowy

Umowa przedwstępna sprzedaży

wybierz plik do pobrania
doc pdf

 

 

Deweloperzy

);