Prosimy, odblokuj wyświetlanie reklam w naszym serwisie, są one związane z rynkiem nieruchomości.
To dzięki nim masz darmowy dostęp do naszych treści.

Z pozdrowieniami zespół KRN.pl :)


telefon

wiadomość

mapa

Mieszkanie, Kraków, Podgórze/Płaszów, ul. Myśliwska

Mieszkanie na sprzedaż Kraków (woj. Małopolskie), Podgórze/Płaszów, ul. Myśliwska

Lokalizacja:

Kraków, Podgórze/Płaszów, ul. Myśliwska

Powierzchnia:

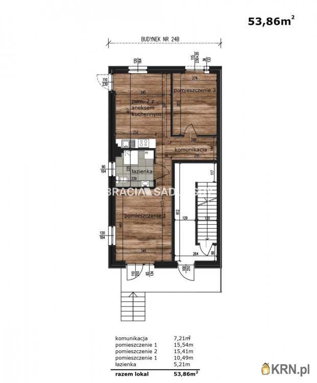
53.86 m2

Cena:

859 000 zł

Dane szczegółowe

lokalizacja:
Małopolskie, Kraków, Podgórze/Płaszów, ul. Myśliwska
typ obiektu:
mieszkanie na sprzedaż
cena:
859 000 zł
pokoi:
3
piętro:
parter
ilość pięter w budynku:
2
powierzchnia:
53.86 m2
numer ogłoszenia:
BS5-MS-310480-22
data dodania:
09-04-2026
data modyfikacji:
09-04-2026
jakość wypełnienia oferty:
82%

Szczegóły oferty

|
Na sprzedaż: Przestronne
mieszkanie - idealne dla rodziny lub inwestora!

Oferujemy funkcjonalne, 3-pokojowe mieszkanie o powierzchni
53,86 m² , położone na wysokim parterze w 2-piętrowym budynku z 2024r. Nieruchomość w stanie deweloperskim.

Powierzchnia nieruchomości:
53,86 m²
- powierzchnia użytkowa mieszkania
Lokalizacja:
Mieszkanie znajduje się w
Podgórzu, Małym Płaszowie , w pobliżu niskiej zabudowy. Doskonała komunikacja:
5 minut pieszo
do zajezdni tramwajowej Mały Płaszów
17 minut tramwajem
do Rynku Głównego
10 minut autem
do centrum
Blisko Krakowska Akademia
W pobliżu znajdują się m.in. Park Myśliwski i Park Rzeczny Ogród Płaszów - to jeden z największych parków w Podgórzu. Idealne miejsca do rekreacji dla całej rodziny. Również w okolicy znajduje się zalew Bagry.
najbliższy przystanek tramwajowy znajduje się zaledwie 5 min od budynku,
Najbliższa szkoła i przedszkole znajdują się zaledwie 5 min od budynku,
w pobliżu znajdują się m.in. Lidl, Biedronka oraz Żabka,
poza parkami i zalewem, w okolicy znajduje się też Klub Sportowy Płaszowianka, korty do squasha oraz tor gokartowy.
Dostępne również inne mieszkania w tym budynku

W okolicy pełna infrastruktura:
żłobki, przedszkola, szkoła podstawowa
Sklepy, restauracje, poczta, paczkomaty
Dwa parki i place zabaw, w tym popularny
Smoczy Skwer
W pobliżu Zalew Bagry
- idealne miejsce na rekreację
Dodatkowe informacje:
Mieszkanie sprzedawane w stanie deweloperskim wyposażone w nowoczesny piec dwufunkcyjny na gaz oraz system ogrzewana.
Budynek jest
odsunięty od głównych ulic
- cicho i spokojnie!
Ogrzewanie Gazowe w całym mieszkaniu podgrzewanie podłogowe.
Mieszkanie gotowe do zamieszkania od zaraz
Bezpłatny parking
dla mieszkańców pod budynkiem, dodatkowo istnieje możliwość zakupu miejsca parkingowe w garażu podziemnym
w budynku znajdują się również mieszkania dwupoziomowe

Cena: 820 000 zł mieszkanie
Kontakt:
Kuba Obcowski
+ Zobacz kontakt48 510 087 993

Prezentacja nieruchomości jest bezpłatna i odbywa się w obecności pośrednika.
Warunkiem jej przeprowadzenia oraz podania lokalizacji jest podpisanie umowy pośrednictwa, zgodnie z przepisami i oczekiwaniami właściciela nieruchomości.
::DODATKOWE INFORMACJE |
Rodzaj budynku: nowe budownictwo |
Dozór budynku: tak - jest |
Głośność: ciche |
Widok: na podwórko |
Gaz: jest |
Woda: jest |
Dojazd: asfalt |
Otoczenie: działki zabudowane |
Ogrzewanie: gazowe |
Internet: TAK |
Telewizja kablowa: TAK |
Komunikacja publ.: autobus miejski, tramwaj |
Winda: NIE |
Rozkład: dwustronne |
Usytuowanie: dwustronne |
Opłaty wg liczników: woda, prąd, gaz |
Rodzaj mieszkania: jednopoziomowe |
Garaż: możliwość kupna |
Stan lokalu: deweloperski |
Okna: PCV |
Instalacje: nowe |
Rok budowy: 2024 |
Liczba pokoi: 3 |
Liczba sypialni: 2 |
Podłogi pokoi: wylewka |
Ściany pokoi: zwykłe |
Typ kuchni: jasna z oknem |
Rodzaj kuchni: jasna z oknem |
Podłoga kuchni: wylewka |
Typ łazienki: razem z wc |
Liczba łazienek: 1 |
Glazura łazienki: bez glazury |
Podłoga łazienki: wylewka |
Ściany łazienki: zwykłe |
Liczba przedpokoi: 1 |
Podłoga przedpokoi: wylewka |
Ściany przedpokoi: zwykłe |
::LINK DO STRONY |
https://sadurscy.pl/offer/BS5-MS-310480
::KONTAKT DO AGENTA |
Jakub Obcowski |
+ Zobacz kontakt48 510-087-993 |
Zobacz kontaktkuba@sadurscy.pl
::DANE BIURA |
Oddział BS5, Nowa Huta |
Bracia Sadurscy Dariusz Sadurski |
Os. Kazimierzowskie 36 |
31-844 Kraków |
Zobacz kontakt12 265 10 29
Pośrednik odpowiedzialny zawodowo za wykonanie umowy pośrednictwa: Dariusz Sadurski (licencja nr: 803)
|
Oferta wysłana z systemu Galactica Virgo
Ogrzewanie: Gazowe

Kontakt do agenta:
Jakub Obcowski
Zobacz kontaktkuba@sadurscy.pl
+ Zobacz kontakt48 510-087-993

Oceń ofertę


0


19 wydruk błąd schowek

Ostatnio przeglądane

 

 

 

pobieranie

Pobierz wzór umowy

Umowa przedwstępna sprzedaży

wybierz plik do pobrania
doc pdf

 

 

Deweloperzy

);